Meridiaan 61 190 m2 kantoorruimte te huur in Gouda
Kenmerken
| Perceeloppervlakte | 4940 m² |
| Functie | Kantoorruimte |
| Wijk / Buurt | Nieuwe Park-West |
| Bedrijventerrein | Gouwespoor (vh Nieuwe Park West) |
1 eenheid beschikbaar
1 eenheid beschikbaar
- Eenheid
- Oppervlakte
- Huurprijs
- Gebruik
- Verdieping Begane grond
- 190 m2
- € 120,00 m²/jaar
- Kantoorruimte
| BOUWLAAG & UNIT | Begane grond N.v.t. |
| OPPERVLAKTE | 190 m2 |
| HUURPRIJS | € 120,00 m²/jaar |
| GEBRUIK | Kantoorruimte |
Omschrijving
Omschrijving
TE HUUR
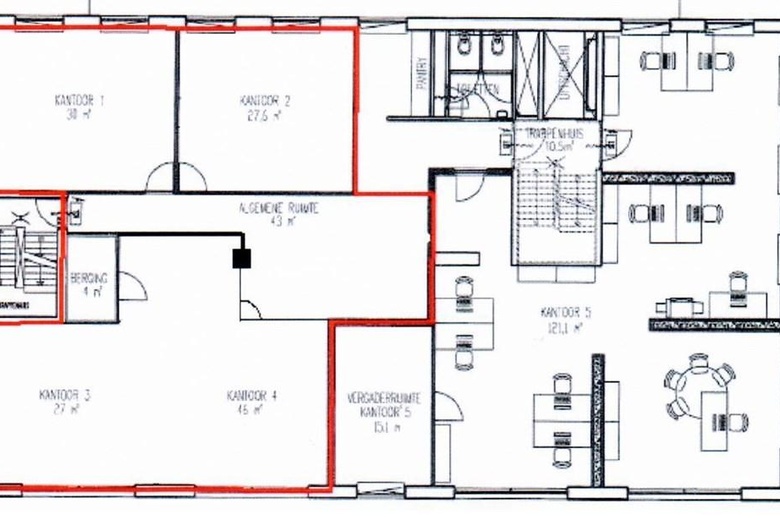
Op een uitstekend bereikbare locatie aan de Meridiaan 61 in Gouda bieden wij een ruime en lichte kantoorruimte van 190 m² aan op de tweede verdieping. Dit pand biedt een ideale werkplek voor bedrijven die op zoek zijn naar een representatieve en goed bereikbare kantoorruimte in een professionele omgeving.
De kantoorruimte op de tweede verdieping is licht, modern en flexibel in te richten. De ruimte heeft een open indeling, maar biedt de mogelijkheid om het in te delen met meerdere werkplekken, vergaderruimtes of privé kantoren. De afwerking is van hoge kwaliteit, zodat u direct kunt starten in een professionele omgeving.
LOCATIE
Het object is gelegen op bedrijventerrein 'Gouwespoor' aan de rand van het historische stadscentrum van Gouda.
BEREIKBAARHEID
Gelegen vlakbij de A12 (Den Haag – Arnhem) en de A20 (Rotterdam – Gouda), waardoor de locatie makkelijk bereikbaar is vanuit de regio en de Randstad.
Het station Gouda ligt op slechts een paar minuten afstand, met directe verbindingen naar Utrecht, Rotterdam, en Amsterdam.
VLOEROPPERVLAKTE
De totaal beschikbare verhuurbare vloeroppervlakte op de tweede verdieping bedraagt 190 m²
PARKEREN
Er zijn 5 parkeerplaatsen beschikbaar voor verhuur op eigen volledig onderheid terrein.
VOORZIENINGEN/OPLEVERINGSNIVEAU
Het gebouw is onder meer voorzien van:
• Een zeer representatieve entree;
• Receptieruimte;
• Luxe sanitaire voorzieningen;
• Mechanische ventilatie met topkoeling;
• Aparte airco-installatie;
• Liftinstallatie;
• Intercom installatie;
• Beveiligingsinstallatie;
• Energie Label A;
• Elektrische laadpalen;
• Scheidingswanden;
• Systeemplafond met geïntegreerde Tl-verlichting;
• Pantry;
• Kabelgoten met data-bekabeling;
• (Mede)gebruik van serverruimte en patchkast.
HUURPRIJS
€120,- per m² per jaar voor te vermeerderen met BTW.
Indien de BTW niet kan worden verrekend dan zal de huurprijs met een nader vast te stellen bedrag worden verhoogd.
HUURPRIJS PARKEREN
€ 1.000,- per plaats per jaar te vermeerderen met BTW
SERVICEKOSTEN
€ 55,- per m² per jaar te vermeerderen met BTW
Ook is er de optie om mee te doen met de opbrengst van de zonnepanelen, dit is € 25,49 per maand voor 7,09 % van de opbrengst van de panelen.
HUURPRIJSAANPASSING
Jaarlijks voor het eerst één jaar na datum ingebruikname, zal de huurprijs worden aangepast op basis van de wijziging van het maandindexcijfer volgens consumentenprijsindex (CPI), 2025=100, reeks alle huishoudens.
BETALINGEN
Huur en BTW per maand vooruit.
ZEKERHEIDSSTELLING
Bankgarantie ter grootte van drie maanden huur, inclusief servicekosten en BTW.
HUURTERMIJN
5 jaar, korter bespreekbaar.
VERLENGINGSTERMIJN
Nader overeen te komen.
OPZEGTERMIJN
Nader overeen te komen.
OVERIGE CONDITIES
Huurovereenkomst op basis van het standaardmodel van de Raad voor Onroerende Zaken (ROZ).
AANVAARDING
In overleg.
VOORBEHOUD
Elke transactie behoeft de nadrukkelijke goedkeuring van eigenaar.
BTW-STATUS
Over de huurprijs en servicekosten wordt BTW in rekening gebracht. Bij het vaststellen van de huurprijs is ervan uitgegaan dat huurder voor minimaal 90% belaste prestaties in het gehuurde verricht.
DISCLAIMER
Al het bovenstaande betreft informatie omtrent de verhuur van dit adres. De informatie is met zorg samengesteld, maar voor de juistheid ervan kan door Bij Abram Bedrijfsmakelaardij geen aansprakelijkheid worden aanvaard noch aan de vermelde gegevens enig recht worden ontleend. Nadrukkelijk is vermeld dat deze informatieverstrekking niet als een aanbieding of offerte mag worden beschouwd.
Bijzonderheden
Huurprijsaanpassing
Jaarlijks voor het eerst één jaar na datum ingebruikname, zal de huurprijs worden aangepast op basis van de wijziging van het maandindexcijfer volgens consumentenprijsindex (CPI), 2006=100, reeks alle huishoudens.
Zekerheidstelling
Bankgarantie ter grootte van drie maanden huur inclusief servicekosten en BTW.
Overige condities
Huurovereenkomst op basis van het standaardmodel van de Raad voor Onroerende Zaken (ROZ).
BTW-Status
Over de huurprijs en servicekosten wordt BTW in rekening gebracht. Bij het vaststellen van de huurprijs is ervan uitgegaan dat huurder voor minimaal 90% belaste prestaties in het _gehuurde verricht.
Algemeen
Al het bovenstaande betreft informatie omtrent de verhuur van de Meridiaan 63. De informatie is met zorg samengesteld, maar voor de juistheid ervan kan door Abram Makelaardij geen aansprakelijkheid worden aanvaard noch aan de vermelde gegevens enig recht worden ontleend. Nadrukkelijk is vermeld dat deze informatieverstrekking niet als een aanbieding of offerte mag worden beschouwd.
Bereikbaarheid
- Meridiaan 1 min. lopen
- Harderwijkweg 7 min. lopen
- Gentseweg 7 min. lopen