Oelerweg 32 A
412 m2 kantoorruimte te koop in Hengelo
Kenmerken
| Prijs | € 495.000 k.k. |
| Functie | Kantoorruimte |
| Onderhoud buiten | Goed |
| Onderhoud binnen | Goed |
| Wijk / Buurt | Nijverheid |
1 eenheid beschikbaar
1 eenheid beschikbaar
Omschrijving
Omschrijving
Aan één van de belangrijkste toegangswegen richting het centrum van Hengelo, bieden wij onze vrijstaande commerciële ruimte aan voor de verkoop. De locatie is gelegen op slechts enkele autominuten van de oprit naar de A35/A1 en daarmee zeer goed bereikbaar.
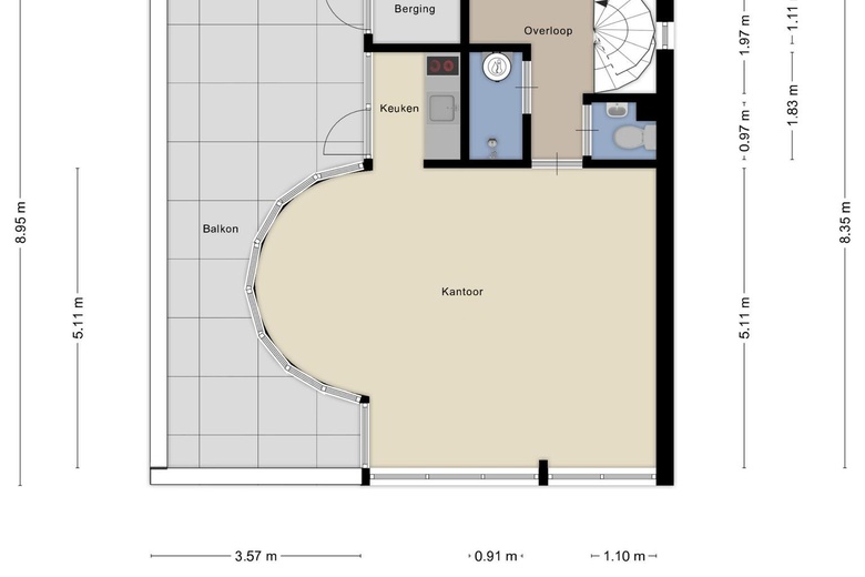
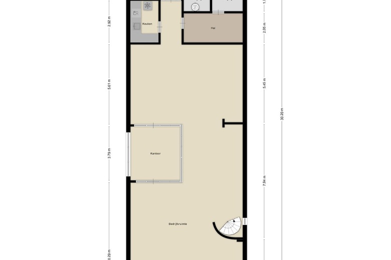
Het object bestaat uit een drietal bouwlagen en een zeer ruim souterrain. De begane grond is thans ingericht geweest als een galerie met verschillende expositie-, opslag-, kantoor-, sociale- en sanitaire ruimten. De eerste verdieping is uitstekend in te richten als kantoorruimte en is tevens voorzien van sanitaire voorzieningen met o.a. een doucheruimte. De tweede verdieping omvat veelal glas met prachtig lichtinval, beschikt over een dakterras en een pantry. Deze ruimte biedt dan ook volop kansen voor een rustige kantoor- en/of kantineruimte. De locatie is voorzien van luchtbehandelings- en aircosysteem.
Het geheel heeft een totaal verhuurbaar oppervlakte van 350 m2 en een dakterrassen van circa 56 m2. Het verhuurbare oppervlakte bestaat uit 227 m2 op de begane grond, 47 m2 op de eerste verdieping, 11 m2 op de tweede verdieping en 64 m2 opslagruimte in het souterrain.
In de directe omgeving is voldoende gratis parkeergelegenheid gesitueerd.
De locatie is gelegen binnen het bestemmingsplan Wilderinkshoek 2024, vastgesteld op 8 april heeft een enkelbestemming “Gemengd” met de aanvullende aanduiding “Wonen uitgesloten”. De met “Gemengde” aangewezen gronden zijn bestemd voor detailhandel, kantoren en dienstverlenende instellingen. Door de voorgenoemde functies omvat de locatie een breed scala aan gebruiksmogelijkheden.
Uitgangspunten:
- Verhuurbaar oppervlakte: 350 m2
- Perceelgrootte: 375 m2
- Bouwjaar: 1990
- Energielabel: C
- Opleveringsstaat: in de huidige staat; “as is, where is”.
- Vraagprijs: € 495.000,00 k.k.
- Aanvaarding: in overleg, kan op korte termijn.
Goedkeuring
Het bovenstaande is onder finaal voorbehoud van de eigenaar.
Disclaimer: Ondanks dat deze publicatie met de grootst mogelijke zorgvuldigheid is samengesteld is de Online Bedrijfsmakelaar BV niet aansprakelijk te stellen voor onjuiste of onvolledige informatie die in deze publicatie vermeld staan. Aan deze gegevens kunnen geen rechten worden ontleend.
====================
Alle beschikbare informatie ontvangen?
Benieuwd naar alle beschikbare informatie over dit pand? Vraag dan nu, onder de grote contactbutton, de gratis objectbrochure van de Oelerweg 32A in Hengelo aan en ontvang de objectbrochure binnen 5 minuten in uw mailbox. Uiteraard kunt u ook direct een geheel vrijblijvende bezichtiging met de beheerder van het pand inplannen.