Resultaten laden ...

Oostelijke Rondweg 1 22 - 113 m2 kantoorruimte te huur in Elburg

Kenmerken

Huurprijs € 625 /maand
Functie Kantoorruimte
Onderhoud buiten Uitstekend
Onderhoud binnen Uitstekend
Wijk / Buurt Oostendorp
Bedrijventerrein Oostendorp 1/2

TE HUUR

Oostelijke Rondweg 1 Elburg

OBJECT

Op de eerste verdieping van dit goed onderhouden bedrijfspand bieden wij drie aantrekkelijke, zelfstandige, kantoorruimtes te huur aan. Deze lichte en efficiënt ingedeelde ruimtes zijn direct inzetbaar voor diverse zakelijke activiteiten. Huurders maken gezamenlijk gebruik van een verzorgde pantry en nette toiletgroepen. Het object beschikt over voldoende parkeergelegenheid en is uitstekend bereikbaar. Kortom een ideale locatie voor ondernemers die comfort, professionaliteit en bereikbaarheid willen combineren.

LIGGING

Op een uitstekende zicht locatie gelegen aan de rand van bedrijventerrein ‘Oostendorp' nabij diverse uitvalswegen N309/308 (Elburg - Wezep) en de N309 (Elburg – 't Harde). De Rijksweg A28 is bereikbaar binnen 7 autominuten. Een bushalte is op loopafstand gesitueerd en het NS station ('t Harde) ligt op ca. 4,5 km.

BESTEMMINGSPLAN

De locatie valt onder het geldende bestemmingsplan ''1e partiële herziening bestemmingsplan Elburg en Oostendorp (veegplan)'' van de gemeente Elburg met enkelbestemming “Bedrijventerrein” en is geschikt voor bedrijven met bedrijfsactiviteiten tot en met milieu categorie 3.1, zoals opgenomen in bijlage 1 van de Staat van Bedrijfsactiviteiten.

OPPERVLAKTE

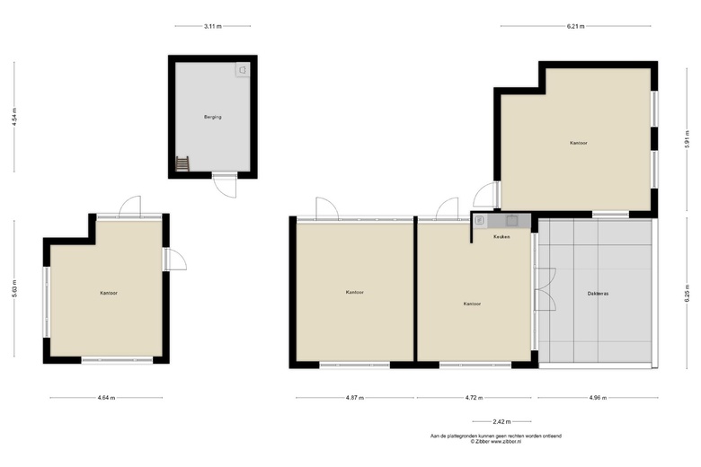
De metrage van de vier (04) beschikbare kantoorruimtes zijn respectievelijk:

- Unit nr. 1 ca. 22 m²

- Unit nr. 2 verhuurd

- Unit nr. 3 ca. 27,5 m²

- Unit nr. 4 ca. 28,5 m² met ca. 28 m² buitenruimte

- Unit nr. 5 ca. 35 m²

INDELING

Op de begane grond is een entree aanwezig die toegang geeft naar de eerste verdieping waar de diverse kantoorruimtes aanwezig zijn welke zijn gescheiden door een gang. Aan de andere kant van de gang bevinden zich diverse ruimtes, toiletruimtes en een ruimte met een pantry welke als gezamenlijk gebruik is bestempeld.

VOORZIENINGEN

- 2 toiletgroepen;

- 1 kantine met pantry en diverse inbouwapparatuur;

- systeemplafond met ledverlichting en beweging sensoren;

- cv-installatie met radiatoren;

- airco installaties;

- zonwering;

- mechanische ventilatie;

- alarmsysteem;

- beeldtelefoon voor entree;

- kabelgoten;

- serverruimte;

- nooduitgang op verdieping.

OPSLAGRUIMTE

Het is mogelijk om de kantoorruimte uit te breiden met opslag/archiefruimte.

OPLEVERING

In huidige staat.

AANVAARDING

Per direct.

PROJECTWEBSITE

HUURPRIJS

- Unit nr. 1 € 625,-- te vermeerderen met omzetbelasting maar inclusief servicekosten.

- Unit nr. 3 € 725,-- te vermeerderen met omzetbelasting maar inclusief servicekosten.

- Unit nr. 4 € 875,-- te vermeerderen met omzetbelasting maar inclusief servicekosten

- Unit nr. 5 € 875,-- te vermeerderen met omzetbelasting maar inclusief servicekosten.

LEVERINGEN EN DIENSTEN

Huurprijs is inclusief:

Gas, water, elektra, wifi en schoonmaak van algemene ruimtes.

Dit is inclusief bij normaal kantoorgebruik.

ENERGIELABEL

A, geldig tot 03-09-2034.

INDEXERING

Jaarlijks conform CPI-Alle Huishoudens (2015=100), voor het eerst één jaar na de ingangsdatum van de huurovereenkomst.

CONTRACT

ROZ-huurcontract voor kantoorruimte, versie 2015 met bijbehorende algemene bepalingen, alsmede enkele aanvullend bepalingen.

HUURTERMIJN

In overleg.

OPTIE-/VOORTZETTINGSTERMIJN

In overleg.

BANKGARANTIE/WAARBORGSOM

Ter grootte van drie maanden huur plus omzetbelasting.

OMZETBELASTING

Er wordt geopteerd voor belaste verhuur, c.q. de huurprijs wordt verhoogd met omzetbelasting. Indien er niet wordt geopteerd voor belaste verhuur, wordt de huurprijs verhoogd met een nader door de accountant van verhuurder vast te stellen percentage.

PRIVACY

Brandt Bedrijfsmakelaars respecteert uw recht op privacy en garandeert dat uw persoons- en bedrijfsgegevens op een vertrouwelijke en verantwoordelijke wijze zullen worden behandeld, overeenkomstig de richtlijnen uit de Algemene Verordening Gegevensbescherming (AVG).

DISCLAIMER

Nadrukkelijk is vermeld dat deze informatieverstrekking niet als een aanbieding of offerte mag worden beschouwd. Aan deze gegevens kunnen geen rechten worden ontleend.

Bereikbaarheid

Tram, bus, metro
  • Zilverschoon 7 min. lopen
  • Eperweg 7 min. lopen
  • Klaverplein 8 min. lopen

Bijlagen

De aanbieder van dit object heeft een PDF Brochure beschikbaar gesteld.

Vraag brochure aan