Philipsstraat 1-7 BU 43 m2 kantoorruimte te huur in Leusden
Kenmerken
| Functie | Kantoorruimte |
| Wijk / Buurt | Buitengebied Leusden-Centrum West |
| Bedrijventerrein | De Horst |
1 eenheid beschikbaar
1 eenheid beschikbaar
- Eenheid
- Oppervlakte
- Huurprijs
- Gebruik
- 1
- 43 m2
- € 111,63 m²/jaar
- Kantoorruimte
| OPPERVLAKTE | 43 m2 |
| HUURPRIJS | € 111,63 m²/jaar |
| GEBRUIK | Kantoorruimte |
Omschrijving
Omschrijving
Het kantoorgebouw is gebouwd in 2000 op een perceel van 49 are en 98 centiare en heeft een totale oppervlakte van 3.828m².
Het betreft een kantoorgebouw verdeeld over 4 bouwlagen en is voorzien van een centrale midden kern. De zuidvleugel van de tweede verdieping is verdeeld in units conform de plattegrond.
Locatie
Het object is prominent gelegen op het kantorenpark “De Horst”. De moderne kantoren- en bedrijven locatie “De Horst” (18,5 ha) bestaat vanaf midden jarig negentig en is gelegen direct aan de afslag Leusden aan de A28.
In het oog springende ondernemingen op ”De Horst” zijn onder andere Avero/Achmea en Agis, Intergamma, Afas Software, Gemeentehuis Leusden en hotel Van der Valk.
De rijksweg A28, met een directe aansluiting op verkeersplein “Hoevelaken”, is per auto binnen enkele minuten bereikbaar. Bushaltes bevinden zich op loopafstand van de locatie.
De vermelde prijs is inclusief:
- Gezamenlijk gebruik spreekkamer;
- Servicekosten;
- Collectieve 200 MB glasvezelverbinding.
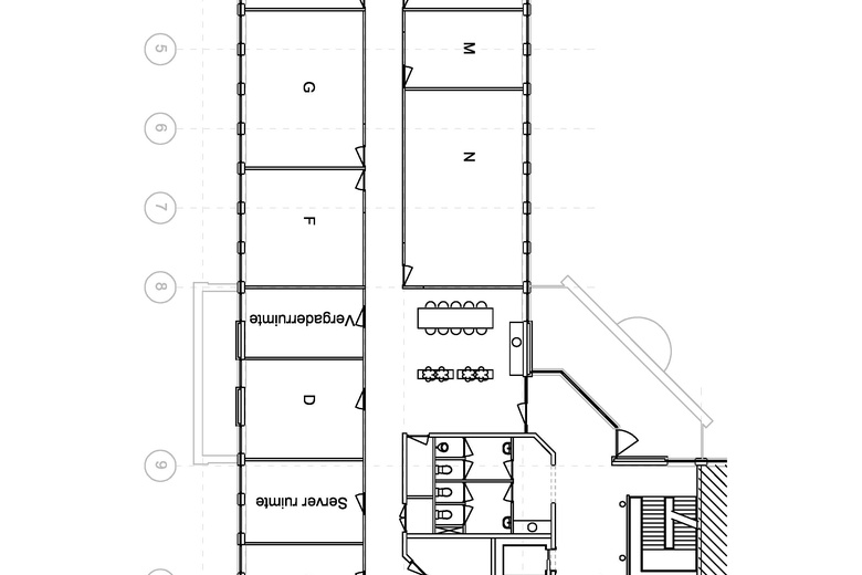
Indeling
Zie de plattegrondtekeningen in de bijlagen.
Opleveringsniveau
De ruimte zal worden opgeleverd in de huidige staat, derhalve inclusief o.a.:
•Systeemplafonds met geintegreerde verlichting
•Wandgoten
•Per etage een tussenmeter ten behoeve van de elektraverrekening
•Lift (13 persoons)
•Aanwezige scheidingswanden
•Aanwezige vloerbedekking
Parkeren
33 beschikbare parkeerplaatsen.
Bestemming
Kantoorruimte
Informatie inzake gebruiksmogelijkheden en voorschriften is te verkrijgen via ons kantoor, bij de gemeente of via de website van ruimtelijke plannen.
Huurprijs
De huurprijs van de unit staat in de tabel bij vloeroppervlakte.
Huurprijs parkeerplaatsen
€ 500,00 per parkeerplaats per jaar, exclusief BTW.
BTW
Uitgangspunt is een met BTW belaste huurprijs. Indien een huurder niet voldoet aan de voor belaste verhuur gestelde criteria zal de huurprijs zodanig worden verhoogd dat het voor verhuurder ontstane financiele nadeel volledig wordt gecompenseerd.
Servicekosten
€ 30,00 per m2 per jaar, exclusief BTW, op voorschotbasis.
De huurprijs is zoals vermeld inclusief de servicekosten ten behoeve van installaties en gemeenschappelijke voorzieningen.
Deze omvatten onder meer de navolgende leveringen en diensten:
• gasverbruik inclusief vastrecht
• waterverbruik inclusief vastrecht
• elektriciteitsverbruik inclusief vastrecht
• Onderhoud en periodieke controle van gebouwgebonden technische installaties zoals:
o klimaatinstallaties
o liftinstallaties
o noodverlichtingsinstallatie
o brandmeldinstallatie
o brandblusmiddelen
o automatische deuren
o verdeelinrichting
• Kleine bouwkundige herstellingen die conform de huurovereenkomst voor rekening van huurder komen
• schoonmaak gemeenschappelijke ruimten
• levering sanitaire voorzieningen, handdoekautomaten, zeep e.d.
• glas- en gevelreiniging buitenzijde en binnenzijde gemeenschappelijke ruimten
• reinigen daken, hemelwaterafvoeren en rioleringen
• onderhoud terrein en groenvoorziening
• vervanging van lampen in gemeenschappelijke ruimten
• telecommunicatiekosten van gebouwgebonden installaties
• containerhuur en vuilafvoer
• voor rekening huurder komende belastingen en heffingen die bij verhuurder in rekening worden gebracht
• 6% administratiekosten over het totaal van de servicekosten
Verhuurder behoudt zich het recht voor, genoemde leveringen en diensten en speciale voorzieningen uit te breiden of in te krimpen en het door huurder te betalen aandeel in de kosten dienovereenkomstig te wijzigen.
Huurtermijn
Huurperiode van 5 jaar gevolgd door verlengingstermijnen van telkens 5 jaar.
Kortere huurtermijnen zijn bespreekbaar.
Opzegtermijn
12 maanden.
Betalingen
Per kwartaal vooruit te voldoen.
Zekerheidsstelling
Een bankgarantie ter grootte van drie maanden huur en servicekosten te vermeerderen met BTW.
Indexering
De huurprijs zal jaarlijks, voor het eerst 1 jaar na de huuringangsdatum, worden verhoogd op basis van de consumentenprijsindex (CPI) zoals wordt gepubliceerd door het Centraal Bureau voor de Statistiek (CBS).
Huurovereenkomst
De huurovereenkomst zal zijn gebaseerd op het model zoals is vastgesteld door de Raad voor Onroerende Zaken (ROZ) 2015, inclusief de algemene bepalingen.
Aanvaarding
In overleg.
Bereikbaarheid
- Storkstraat 5 min. lopen
- Plesmanstraat 6 min. lopen
- Bedrijventerrein De Horst 6 min. lopen
- Carpoolplaats 9 min. lopen