Resultaten laden ...

Schoutlaan 11 925 m2 kantoorruimte te koop in Weert

Kenmerken

Prijs Prijs op aanvraag
Functie Kantoorruimte
Onderhoud buiten Goed
Onderhoud binnen Goed
Wijk / Buurt Centrum-Noord
Bedrijventerrein Centrum Noord (SD)

TE KOOP AANGEBODEN:

ZEER REPRESENTATIEF KANTOORGEBOUW MET EEN OMVANG VAN 925 M² VERDEELD OVER 3 BOUWLAGEN EN VOORZIEN VAN CA. 18 PARKEERPLAATSEN.

HET KANTOORGEBOUW IS VOORZIEN VAN ENERGIELABEL A+++

ALGEMEEN:

Solitair kantoorgebouw gelegen op Kantorenpark Centrum Noord, dé kantorenlocatie van de gemeente Weert waar zowel lokale als internationale kantoorgebruikers gehuisvest zijn. Kantorenpark Centrum Noord biedt ruimte aan dienstverlenende activiteiten, die zowel commercieel als niet-commercieel van aard kunnen zijn en in principe niet publieksgericht zijn. De hoge kwaliteit in architectuur en de groene omgeving creëren een aangename werkomgeving waarbij het kernwinkelgebied op loopafstand te bereiken is. Aan de inrichting van de openbare ruimte wordt door de gemeente veel aandacht besteed. Kantorenpark Centrum Noord heeft de KVO-B status.

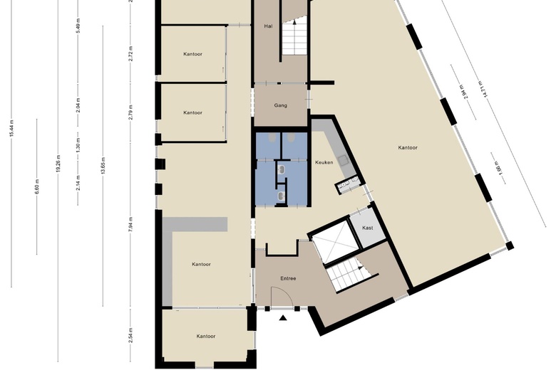
OPPERVLAKTE / INDELING:

Dit representatieve kantoorgebouw bestaat uit drie bouwlagen, elk met een doordachte en eigentijdse indeling die aansluit bij de behoeften van moderne organisaties. De verdiepingen zijn zowel via de trap als met een lift te bereiken.

Begane grond

Bij binnenkomst maakt de representatieve entree direct indruk. Via het portaal en de centrale ontvangsthal bereikt men de receptiebalie met backoffice, waar bezoekers professioneel worden verwelkomd. Vanuit de verkeersruimte met trapopgang en lift zijn de sanitaire voorzieningen en pantry bereikbaar. Aan de achterzijde bevindt zich een ruime, lichte kantoortuin met drie separate inbouwkantoren, ideaal voor concentratiewerk, overleg of ontvangst van klanten.

Een bijzonder pluspunt vormt het sfeervolle café dat in het kantoordeel op de begane grond is ingericht. Deze gezellige ontmoetingsplek wordt gebruikt voor informele overleggen, lunches en vrijdagmiddagborrels. Het draagt bij aan een inspirerende werkomgeving waar samenwerken en ontmoeten centraal staan.

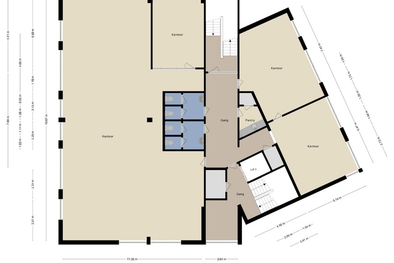
Eerste verdieping

De eerste verdieping biedt een prettige mix van openheid en beslotenheid. Aan de linkerzijde bevindt zich een royale kantoortuin van circa 200 m², geschikt voor flexibele werkplekken of teamindelingen. Aan de rechterzijde zijn twee afsluitbare kantoorruimten gesitueerd, perfect voor directiekantoren of vergaderruimten. Ook op deze verdieping zijn een pantry en sanitaire voorzieningen aanwezig.

Tweede verdieping

De bovenste verdieping huisvest onder andere de personeelskantine en drie moderne kantoorsegmenten. De ondersteunende functies, zoals pantry en sanitaire voorzieningen, bevinden zich centraal in de kern van het gebouw. Grote raampartijen zorgen voor veel daglicht en een aangenaam binnenklimaat, wat bijdraagt aan een prettige en productieve werkomgeving.

METRAGE:

- Totale oppervlakte: 925 m²

- begane grond: 229 m²

- 1e verdieping: 355 m²

- 2e verdieping: 341 m²

BEREIKBAARHEID:

Per auto

De locatie aan de Schoutlaan 11 bevindt zich op bedrijventerrein Centrum Noord in Weert, een uitstekend bereikbare en strategisch gelegen bedrijfsomgeving. Via de nabijgelegen N280 is de A2 (Amsterdam – Maastricht) binnen enkele minuten te bereiken. Hierdoor zijn steden als Eindhoven, Roermond en Maastricht vlot toegankelijk. Ook de ligging ten opzichte van de Duitse grens maakt deze locatie interessant voor bedrijven met internationale activiteiten.

Per openbaar vervoer

Ook met het openbaar vervoer is de bereikbaarheid uitstekend. In de directe omgeving bevinden zich meerdere bushaltes met verbindingen naar het NS-station Weert. Vanaf het station vertrekken intercitytreinen richting onder andere Eindhoven, Roermond en Amsterdam. Dankzij deze goede aansluitingen is het pand zowel per auto als per OV uitstekend bereikbaar voor medewerkers en bezoekers.

VOORZIENINGEN

- nette centrale entree met portaal v.v. tegelvloer met receptiebalie;

- kantoren v.v. o.a. projecttapijt en houten vloeren;

- systeemplafonds deels v.v. LED verlichting;

- gestukte wanden v.v. sauswerk;

- hoogwaardige spreekkamers / vergaderruimtes v.v. glasinzet;

- 2 trappenhuizen;

- liftinstallatie;

- pantry per verdieping;

- gescheiden sanitaire ruimte per verdieping;

- aluminium kozijnen v.v. dubbele beglazing;

- zonwering;

- databekabeling (elektra, data, telefonie);

- volledig klimaatsysteem middels warmtepomp en bodemkoeling;

- ventilatie: WTW balansventilatiesysteem;

- alarminstallatie;

- brandmeldinstallatie;

- blusvoorzieningen.

PARKEREN:

In totaal zijn er circa 18 parkeerplaatsen beschikbaar. Tevens kan er op het openbare parkeerterrein aan de Schepenlaan geparkeerd worden.

GEBRUIKSMOGELIJKHEDEN:

Het object valt binnen het bestemmingsplan "Woongebieden 2019" van de gemeente Weert en is aangewezen met bestemmingsvlak "kantoor". Dit betekent dat het perceel bestemd is voor kantooractiviteiten en aanverwante diensten.

KADASTRALE GEGEVENS:

- Schoutlaan 11-11A-11B-11C-11D, te Weert.

- Kadastraal bekend gemeente Weert, sectie N nummer 5926.

- Perceelgrootte: 992 m².

KOOPGEGEVENS

- Vraagprijs: op aanvraag.

- Borg / waarborgsom: 10 % van de koopsom te storten binnen 5 werkdagen na ondertekening van de koopovereenkomst op het kwaliteitsrekening nummer van de notaris

- Notariskeuze: notaris ter keuze koper.

BIJZONDERE VERKOOPVOORWAARDEN:

- Koopakte onder voorbehoud van gunning eigenaar;

- Verkoop geschiedt onder het "as is / where is" principe;

- Niet zelf-gebruiksclausule;

- Er is geen bodemonderzoek aanwezig;

- Complex is momenteel nog verhuurd, verkoop geschiedt na ommekomst van de de lopende huurovereenkomst Q2 2026 of eerder in overleg.

Bereikbaarheid

Tram, bus, metro
  • Schoutlaan 1 min. lopen
  • Gouverneurlaan 3 min. lopen
  • De Burcht 8 min. lopen
  • Bassin 9 min. lopen