Schuilheuvelstraat 1 127 m2 kantoorruimte te huur in Buren
Kenmerken
| Huurprijs | € 1.250 /maand |
| Functie | Kantoorruimte |
| Onderhoud buiten | Goed |
| Onderhoud binnen | Goed |
| Wijk / Buurt | Buren Tielseweg |
| Bedrijventerrein | Buren III |
1 eenheid beschikbaar
1 eenheid beschikbaar
- Eenheid
- Oppervlakte
- Huurprijs
- Gebruik
Eenheid omschrijving
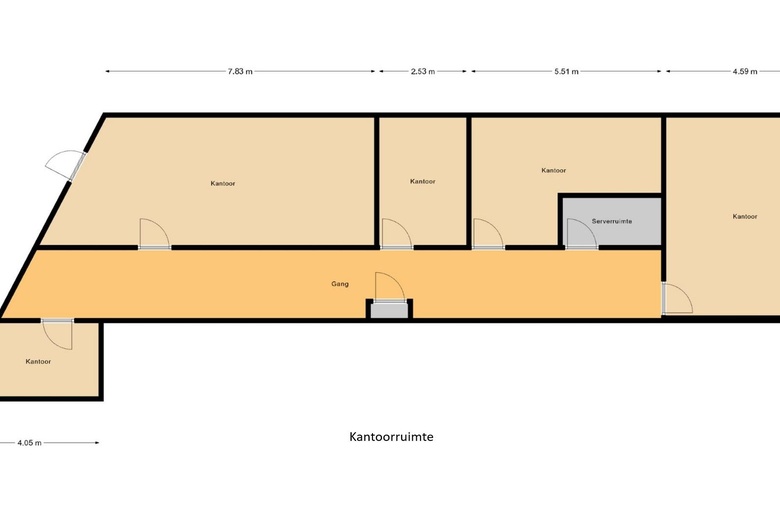
Te huur: kantoorruimte van ca. 127 m² in een uniek pand te Buren!
Op zoek naar een kantoorruimte met karakter en een inspirerende werkomgeving? Deze ca. 127 m² grote kantoorruimte bevindt zich in een bijzonder pand te Buren, dat gedeeld wordt met een indrukwekkend automuseum 'Visscher Classique'.
Middels de hoofdentree sta je direct voor de toegangsdeur naar deze kantoorruimte, welke is voorzien van o.a.:
- Kabelgoten
- Systeemplafond met Led verlichting
- Kamerindeling
- Pantry/keuken
- Toilet (momenteel gedeeld met het museum maar het is mogelijk een separaat toilet te laten plaatsen)
- Optioneel een presentatie-/workshop ruimte periodiek bij te huren
Bereikbaarheid:
Het pand is gunstig gesitueerd in de nabijheid van diverse uitvalswegen. Met de auto is de rijksweg A15 in ca. 10 minuten en de A2 in ca. 12 minuten te bereiken.
Bestemmingsplan:
'Bestemmingsplan Kernen Buren' is geheel onherroepelijk in werking, d.d. 25-2013 met daarin opgenomen de bestemming 'Bedrijventerrein'. De voor ‘Bedrijventerrein' aangewezen gronden zijn bestemd voor:
- bedrijf tot en met categorie 3.2
Huurcondities:
Huurprijs: € 15.000,- per jaar excl. BTW, gas, water, elektra.
Servicekosten: n.t.b.
Aanvaarding: in overleg.
Huurprijsaanpassing: jaarlijks op basis van de consumentenprijsindex van het CBS.
Huurtermijn: in overleg.
Borgsom: 3 maanden.
| OPPERVLAKTE | 127 m2 |
| GEBRUIK | Kantoorruimte |
Omschrijving
Omschrijving
Te huur: kantoorruimte van ca. 127 m² in een uniek pand te Buren!
Op zoek naar een kantoorruimte met karakter en een inspirerende werkomgeving? Deze ca. 127 m² grote kantoorruimte bevindt zich in een bijzonder pand te Buren, dat gedeeld wordt met een indrukwekkend automuseum 'Visscher Classique'.
Middels de hoofdentree sta je direct voor de toegangsdeur naar deze kantoorruimte, welke is voorzien van o.a.:
- Kabelgoten
- Systeemplafond met Led verlichting
- Kamerindeling
- Pantry/keuken
- Toilet (momenteel gedeeld met het museum maar het is mogelijk een separaat toilet te laten plaatsen)
- Optioneel een presentatie-/workshop ruimte periodiek bij te huren
Bereikbaarheid:
Het pand is gunstig gesitueerd in de nabijheid van diverse uitvalswegen. Met de auto is de rijksweg A15 in ca. 10 minuten en de A2 in ca. 12 minuten te bereiken.
Bestemmingsplan:
'Bestemmingsplan Kernen Buren' is geheel onherroepelijk in werking, d.d. 25-2013 met daarin opgenomen de bestemming 'Bedrijventerrein'. De voor ‘Bedrijventerrein' aangewezen gronden zijn bestemd voor:
- bedrijf tot en met categorie 3.2
Huurcondities:
Huurprijs: € 15.000,- per jaar excl. BTW, gas, water, elektra.
Servicekosten: n.t.b.
Aanvaarding: in overleg.
Huurprijsaanpassing: jaarlijks op basis van de consumentenprijsindex van het CBS.
Huurtermijn: in overleg.
Borgsom: 3 maanden.
Bereikbaarheid
- Ridder Alartlaan 1 min. lopen
- Plantsoen 9 min. lopen