Sint Jorisstraat 11 15 - 48 m2 kantoorruimte te huur in Den Bosch
Kenmerken
| Huurprijs | Prijs op aanvraag |
| Functie | Kantoorruimte |
| Onderhoud buiten | Goed |
| Onderhoud binnen | Goed |
| Wijk / Buurt | Binnenstad-Centrum |
1 eenheid beschikbaar
1 eenheid beschikbaar
- Eenheid
- Oppervlakte
- Huurprijs
- Gebruik
Eenheid omschrijving
TE HUUR
Circa 48 m² kantoorruimte
In kamers vanaf 15 m²
MOMENTEEL NIETS BESCHIKBAAR
Het object is gelegen aan de Sint Jorisstraat in het centrum van ’s-Hertogenbosch. De Sint Jorisstraat is een zijstraat van de Vughterstraat, één van de belangrijkste invalswegen van het centrum van ’s-Hertogenbosch. De Sint Jorisstraat is de laatste mogelijkheid om met de auto wederom de Zuidwal te bereiken alvorens het promenadegebied begint. De Zuidwal fungeert als rondweg van het centrum. In de directe omgeving zijn naast woningen onder andere atelierachtige bedrijven gevestigd zoals onder meer Soscar Renovations, Pijnenburg & De Bruijn Interieur Architectuur en G-Nius, Architex, ect.
Kantoorruimte
Het betreft twee voormalige woningen welke met elkaar verbonden zijn en sinds jaren in gebruik is als archiefruimte.
Kenmerken van de kantoorruimte
- Vloeren voorzien van deels vloerbedekking, deels laminaat en deels tegels
- Verwarming d.m.v. radiatoren
- Diversen toiletten
- Pantry
- Kelder
- Houten plafonds voorzien van TL-verlichtingsarmaturen
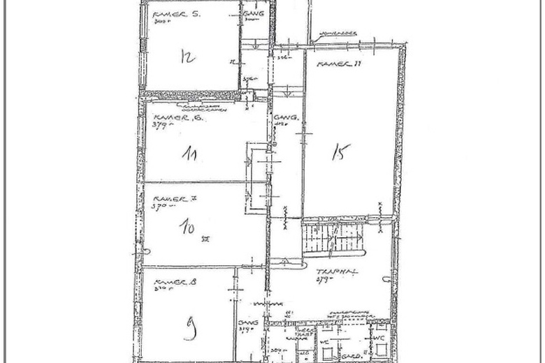
Kamer Verdieping Verhuurbaar vloeroppervlak Huurprijs per maand Servicekosten per maand
excl. BTW excl. BTW
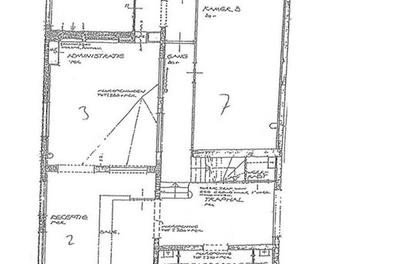
1 begane grond circa 18 m² VERHUURD
2 begane grond circa 15 m² VERHUURD
3 begane grond circa 25 m² VERHUURD
4 begane grond circa 15 m² VERHUURD
5 begane grond circa 18 m² VERHUURD
6 begane grond circa 23 m² VERHUURD
7 begane grond circa 26 m² VERHUURD
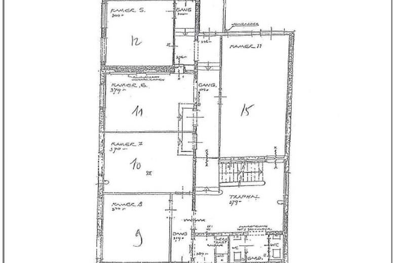
8 eerste verdieping circa 24 m² VERHUURD
9 eerste verdieping circa 15 m² VERHUURD
10 eerste verdieping circa 16 m² VERHUURD
11 eerste verdieping circa 16 m² VERHUURD
12 eerste verdieping circa 14 m² VERHUURD
13 eerste verdieping circa 18 m² VERHUURD
14 eerste verdieping circa 23 m² VERHUURD
15 eerste verdieping circa 27 m² VERHUURD
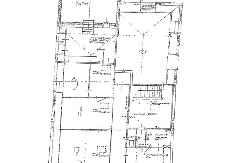
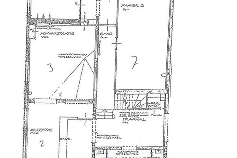
16 tweede verdieping circa 15 m² VERHUURD
17 tweede verdieping circa 14 m² VERHUURD
18 tweede verdieping circa 14 m² VERHUURD
19 tweede verdieping circa 8 m² VERHUURD
20 tweede verdieping circa 15 m² VERHUURD
21 tweede verdieping circa 35 m² VERHUURD
22 tweede verdieping circa 33 m² VERHUURD
Locatie
Door de aansluiting van de Sint Jorisstraat op met name de Zuidwal zijn de diverse windrichtingen van het centrum van ’s-Hertogenbosch alsmede het rijkswegennet, over het algemeen snel te bereiken. Ook de verschillende wijken van ’s-Hertogenbosch zijn door de centrale ligging goed bereikbaar. Het Centraal Station van ’s-Hertogenbosch is op loopafstand van het object gelegen. Tevens zijn er op korte afstand diverse bushaltes gelegen, waar zowel stad- als streekbussen stoppen. De bereikbaarheid met zowel eigen als openbaar vervoer is uitstekend.
| OPPERVLAKTE | Vanaf 15 m2 tot 48 m2 |
| GEBRUIK | Kantoorruimte |
Omschrijving
Omschrijving
TE HUUR
Circa 48 m² kantoorruimte
In kamers vanaf 15 m²
MOMENTEEL NIETS BESCHIKBAAR
Het object is gelegen aan de Sint Jorisstraat in het centrum van ’s-Hertogenbosch. De Sint Jorisstraat is een zijstraat van de Vughterstraat, één van de belangrijkste invalswegen van het centrum van ’s-Hertogenbosch. De Sint Jorisstraat is de laatste mogelijkheid om met de auto wederom de Zuidwal te bereiken alvorens het promenadegebied begint. De Zuidwal fungeert als rondweg van het centrum. In de directe omgeving zijn naast woningen onder andere atelierachtige bedrijven gevestigd zoals onder meer Soscar Renovations, Pijnenburg & De Bruijn Interieur Architectuur en G-Nius, Architex, ect.
Kantoorruimte
Het betreft twee voormalige woningen welke met elkaar verbonden zijn en sinds jaren in gebruik is als archiefruimte.
Kenmerken van de kantoorruimte
- Vloeren voorzien van deels vloerbedekking, deels laminaat en deels tegels
- Verwarming d.m.v. radiatoren
- Diversen toiletten
- Pantry
- Kelder
- Houten plafonds voorzien van TL-verlichtingsarmaturen
Kamer Verdieping Verhuurbaar vloeroppervlak Huurprijs per maand Servicekosten per maand
excl. BTW excl. BTW
1 begane grond circa 18 m² VERHUURD
2 begane grond circa 15 m² VERHUURD
3 begane grond circa 25 m² VERHUURD
4 begane grond circa 15 m² VERHUURD
5 begane grond circa 18 m² VERHUURD
6 begane grond circa 23 m² VERHUURD
7 begane grond circa 26 m² VERHUURD
8 eerste verdieping circa 24 m² VERHUURD
9 eerste verdieping circa 15 m² VERHUURD
10 eerste verdieping circa 16 m² VERHUURD
11 eerste verdieping circa 16 m² VERHUURD
12 eerste verdieping circa 14 m² VERHUURD
13 eerste verdieping circa 18 m² VERHUURD
14 eerste verdieping circa 23 m² VERHUURD
15 eerste verdieping circa 27 m² VERHUURD
16 tweede verdieping circa 15 m² VERHUURD
17 tweede verdieping circa 14 m² VERHUURD
18 tweede verdieping circa 14 m² VERHUURD
19 tweede verdieping circa 8 m² VERHUURD
20 tweede verdieping circa 15 m² VERHUURD
21 tweede verdieping circa 35 m² VERHUURD
22 tweede verdieping circa 33 m² VERHUURD
Locatie
Door de aansluiting van de Sint Jorisstraat op met name de Zuidwal zijn de diverse windrichtingen van het centrum van ’s-Hertogenbosch alsmede het rijkswegennet, over het algemeen snel te bereiken. Ook de verschillende wijken van ’s-Hertogenbosch zijn door de centrale ligging goed bereikbaar. Het Centraal Station van ’s-Hertogenbosch is op loopafstand van het object gelegen. Tevens zijn er op korte afstand diverse bushaltes gelegen, waar zowel stad- als streekbussen stoppen. De bereikbaarheid met zowel eigen als openbaar vervoer is uitstekend.
Bereikbaarheid
- Vughterstraat 1 min. lopen
- Spinhuiswal 3 min. lopen
- Stadskantoor 3 min. lopen
- Achter de Boogaard 3 min. lopen
- Wilhelminaplein 6 min. lopen