Resultaten laden ...

Storkstraat 1 517 m2 kantoorruimte te koop in Lekkerkerk

Kenmerken

Prijs € 650.000 k.k.
Functie Kantoorruimte
Onderhoud buiten Goed
Onderhoud binnen Goed
Bedrijventerrein Lekkerkerk-Oost

Te koop

Representatief kantoorpand met eigen parkeerterrein op eigen grond, gelegen aan de Storkstraat 1 te Lekkerkerk. Het object heeft een totale vloeroppervlakte van circa 517 m² VVO, verdeeld over de begane grond en de 1e verdieping. Op het parkeerterrein is plaats voor ongeveer 20 auto's.

Ligging

Het kantoorpand is gelegen op een bedrijvige en goed bereikbare locatie in Lekkerkerk. In de directe omgeving bevinden zich diverse bedrijfs- en kantoorfuncties. Dankzij de gunstige ligging zijn plaatsen als Krimpen aan den IJssel, Rotterdam en Gouda eenvoudig bereikbaar. Ook openbaar vervoer (bus) is in de nabije omgeving aanwezig.

Parkeren

Bij het pand behoort een eigen parkeerterrein op het perceel. Daarnaast is er voldoende parkeergelegenheid in de openbare ruimte rondom het gebouw.

Oppervlakte

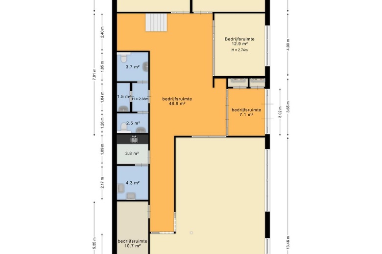
De totale vloeroppervlakte bedraagt circa 517 m² VVO, verdeeld over:

begane grond: circa 260 m² VVO kantoorruimte

1e verdieping: circa 257 m² VVO kantoorruimte

Koopsom

€ 650.000,- kosten koper.

Kadastrale gegevens

Gemeente: Lekkerkerk

Sectie: C

Nummers: 9001 en 9727

Recht: eigendom

Perceeloppervlakte: 349 m² (kantoor) en 395 m² (terrein), totaal 744 m²

Voorzieningen

Het kantoorpand is onder andere voorzien van:

- systeemplafonds met verlichtingsarmaturen;

- vloerafwerking;

- scheidingswanden;

- cv-installatie (aparte CV ketel per verdieping);

- pantry;

- toiletgroepen;

- data- en elektravoorzieningen.

Energielabel: A

Geldig tot: 25-11-2032

Huurstatus

Het object wordt aangeboden vrij van huur en gebruik.

Indien van toepassing zijn nadere huurgegevens op verzoek beschikbaar.

Oplevering

Het pand wordt geleverd in de staat waarin het zich bevindt op het moment van levering (“as is, where is”).

Bestemming

Volgens het geldende bestemmingsplan van de gemeente Krimpenerwaard is het pand bestemd voor kantoor-/bedrijfsdoeleinden volgens artikel 3 van het bestemmingsplan: 'bedrijf tot en met categorie 2': bedrijven uit ten hoogste categorie 2 van de Staat van Bedrijfsactiviteiten 'bedrijventerrein'.

Geïnteresseerden wordt geadviseerd zelf bij de gemeente te verifiëren of het beoogde gebruik past binnen het bestemmingsplan. Informatie is beschikbaar via:

/regels-op-de-kaart/

Aanvaarding

In overleg, kan snel.

Kosten koper

De kosten van overdracht, waaronder notariskosten, kadastraal recht en overdrachtsbelasting, komen voor rekening van koper. Eventuele kosten voor het doorhalen van hypotheken en beslagen zijn voor rekening van verkoper.

Zekerheidsstelling

Koper dient bij ondertekening van de koopovereenkomst een waarborgsom of bankgarantie te stellen ter grootte van 10% van de koopsom.

Voorbehoud

Verkoop is onder voorbehoud van goedkeuring door de eigenaar.

Algemeen

Deze informatie is met zorg samengesteld en bedoeld om een indruk te geven van het aangeboden kantoorpand aan de Storkstraat 1 te Lekkerkerk. Aan de inhoud kunnen geen rechten worden ontleend. Deze presentatie is nadrukkelijk geen aanbod of offerte

Bereikbaarheid

Tram, bus, metro
  • Wilhelminastraat 1 min. lopen
  • Jan Tomstraat 3 min. lopen
  • Van Herk 6 min. lopen
  • Luijtenstraat 7 min. lopen
  • Korte Baanstraat 7 min. lopen

Bijlagen

De aanbieder van dit object heeft een PDF Brochure beschikbaar gesteld.

Vraag brochure aan