Thomas Edisonweg 48 65 - 892 m2 kantoorruimte te huur in Drunen
Kenmerken
| Huurprijs | Prijs op aanvraag |
| Functie | Kantoorruimte |
| Onderhoud buiten | Goed |
| Onderhoud binnen | Goed |
| Wijk / Buurt | Bedrijvenpark Groenewoud |
| Bedrijventerrein | GROENEWOUD (voorheen Groenewoud II en III) |
1 eenheid beschikbaar
1 eenheid beschikbaar
- Eenheid
- Oppervlakte
- Huurprijs
- Gebruik
| OPPERVLAKTE | Vanaf 65 m2 tot 892 m2 |
| GEBRUIK | Kantoorruimte |
Omschrijving
Omschrijving
Op industrieterrein ‘’Groenewoud’’ gelegen kantoorpand met voldoende parkeerplaatsen op eigen terrein.
Mogelijkheid tot moderniseren en aanpassen huidige indelen/uitstraling
Algemeen
Het object ligt aan de rand van bedrijventerrein Groenewoud in Drunen. Dit terrein wordt gekenmerkt door bedrijfsbebouwing met een diversiteit aan architectuur. 'Groenewoud' is een gemengd en regionaal bedrijvenpark voor kleine en middelgrote bedrijvigheid.
Bouwjaar
1995
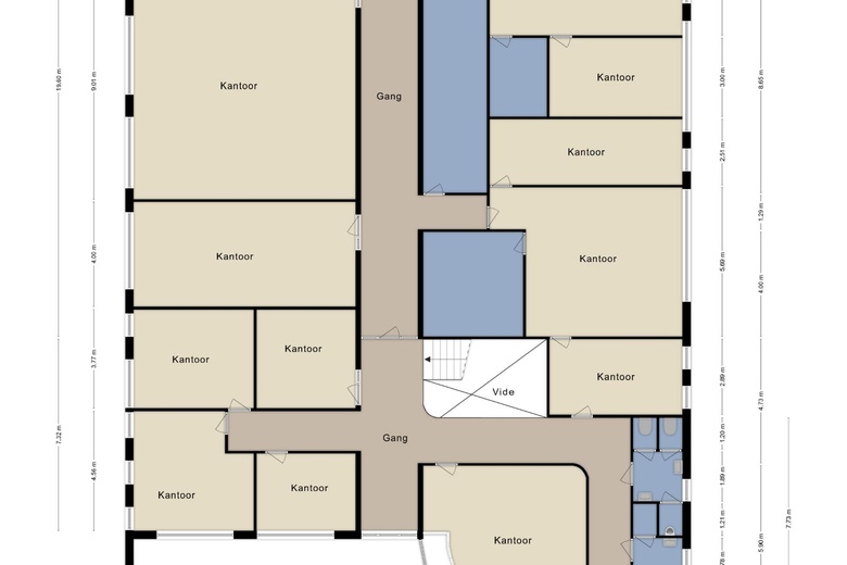
Vloeroppervlakte:
Kantoorruimte begane grond : ca. 306 m²
Kantoorruimte verdieping : ca. 586 m²
Totaal : ca. 892 m²
Bestemming:
Het object valt binnen het bestemmingsplan “Bedrijventerrein Groenewoud ||”, vastgesteld op 23-09-2014, waarin het de bestemming “Bedrijventerrein” heeft gekregen met de aanduiding “Milieucategorie 2 t/m 4”. Voor een afschrift van dit bestemmingsplan kunt u contact met ons kantoor opnemen.
Indeling
Entree, ontvangstruimte, toiletten, pantry, verschillende kantoorvertrekken, trapopgang naar kantoorverdieping met diverse vertrekken w.o. spreekkamers.
Voorzieningen
- Alarm;
- Systeemplafond met verlichting;
- Toiletten;
- Pantry;
- Cv-verwarmd middels radiatoren;
- Airco;
- Tegelvloer, vloerstoffering;
- Zonwering;
- Databekabeling.
Opmerkingen
- voldoende parkeerplaatsen op eigen afgesloten terrein;
- Mogelijkheid tot moderniseren kantoorruimte.
Kadastrale gegevens
Gemeente : Drunen
Sectie : K
Nummer : 1701 (gedeeltelijk)
Energielabel
A+
Oplevering
Het object is snel beschikbaar of in overleg.
Verhuurvoorwaarden
Wij bieden het object aan op basis van onder meer de volgende voorwaarden:
- huurtermijn van vijf (5) jaren met telkenmale verlengingsperioden van vijf (5) jaren, anders in overleg;
- wederzijdse opzegtermijn van twaalf (12) maanden voorafgaand aan expiratiedatum;
- jaarlijkse indexering op basis van het CPI indexcijfer alle huishoudens (2015=100), voor het eerst één jaar na huuringangsdatum;
- betaling per maand vooruit;
- uitgangspunt is een met BTW belaste verhuur;
- doorlopende bankgarantie of waarborgsom ter grootte van drie (3) maanden huur;
- model huurovereenkomst kantoorruimte en andere bedrijfsruimte in de zin van artikel 7:230a BW met bijbehorende algemene bepalingen, zoals vastgesteld door de Raad voor Onroerende Zaken (ROZ) op 30 januari 2015.
Huurprijs: € ‘’huurprijs op aanvraag’’ te vermeerderen met BTW
Verkoopvoorwaarden
Wij bieden het object aan op basis van onder meer de volgende voorwaarden:
- De kosten verbonden aan de eigendomsoverdracht zijn voor rekening van de koper;
- Instrumenterend notaris is te bepalen door de koper;
- Een bankgarantie/waarborgsom ter grootte van 10% van de koopsom, te storten bij instrumenterend notaris uiterlijk 14 dagen na het ondertekenen van de koopovereenkomst.
Vraagprijs: € ‘’prijs op aanvraag’’ k.k.