Resultaten laden ...

Utrechtseweg 310 B38 170 m2 kantoorruimte te huur in Arnhem

Kenmerken

Huurprijs € 190 m²/jaar
Functie Kantoorruimte
Onderhoud buiten Goed
Onderhoud binnen Uitstekend
Wijk / Buurt Klingelbeek

Het pand is gelegen op Arnhems Buiten. Een park vol met monumentale panden, kunst, industriëlegebouwen, zeldzame bomen en ruime gazons. Het is een plek om te ontmoeten, vergaderen en te ontspannen.

Gebouw B38, in het verleden dienstdoende als directierestaurant, is een gerenoveerde, monumentale kantoorvilla met een chique entree.

Ligging

Arnhems Buiten, een rijksmonumentaal park gelegen op de grens tussen Arnhem en Oosterbeek. Op het park zijn faciliteiten als een kinderdagopvang, tennisbaan en restaurant gelegen. Het park biedt huisvesting aan bedrijven in de energiesector waaronder Tennet maar ook bedrijven als Specialized, QSERVE en DNV-GL zijn actief op Arnhems buiten.

Bereikbaarheid

Eigen vervoer

In slechts enkele autominuten zijn het centrum van Arnhem en Oosterbeek bereikbaar evenals de N225 en N325 welke in verbinding staan met de A12, A50 en A325. Ook het snelfietspad tussen Arnhem en Wageningen is dichtbij.

Openbaar vervoer

Station Arnhem Centraal en Oosterbeek/Wageningen zijn gemakkelijk en snel te bereiken.

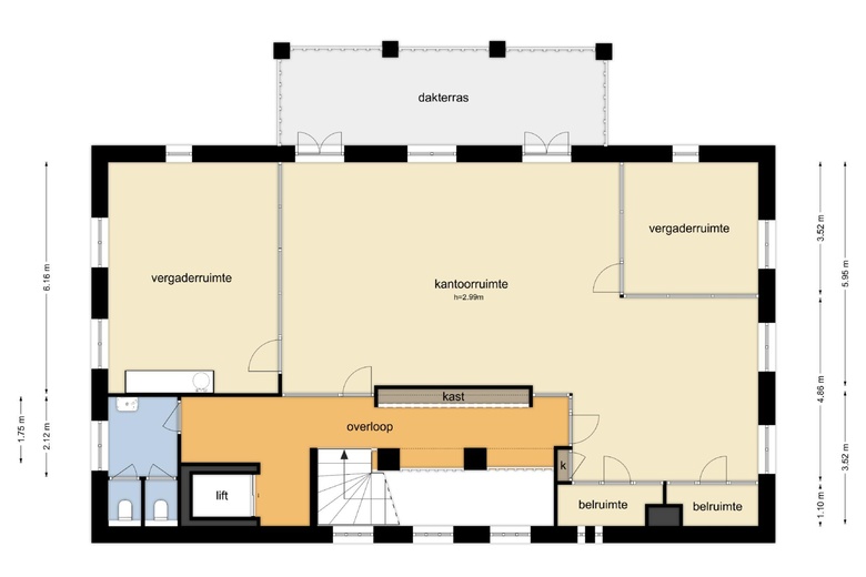
Vloeroppervlakte

Voor de verhuur is beschikbaar een totale oppervlakte van circa 170 m² op de eerste verdieping, inclusief doorbelasting van een aandeel in de gemeenschappelijke ruimten.

Opleveringsniveau

De kantoorruimte is onder andere voorzien van:

- Klimaatplafond;

- Data- en elektrapunten;

- Sanitaire voorziening;

- Pantry;

- Personenlift;

- Verlichtingsarmaturen;

- Luxe scheidingswanden.

Parkeren

Het is mogelijk parkeerrechten te huren. Hiermee krijgt de eigenaar van een parkeerrecht de mogelijkheid om te parkeren op het park.

Huurprijs

€ 190,- per m², per jaar, te vermeerderen met BTW.

Huurprijs parkeren

€ 50,- per parkeerplaats, per maand, te vermeerderen met BTW.

Servicekosten

Een verrekenbaar voorschot ter grootte van € 65,- per m² per jaar, te vermeerderen met BTW, voor onder

andere de onderstaande leveringen en diensten:

• Gasverbruik inclusief vastrecht voor zowel het gehuurde als de gemeenschappelijke ruimten;

• Elektriciteitsverbruik inclusief vastrecht voor de installaties en de verlichting van de gemeenschappelijke ruimten;

• Waterverbruik inclusief vastrecht;

• Onderhoud en periodieke controle van:

- Verwarmingsinstallatie(s);

- Luchtbehandelingsinstallatie(s);

- Brandmelderinstallatie(s);

- Liftinstallatie(s);

- Gebouwbewakingsinstallatie(s);

- Storingsmelderinstallatie(s);

• Schoonmaakkosten van de gemeenschappelijke ruimten, beglazing buitenzijde en terras;

• Verzorging huisvuil, containerhuur en dergelijke;

• Verzorgen legionella beheersplan;

• Onderhoud elektra;

• Klein onderhoud aan gebouw;

• Algemeen toegang en beveiliging;

• Onderhoud groenvoorziening;

• Assurantiepremie buitenbeglazing;

• Parkmanagement

• Receptievoorziening;

• Pantryvoorziening inclusief koffieautomaten op de begane grond t.b.v. de vergaderruimten;

• Administratiekosten ad 5% over de hierboven genoemde leveringen en diensten.

Energielabel

Het pand beschikt over energielabel A.

Heeft dit pand uw interesse gewekt? Dan nodigen wij u van harte uit het pand eens van binnen te komen bekijken!

Bereikbaarheid

Tram, bus, metro
  • Arnhems Buiten 4 min. lopen
  • Mariendaal 8 min. lopen

Bijlagen

De aanbieder van dit object heeft een PDF Brochure beschikbaar gesteld.

Vraag brochure aan