Zaadmarkt 84 a 16 - 351 m2 kantoorruimte te huur in Zutphen
Kenmerken
| Huurprijs | Prijs op aanvraag |
| Functie | Kantoorruimte |
| Onderhoud buiten | Goed |
| Onderhoud binnen | Goed |
| Wijk / Buurt | Stadskern |
1 eenheid beschikbaar
1 eenheid beschikbaar
- Eenheid
- Oppervlakte
- Huurprijs
- Gebruik
Eenheid omschrijving
Karakteristieke (praktijk)ruimtes te huur in Rijksmonumentaal pand De Gouden Sterre – Zaadmarkt 84a, Zutphen.
Op een werkelijk unieke locatie in het historische hart van Zutphen bieden wij diverse karakteristieke (praktijk)ruimtes te huur aan. Dit pand was vroeger onderdeel van het pand Walburgis. Dit indrukwekkende gebouw ademt geschiedenis uit en vormt een bijzondere plek voor professionals die op zoek zijn naar een representatieve, goed bereikbare, werkruimte.
Historie en ligging
Het pand kent een rijke geschiedenis die teruggaat tot de Middeleeuwen en is prachtig gesitueerd op de hoek van de Zaadmarkt en het Ravenstraatje – direct aan de rand van het voetgangersgebied van de Zutphense binnenstad. De locatie biedt niet alleen charme, maar ook uitstekende bereikbaarheid: het pand is goed aan te rijden en er zijn volop openbare parkeerplaatsen direct voor de deur beschikbaar.
Bereikbaarheid
Het centraal station van Zutphen ligt op loopafstand, waardoor ook bezoekers en cliënten die met het openbaar vervoer komen, het pand moeiteloos kunnen bereiken.
In het pand gevestigd
De Gouden Sterre huisvest een inspirerende mix van professionals, waaronder:
Diverse psychologen, therapeuten en ondernemers in de zakelijke dienstverlening.
Dit maakt het een ideale werkomgeving voor bijvoorbeeld zorgprofessionals, coaches, consultants of andere dienstverleners die op zoek zijn naar een centraal gelegen, karaktervolle werkplek.
Kenmerken van de ruimtes:
- Gevestigd in een monumentaal pand met authentieke details
- Beschikbaar voor praktijk- of kantoorgebruik
- Professionele uitstraling in een representatieve omgeving
- Toegang tot gedeelde voorzieningen (details op aanvraag).
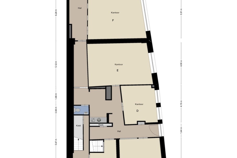
De beschikbare ruimtes (x m2's nvo):
Kamer F: ca. 37 m2 (begane grond) VERHUURD
- Aanvangshuurprijs: € 629,-- per maand excl. btw
- Voorschot energiekosten: € 92,50 per maand excl. btw
- Voorschot servicekosten: € 107,92 per maand excl. btw.
Kamer K: ca. 28 m2 (2e verdieping) VERHUURD
- Aanvangshuurprijs: € 476,-- per maand excl. btw
- Voorschot energiekosten: € 70,-- per maand excl. btw
- Voorschot servicekosten: € 82,67 per maand excl. btw.
Kamer L: ca. 36 m2 (2e verdieping) VERHUURD
- Aanvangshuurprijs: € 612,-- per maand excl. btw
- Voorschot energiekosten : € 90,-- per maand excl. btw
- Voorschot servicekosten : € 105,-- per maand excl. btw.
Kamer M: ca. 19 m2 (2e verdieping)
- Aanvangshuurprijs: € 323,-- per maand excl. btw
- Voorschot energiekosten € 47,50 per maand excl. btw
- Voorschot servicekosten € 55,42 per maand excl. btw.
OPLEVERINGSNIVEAU
In huidige staat, o.a. voorzien van:
- wachtkamer;
- keuken met vaatwasmachine, koelkast, koffiezetapparaat;
- pantry op 1e verdieping;
- toilet(ten) op zowel begane grond, als eerste verdieping;
- CV- installatie met radiatoren;
- plafond met verlichtingsarmaturen;
- vloerafwerking;
- wifi.
HUURTERMIJN
In overleg.
SERVICE-/ ENERGIEKOSTEN
Voorschotbedrag met jaarlijkse verrekening op basis van nacalculatie.
INGANGSDATUM
In overleg.
BETALINGSTERMIJN
Per maand vooruit
BELASTE VERHUUR
Uitgangspunt is met BTW belaste verhuur. Indien huurder werkzaamheden verricht die niet met BTW belast zijn zal het financiële nadeel voor verhuurder als gevolg van de onbelaste verhuur worden verrekend door middel van een opslag op de huurprijs.
WAARBORGSOM
Ter grootte van 1 maand betalingsverplichting.
INDEXERING
Jaarlijks conform het prijsindexcijfer zoals gepubliceerd door het CBS (CPI).
HUUROVEREENKOMST
Model Raad voor Onroerende Zaken (ROZ-model 2015) met bijbehorende Algemene Bepalingen.
BESTEMMING
Het bestemmingsplan Oude stad / IJsselkade is vigerend. De bestemming op deze locatie is gemengd met functie-aanduiding Praktijkruimte. Voor meer informatie verwijzen wij naar de website van de gemeente Zutphen.
VOORBEHOUD
Aan deze informatie kunnen geen rechten worden ontleend en deze informatie kan niet als aanbieding of offerte worden beschouwd. Indien u een aanbieding wenst, kan de makelaar deze - na goedkeuring door de opdrachtgever - op basis van specifieke gegevens verzorgen.
| OPPERVLAKTE | Vanaf 16 m2 tot 351 m2 |
| GEBRUIK | Kantoorruimte |
Omschrijving
Omschrijving
Karakteristieke (praktijk)ruimtes te huur in Rijksmonumentaal pand De Gouden Sterre – Zaadmarkt 84a, Zutphen.
Op een werkelijk unieke locatie in het historische hart van Zutphen bieden wij diverse karakteristieke (praktijk)ruimtes te huur aan. Dit pand was vroeger onderdeel van het pand Walburgis. Dit indrukwekkende gebouw ademt geschiedenis uit en vormt een bijzondere plek voor professionals die op zoek zijn naar een representatieve, goed bereikbare, werkruimte.
Historie en ligging
Het pand kent een rijke geschiedenis die teruggaat tot de Middeleeuwen en is prachtig gesitueerd op de hoek van de Zaadmarkt en het Ravenstraatje – direct aan de rand van het voetgangersgebied van de Zutphense binnenstad. De locatie biedt niet alleen charme, maar ook uitstekende bereikbaarheid: het pand is goed aan te rijden en er zijn volop openbare parkeerplaatsen direct voor de deur beschikbaar.
Bereikbaarheid
Het centraal station van Zutphen ligt op loopafstand, waardoor ook bezoekers en cliënten die met het openbaar vervoer komen, het pand moeiteloos kunnen bereiken.
In het pand gevestigd
De Gouden Sterre huisvest een inspirerende mix van professionals, waaronder:
Diverse psychologen, therapeuten en ondernemers in de zakelijke dienstverlening.
Dit maakt het een ideale werkomgeving voor bijvoorbeeld zorgprofessionals, coaches, consultants of andere dienstverleners die op zoek zijn naar een centraal gelegen, karaktervolle werkplek.
Kenmerken van de ruimtes:
- Gevestigd in een monumentaal pand met authentieke details
- Beschikbaar voor praktijk- of kantoorgebruik
- Professionele uitstraling in een representatieve omgeving
- Toegang tot gedeelde voorzieningen (details op aanvraag).
De beschikbare ruimtes (x m2's nvo):
Kamer F: ca. 37 m2 (begane grond) VERHUURD
- Aanvangshuurprijs: € 629,-- per maand excl. btw
- Voorschot energiekosten: € 92,50 per maand excl. btw
- Voorschot servicekosten: € 107,92 per maand excl. btw.
Kamer K: ca. 28 m2 (2e verdieping) VERHUURD
- Aanvangshuurprijs: € 476,-- per maand excl. btw
- Voorschot energiekosten: € 70,-- per maand excl. btw
- Voorschot servicekosten: € 82,67 per maand excl. btw.
Kamer L: ca. 36 m2 (2e verdieping) VERHUURD
- Aanvangshuurprijs: € 612,-- per maand excl. btw
- Voorschot energiekosten : € 90,-- per maand excl. btw
- Voorschot servicekosten : € 105,-- per maand excl. btw.
Kamer M: ca. 19 m2 (2e verdieping)
- Aanvangshuurprijs: € 323,-- per maand excl. btw
- Voorschot energiekosten € 47,50 per maand excl. btw
- Voorschot servicekosten € 55,42 per maand excl. btw.
OPLEVERINGSNIVEAU
In huidige staat, o.a. voorzien van:
- wachtkamer;
- keuken met vaatwasmachine, koelkast, koffiezetapparaat;
- pantry op 1e verdieping;
- toilet(ten) op zowel begane grond, als eerste verdieping;
- CV- installatie met radiatoren;
- plafond met verlichtingsarmaturen;
- vloerafwerking;
- wifi.
HUURTERMIJN
In overleg.
SERVICE-/ ENERGIEKOSTEN
Voorschotbedrag met jaarlijkse verrekening op basis van nacalculatie.
INGANGSDATUM
In overleg.
BETALINGSTERMIJN
Per maand vooruit
BELASTE VERHUUR
Uitgangspunt is met BTW belaste verhuur. Indien huurder werkzaamheden verricht die niet met BTW belast zijn zal het financiële nadeel voor verhuurder als gevolg van de onbelaste verhuur worden verrekend door middel van een opslag op de huurprijs.
WAARBORGSOM
Ter grootte van 1 maand betalingsverplichting.
INDEXERING
Jaarlijks conform het prijsindexcijfer zoals gepubliceerd door het CBS (CPI).
HUUROVEREENKOMST
Model Raad voor Onroerende Zaken (ROZ-model 2015) met bijbehorende Algemene Bepalingen.
BESTEMMING
Het bestemmingsplan Oude stad / IJsselkade is vigerend. De bestemming op deze locatie is gemengd met functie-aanduiding Praktijkruimte. Voor meer informatie verwijzen wij naar de website van de gemeente Zutphen.
VOORBEHOUD
Aan deze informatie kunnen geen rechten worden ontleend en deze informatie kan niet als aanbieding of offerte worden beschouwd. Indien u een aanbieding wenst, kan de makelaar deze - na goedkeuring door de opdrachtgever - op basis van specifieke gegevens verzorgen.
Bereikbaarheid
- Rijkenhage 4 min. lopen
- Berkelsingel 6 min. lopen
- Zutphen 7 min. lopen
- Coenenparkstraat 10 min. lopen