Resultaten laden ...

Zuiderspoorstraat 3

260 m2 kantoorruimte te koop in Enschede

Kenmerken

Prijs € 460.000 k.k.
Functie Kantoorruimte
Onderhoud buiten Uitstekend
Onderhoud binnen Goed
Wijk / Buurt Getfert

ALGEMEEN
Deze fraaie kantoorvilla is strategisch gesitueerd, nabij het centrum van Enschede en de autosnelweg A35, op een prachtige zichtlocatie. Het object is per direct beschikbaar voor zowel verhuur als verkoop.

Dit karakteristieke object, oorspronkelijk gebouwd in 1929, is in de loop der jaren uitgebreid en verbouwd tot een fraaie kantoorvilla met uitstraling. Het authentieke karakter is behouden, wat terug te zien is in de vele originele details.

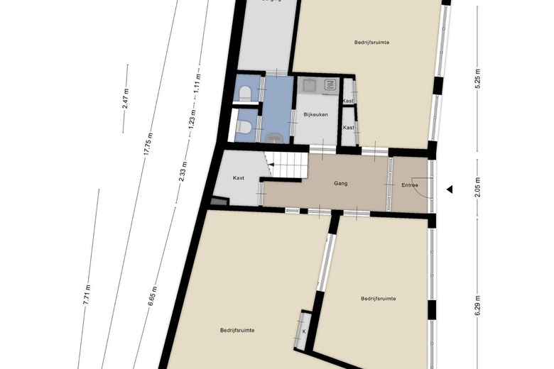
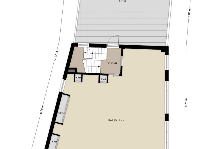
De totale oppervlakte van de kantoorvilla bedraagt ca. 260 m² verdeeld over de begane grond, 1e verdieping en 2e verdieping. De begane grond omvat een aantal kantoorkamers evenals een pantry en toilet. Op de 1e- en 2e verdieping is een open indeling waardoor de ruimtes op diverse wijze benut kunnen worden. Op de 1e verdieping is een royaal dakterras gesitueerd met een oppervlakte van maar liefst ca. 50 m².

Momenteel worden er nog werkzaamheden uitgevoerd aan de kantoorvilla. Zo wordt het stucwerk hersteld, waarna de wanden gesausd zullen worden. Verdere werkzaamheden met betrekking tot het afwerkingsniveau zijn, in overleg met opdrachtgever, bespreekbaar.

BEREIKBAARHEID
Het object is gelegen aan de Zuiderspoorstraat, een parallelweg van de Zuiderval, één van de toegangswegen tot het stadscentrum van Enschede. De Zuiderval is direct gelegen aan de op- en afrit van de autosnelweg A35. Het dichtstbijzijnde busstation is gelegen op ca. 350 meter met een rechtstreekse verbinding naar het treinstation van Enschede.

VLOEROPPERVLAKTE
De totale verhuurbare vloeroppervlakte van het gebouw bedraagt ca. 260 m² en is als volgt onderverdeeld:

Begane grond: ca. 136 m²
Eerste verdieping: ca. 75 m²
Tweede verdieping: ca. 49 m²
Dakterras: ca. 50 m²

Het vloeroppervlak is gemeten door de verhurend/verkopend makelaar op basis van een kopie-bouwtekening. Het opgegeven metrage is derhalve indicatief. Er kunnen geen rechten aan worden ontleend, noch kan er sprake zijn van enige verrekening achteraf.

PARKEREN
Aan de voorzijde van het object zijn ruim voldoende (betaalde) parkeerplaatsen gesitueerd. Tot het object behoren geen parkeerplaatsen. Bij de gemeente Enschede kan een parkeervergunning worden aangevraagd.

BESTEMMING
Volgens het bestemmingsplan “Getfert-Perik-Hogeland-Noord 2023“ heeft het onderhavige de enkelbestemming “Gemengd - 2“ d.w.z. wonen, dienstverlening en bedrijven die zijn genoemd in de categorieën 1 en 2 behorend bij de lijst van bedrijfstypen.

Voor het volledige bestemmingsplan kunt u terecht op: omgevingswet.overheid.nl

WIJZE VAN OPLEVERING
Het object wordt in de huidige staat opgeleverd met o.a. de volgende voorzieningen:

• Meterkast;
• Toilet;
• Pantry;
• Fraaie glas in loodramen;
• Vloerafwerking bestaande uit een granitovloer, parketvloer en tapijt;
• Verwarming middels radiatoren en CV-ketel;
• Zonwering aan de buitenzijde;
• Systeemplafonds v.v. inbouwarmaturen op de 1e verdieping;
• Te openen ramen;
• Glasvezelbekabeling;

HUURPRIJS
€ 34.000,- per jaar, te vermeerderen met BTW.

HUURTERMIJN
De huurtermijn en aansluitende verlengingstermijnen gaan in overleg. Het uitgangspunt is een meerjarige huurovereenkomst.

HUURINGANGSDATUM
Per direct beschikbaar.

HUURBETALING
Per maand, vooruit te betalen.

ZEKERHEIDSSTELLING
Bankgarantie of waarborgsom ter grootte van een bedrag gelijk aan drie maanden betalingsverplichting (inclusief eventuele servicekosten en BTW).

HUURPRIJSAANPASSING
Jaarlijks, voor het eerst één jaar na ingangsdatum huurovereenkomst, conform het prijsindexcijfer Alle Huishoudens (2015=100), gepubliceerd door het Centraal Bureau voor de Statistiek.

HUUROVEREENKOMST
Op basis van de standaard huurovereenkomst van verhuurder, die is gebaseerd op het Model ROZ (Raad voor Onroerende Zaken), model 2015.

BTW
Verhuurder wenst te opteren voor BTW-belaste huur en verhuur. Ingeval huurder de BTW niet kan verrekenen zal de huurprijs in overleg met huurder worden verhoogd ter compensatie van de gevolgen van het vervallen van de mogelijkheid om te opteren voor BTW-belaste verhuur.

KADASTRAAL
Het geheel is plaatselijk bekend als Zuiderspoorstraat 3, 7512 AX Enschede, kadastraal bekend gemeente Enschede, sectie F, nummer 1339, perceelsoppervlakte 152 m².

VRAAGPRIJS
€ 460.000,- kosten koper.

ZEKERHEIDSSTELLING
Waarborgsom ter grootte van 10% van de koopsom.

NOTARIS
Ter keuze van de koper.

VOORBEHOUD
Definitieve goedkeuring opdrachtgever.

De vermelde informatie is van algemene aard en is niet meer dan een uitnodiging om in onderhandeling te treden. Aan de inhoud van deze informatie kunnen geen rechten worden ontleend.

Bijlagen

De aanbieder van dit object heeft een PDF Brochure beschikbaar gesteld.

Vraag brochure aan