Resultaten laden ...

Rietgraaf 0 ong 100 m² kavel te koop in Oosterhout

Kenmerken

Prijs Prijs op aanvraag
Oppervlakte bouwgrond 100 m²
Functie Kavel

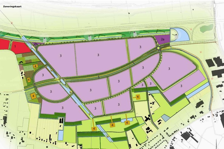
Het betreft een kavel bouwgrond verdeeld over drie kadastrale percelen ter grootte van in totaal 15.223 m² op Bedrijvenpark Park15, gelegen nabij de Rietgraaf te Oosterhout direct nabij de afslag van de A15. De elektriciteits- en gasaansluitingen zijn gerealiseerd en beschikbaar voor gebruik.

Bedrijvenpark Park15

Het bedrijvenpark is gelegen in het hart van de regio Arnhem-Nijmegen en is één van de weinige locaties in Midden- en Oost-Nederland waar grootschalige logistieke en distributiecentra ontwikkeld en gebouwd kunnen worden. Gelegen aan het einde van de A15-zone nabij de Duitse grens, profiteert Park15 van de ligging op het kruispunt van Noord-Zuid en Oost-West routes zoals de A15, A50 en A73.

Ligging

Logistieke Hotspot Park15 is gelegen op een strategische locatie langs de A15 tussen Arnhem en Nijmegen.

Bereikbaarheid

Per auto

Logistieke Hotspot Park15 is direct gelegen aan de snelweg A15. Zowel Arnhem en Nijmegen zijn snel te bereiken via de A325/N325. Op korte afstand is via de A15 de A50 (Eindhoven) de A12 (Utrecht-Den Haag) en de A73 (Venlo-Maastricht). Deze wegen bieden een uitstekende connectie met de Rotterdamse havens, Schiphol, België en Duitsland.

Per trein

Park15 ligt direct tegenover de Betuweroute, de 160 kilometer lange goederenspoorlijn die parallel aan de A15 loopt. Deze oost-west spoorverbinding verbindt de Maasvlakte bij Rotterdam naar de grens met Duitsland. De Betuweroute wordt ook wel gezien als dé spoorverbinding tussen de havens van Amsterdam, Rotterdam en Europa. In de directe nabijheid van Park 15 bevindt zich tevens het Container Uitwissel Punt (CUP) Valburg. Dit is de enige plek aan de Betuwelijn tussen Rotterdam en Duitsland waar treinen kunnen stoppen om containers te lossen. Via de verbinding met Duisburg is het mogelijk om continentale vracht naar het Europese achterland en Azië te vervoeren.

Havenverbinding

Ten zuiden van Park15 ligt op korte afstand “De Waal”. Deze rivier is de grootste arm van de Rijn en wordt als belangrijke waterweg gezien. Met de realisatie van De Oversteek, de nieuwe Waalbrug in Nijmegen, is een snelle verbinding met de Barge Terminal Nijmegen (BCTN) ontstaan in het havengebied van Nijmegen. BCTN heeft een dagelijkse verbinding met de havens van Rotterdam, Antwerpen en het Duitse Ruhrgebied. BCTN Nijmegen heeft een terreinoppervlakte van 33.000 m² en 310 meter kade. De capaciteit ligt middels 2 kranen, één reachstacker en één empty stacker op 160.000 handlings per dag

Bestemming

Bedrijventerrein Park15 Logistics is onderdeel van de gemeente Overbetuwe en valt binnen het vigerende bestemmingsplan “De Nieuwe Rietgraaf”. Dit bestemmingsplan is door de Raad van de gemeente Overbetuwe vastgesteld op 26 januari 2010 en onherroepelijk verklaard op 1 maart 2012.

Het kavel heeft de bestemming 'Bedrijventerrein' met als functieaanduiding bedrijven tot en met categorie 4.1.

Bijzonderheden:

- De bouwhoogte bedraagt maximaal 20 meter;

- Minimale bebouwingspercentage 40%;

- Maximale bebouwingspercentage 100%.

Elektriciteitsvoorzieningen

- Aansluitcategorie: >1MVA t/m 2 MVA;

- Aangesloten op 20 KV net;

- Gecontracteerd transportvermogen levering: 1.700 kW;

- Gecontracteerd transportvermogen teruglevering: 304 kW (loopt aanvraag voor 630 kW);

- Compactstation: D40H Alfen (in huur bij Kenter);

- Trafo: 2.000 kVA met 4000A automaat en een LS-rek wat geschikt is voor 20 stroken (in huur bij Kenter).

Gasvoorzieningen

- Capaciteit: G100 (<100-160 m3/u);

- Netdruk/ meetdruk: 30 mBar;

- Leveringsdruk: 23,4 mBar;

- Externe gaskast.

Koopsom

Op aanvraag.

Zakelijke lasten

Bijdrage Coöperatieve Verenging van Eigenaars: € 0.27,- per m² = € 4.110,21 (2023).

Kadastrale gegevens

Het betreft een totale oppervlakte van circa 15.223 m² als volgt verdeeld:

Gemeente: Valburg

Sectie: L

Nummer: 2693

Grootte: 347 m²

Gemeente: Valburg

Sectie: L

Nummer: 2701

Grootte: 419 m²

Gemeente: Valburg

Sectie: L

Nummer: 2813

Grootte: 14.457 m²

Heeft dit pand uw interesse gewekt? Dan nodigen wij u van harte uit het pand eens van binnen te komen bekijken!

Bereikbaarheid

Tram, bus, metro
  • Gansstraat 2 min. lopen
  • Zandstraat 4 min. lopen
  • Peperstraat 8 min. lopen
  • Vredesplein 8 min. lopen

Bijlagen

De aanbieder van dit object heeft een PDF Brochure beschikbaar gesteld.

Vraag brochure aan