Resultaten laden ...

Albert Cuypstraat 101 - 103 257 m2 winkelruimte te koop in Amsterdam

Kenmerken

Prijs € 1.650.000 k.k.
Functie Winkelruimte
Wijk / Buurt Oude Pijp

Winkelruimte te koop in de populaire wijk De Pijp in het stadsdeel Zuid in Amsterdam.

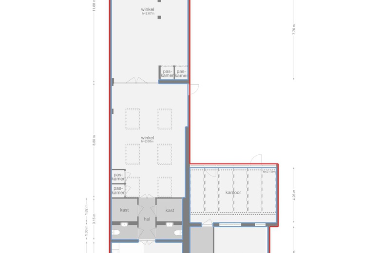
Het betreft een winkelruimte welke gelegen op eigen grond, nieuwe fundering uit 2006/2007 en een oppervlakte van 257 m².

De wijk kenmerkt zich door de diversiteit aan woningen, winkels en horecagelegenheden. In de Albert Cuypstraat is er een dagelijkse markt waar je boodschappen kunt doen, enkel op zondag niet. Verder zijn er veel kleine cafés, restaurants, winkels en boetiekjes. Het nabij gelegen Marie Heinekenplein is een groot plein waar vele restaurants en horecagelegenheden gevestigd zijn. Alle mogelijke voorzieningen bevinden zich op loopafstand van het object. Daarnaast is het Sarphatipark binnen enkele minuten lopend bereikbaar.

BESTEMMING

Volgens het vigerende bestemmingsplan 'Gemend- 2'. De ruimte is daarmee onder meer geschikt om te worden gebruikt ten behoeve van:

- Detailhandel

HUUR

De winkelruimte is verhuurd voor € 106.985,16 exclusief btw per jaar.

Ingangsdatum huurovereenkomst is 1 december 2016 en verhuurd voor 5+5 jaar

OPPERVLAKTEN

Begane grond 257,10 m² VVO

Zie NEN 2580 meetrapport

BOUWJAAR

1898

ENERGIELABEL

A+

KADASTRAAL BEKEND

Gerard Doustraat 74 H:

Gemeente Amsterdam

Sectie R

Nummer 7362

Index A-1

Albert Cuypstraat 101-103:

Gemeente Amsterdam

Sectie R

Nummer 8217 & 8218

Index A-1

VVE

Het betreft drie verschillende VvE's met allen VB Real Estate Management als VvE beheerder.

Alle VvE's zijn actief, de VvE van Gerard Doustraat is sinds 2023 actief.

BIJZONDERHEDEN

- Het pand wordt ‘as is’ verkocht;

- Gelegen op eigen grond;

- Energielabel A+;

- Nieuwe fundering uit 2006/2007;

- Jaarhuur bedraagt € 137.619,60 inclusief servicekosten en btw.

- Bouwarchief, huurgegevens en verdere gegevens zijn op te vragen bij verkopend makelaar.

Bereikbaarheid

Tram, bus, metro
  • Marie Heinekenplein 3 min. lopen
  • De Pijp 5 min. lopen
  • Vijzelgracht 5 min. lopen
  • 2e Van der Helststraat 7 min. lopen
  • Van Hilligaertstraat 9 min. lopen