Beltmolen 1 90 m2 winkelruimte te huur in Nunspeet
Kenmerken
| Huurprijs | € 15.000 /jaar |
| Functie | Winkelruimte |
| Onderhoud buiten | Uitstekend |
| Onderhoud binnen | Uitstekend |
| Wijk / Buurt | Verspreide huizen Zuiderzeeland Nunspeet |
1 eenheid beschikbaar
1 eenheid beschikbaar
- Eenheid
- Oppervlakte
- Huurprijs
- Gebruik
Eenheid omschrijving
TE HUUR
Beltmolen 1-a Nunspeet
OBJECT
Casco winkelruimte (bouwjaar 2023), de winkel heeft een eigen ingang direct naast de ingang van de ALDI supermarkt.
De ruimte is met name ideaal voor bijvoorbeeld een slijterij of een tabak speciaalzaak.
Er zijn voldoende parkeermogelijkheden op het openbare parkeerterrein voor de winkel.
LIGGING
Aan de noordoostkant van Nunspeet wordt momenteel de laatste hand aan de nieuwe wijk Molenbeek gelegd. Een landelijke woonwijk met een dorps karakter. Molenbeek vormt de meest recente grote inbreidingslocatie van Nunspeet. Aan de entree van deze woonwijk is deze unit beschikbaar. Door de grote passanten stroom welke langs de locatie komen is de zichtbaarheid van het object uitermate goed te noemen vanwege de tactische ligging op de hoek van de Elburgerweg en Beltmolen.
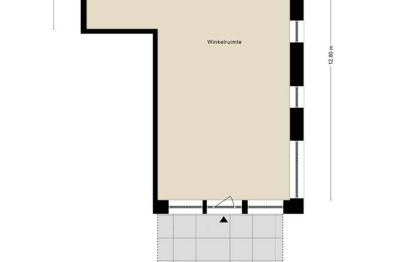
VERHUURBARE VLOEROPPERVLAKTE
Totaal ca. 90 m² winkelruimte op de begane grond.
VOORZIENINGEN
- meterkast
- winkelpui;
Huurder dient zelf het gehuurde geschikt te maken voor eigen doeleinden.
BESTEMMING
Het gehuurde valt onder het bestemmingsplan "Molenbeek" van de Gemeente Nunspeet met als functie aanduiding "maatschappelijk". Ten aanzien van dit adres heeft de Gemeente medewerking verleent aan een afwijking van het geldende bestemmingsplan voor het oprichten van een supermarkt (ALDI). Ten aanzien van het gehuurde adviseren wij u om die reden in gesprek te gaan met de Gemeente als u af wilt wijken van het bestemmingsplan.
AANVAARDING
Op korte termijn mogelijk.
HUURPRIJS
€ 15.000,-- per jaar exclusief omzetbelasting.
LEVERINGEN EN DIENSTEN
Niet van toepassing in verband met eigen meters.
PROMOTIEKOSTEN
Niet van toepassing.
ENERGIELABEL
A++++
HUURTERMIJN
Vijf (05) jaar.
OPZEGTERMIJN
Twaalf (12) maanden.
INDEXERING
Jaarlijks conform CPI-Alle Huishoudens (2015=100), voor het eerst één jaar na de ingangsdatum van de huurovereenkomst.
CONTRACT
ROZ-huurcontract voor winkelruimte, versie 2022 met bijbehorende algemene bepalingen, alsmede enkele aanvullende bepalingen.
WAARBORGSOM/BANKGARANTIE/CONCERNGARANTIE
Ter grootte van een kwartaalhuur te vermeerderen met omzetbelasting.
OMZETBELASTING
Er wordt geopteerd voor belaste verhuur, c.q. de huurprijs wordt verhoogd met omzetbelasting. Indien er niet wordt geopteerd voor belaste verhuur, wordt de huurprijs verhoogd met een nader door de accountant van verhuurder vast te stellen percentage.
PRIVACY
Brandt Bedrijfsmakelaars respecteert uw recht op privacy en garandeert dat uw persoons- en bedrijfsgegevens op een vertrouwelijke en verantwoordelijke wijze zullen worden behandeld, overeenkomstig de richtlijnen uit de Algemene Verordening Gegevensbescherming (AVG).
DISCLAIMER
Nadrukkelijk is vermeld dat deze informatieverstrekking niet als een aanbieding of offerte mag worden beschouwd. Aan deze gegevens kunnen geen rechten worden ontleend.
| OPPERVLAKTE | 90 m2 |
| GEBRUIK | Winkelruimte |
Omschrijving
Omschrijving
TE HUUR
Beltmolen 1-a Nunspeet
OBJECT
Casco winkelruimte (bouwjaar 2023), de winkel heeft een eigen ingang direct naast de ingang van de ALDI supermarkt.
De ruimte is met name ideaal voor bijvoorbeeld een slijterij of een tabak speciaalzaak.
Er zijn voldoende parkeermogelijkheden op het openbare parkeerterrein voor de winkel.
LIGGING
Aan de noordoostkant van Nunspeet wordt momenteel de laatste hand aan de nieuwe wijk Molenbeek gelegd. Een landelijke woonwijk met een dorps karakter. Molenbeek vormt de meest recente grote inbreidingslocatie van Nunspeet. Aan de entree van deze woonwijk is deze unit beschikbaar. Door de grote passanten stroom welke langs de locatie komen is de zichtbaarheid van het object uitermate goed te noemen vanwege de tactische ligging op de hoek van de Elburgerweg en Beltmolen.
VERHUURBARE VLOEROPPERVLAKTE
Totaal ca. 90 m² winkelruimte op de begane grond.
VOORZIENINGEN
- meterkast
- winkelpui;
Huurder dient zelf het gehuurde geschikt te maken voor eigen doeleinden.
BESTEMMING
Het gehuurde valt onder het bestemmingsplan "Molenbeek" van de Gemeente Nunspeet met als functie aanduiding "maatschappelijk". Ten aanzien van dit adres heeft de Gemeente medewerking verleent aan een afwijking van het geldende bestemmingsplan voor het oprichten van een supermarkt (ALDI). Ten aanzien van het gehuurde adviseren wij u om die reden in gesprek te gaan met de Gemeente als u af wilt wijken van het bestemmingsplan.
AANVAARDING
Op korte termijn mogelijk.
HUURPRIJS
€ 15.000,-- per jaar exclusief omzetbelasting.
LEVERINGEN EN DIENSTEN
Niet van toepassing in verband met eigen meters.
PROMOTIEKOSTEN
Niet van toepassing.
ENERGIELABEL
A++++
HUURTERMIJN
Vijf (05) jaar.
OPZEGTERMIJN
Twaalf (12) maanden.
INDEXERING
Jaarlijks conform CPI-Alle Huishoudens (2015=100), voor het eerst één jaar na de ingangsdatum van de huurovereenkomst.
CONTRACT
ROZ-huurcontract voor winkelruimte, versie 2022 met bijbehorende algemene bepalingen, alsmede enkele aanvullende bepalingen.
WAARBORGSOM/BANKGARANTIE/CONCERNGARANTIE
Ter grootte van een kwartaalhuur te vermeerderen met omzetbelasting.
OMZETBELASTING
Er wordt geopteerd voor belaste verhuur, c.q. de huurprijs wordt verhoogd met omzetbelasting. Indien er niet wordt geopteerd voor belaste verhuur, wordt de huurprijs verhoogd met een nader door de accountant van verhuurder vast te stellen percentage.
PRIVACY
Brandt Bedrijfsmakelaars respecteert uw recht op privacy en garandeert dat uw persoons- en bedrijfsgegevens op een vertrouwelijke en verantwoordelijke wijze zullen worden behandeld, overeenkomstig de richtlijnen uit de Algemene Verordening Gegevensbescherming (AVG).
DISCLAIMER
Nadrukkelijk is vermeld dat deze informatieverstrekking niet als een aanbieding of offerte mag worden beschouwd. Aan deze gegevens kunnen geen rechten worden ontleend.
Bereikbaarheid
- De Bunte 7 min. lopen
- Verzorgingstehuis Bunterhoek 7 min. lopen
- Elburgerweg 8 min. lopen