Resultaten laden ...

Dorpsstraat 524 62 m2 winkelruimte te koop in Noord-Scharwoude

Kenmerken

Prijs € 650.000 k.k.
Functie Winkelruimte
Onderhoud buiten Goed
Onderhoud binnen Goed

In het gezellige Noord-Scharwoude, gelegen direct naast de Albert Heijn bieden wij deze commerciële ruimte met woonruimte aan.

De winkelruimte bevindt zich aan de voorzijde van het object en heeft een oppervlakte van 62 m² BVO/55 m² VVO. De woonruimte is verdeeld over de begane grond, met een oppervlakte van circa 102 m² GO met tuin en de eerste verdieping met een oppervlakte van circa 66,8 m² GO. Onder het object is een kleine kelder gelegen van circa 4 m².

Het geheel is gelegen op een perceel eigen grond van ca. 219 m².

Vraagprijs

€ 650.000,- k.k., excl. BTW.

Inhoudsbeschrijving

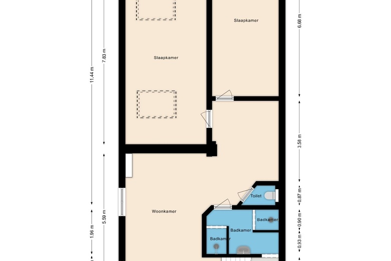
Bij binnenkomst via de voorzijde betreedt u direct de winkelruimte. De ingang naar de woning bevindt zich aan de zijkant van het object. Wanneer u de woning betreedt, komt u binnen in de hal met toegang tot de keuken. Aan de achterzijde van de woning bevindt zich een grote ruimte die geschikt is voor een eetkamer/ woonkamer en één slaapkamer. Achter het pand is een tuin gelegen. Op de eerste verdieping treft u vier slaapkamers, een badkamer en een toilet aan.

Opleveringsniveau

In de huidige staat.

Installaties

Alle aanwezige installaties/voorzieningen behoren tot het gekochte, daaronder o.a. begrepen:

Winkel:

- Plafondafwerking;

- Elektrische aansluiting;

- Tegelvloer.

Woning:

- Vloerafwerking;

- Elektrische aansluiting;

- Toilet;

- Badkamer;

- Radiator;

- Rioolaansluiting.

Parkeren

Voldoende gratis parkeermogelijkheden voor het object op de openbare weg.

Bereikbaarheid

Via de N245 (Schagen – Alkmaar) en via de N242 (Middenmeer – Alkmaar) is het object met de auto goed bereikbaar. Tevens bevindt zich een bushalte op loopafstand van het object.

Kadastrale gegevens

Gemeente: Langedijk.

Sectie: G.

Nummer: 5560.

Groot: 219 m².

Bouwjaar

1921, conform de BAG Viewer van het Kadaster.

Energielabel

Van het aangeboden object is energielabel G beschikbaar (voor renovatie). Er zal een nieuwe label worden opgesteld.

Meetrapport

Van de winkel en woonruimte is een meetrapport beschikbaar op aanvraag.

Bestemming

Bij de gemeente Dijk en Waard valt het perceel binnen het bestemmingsplan “Noord- en Zuid- Scharwoude”. Dit houdt in dat het perceel bestemd is voor “Gemengd”. Bij twijfel over het toestaan van uw bedrijfsvoering adviseren wij u zelf contact op te nemen met de Gemeente Dijk en Waard of via het Omgevingsloket.

Model overeenkomst

Model koopovereenkomst voor Bedrijfs-onroerendgoed (model 2023).

Zekerheidstelling

Een bankgarantie ter grootte van 10% van de koopsom, te vermeerderen met BTW.

Aanvaarding

Kan per direct.

BTW

De koopsom is gebaseerd op het feit dat de koper prestaties verricht die volledig of minimaal het in de Wet op de Omzetbelasting 1968 genoemde percentage recht op aftrek van de omzetbelasting op grond van artikel 15 van de Wet op de Omzetbelasting 1968. Bij twijfel verzoeken wij u contact op te nemen met uw accountant.

Voorbehoud

Goedkeuring en gunning eigenaar.

Alle informatie is geheel vrijblijvend en houdt enkel in een uitnodiging tot het doen van een bieding. Alle gegevens zijn met zorg samengesteld en uit ons inziens betrouwbare bron afkomstig. Ten aanzien van de juistheid ervan kunnen wij echter geen aansprakelijkheid aanvaarden.

Bereikbaarheid

Tram, bus, metro
  • Kloosterstraat 1 min. lopen
  • Violenstraat 3 min. lopen
  • Molenkade 6 min. lopen
  • Boomgaard 8 min. lopen
  • Zwembad Duikerdel 8 min. lopen

Bijlagen

De aanbieder van dit object heeft een PDF Brochure beschikbaar gesteld.

Vraag brochure aan