Resultaten laden ...

Dorpsstraat 7 338 m2 winkelruimte te koop in Castricum

Kenmerken

Prijs € 450.000 k.k.
Functie Winkelruimte
Onderhoud buiten Redelijk
Onderhoud binnen Redelijk
Wijk / Buurt Centrum-Zuid

WINKELRUIMTE IN HARTJE CASTRICUM

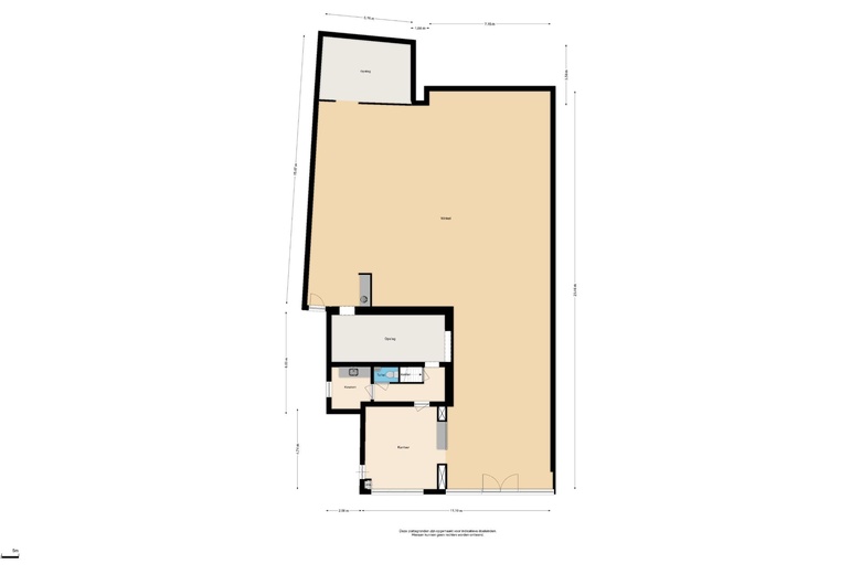
Winkelruimte gelegen aan een centrumstraat in Castricum. Het object betreft een commerciële ruimte met een totale oppervlakte van circa 338 m² BVO. De ruimte is geschikt voor detailhandel, showroom en/of dienstverlening. Verkoop vindt plaats als gesplitst object; bij juridische splitsing dient een Vereniging van Eigenaars (VvE) te worden opgericht.

INDELING / OPLEVERINGSNIVEAU:

De winkelruimte beschikt over een zelfstandige entree aan de straatzijde en bestaat uit één commerciële ruimte. Het object wordt leeg en ontruimd opgeleverd en verkocht in de huidige staat (“as is”). Nadere voorzieningen en installaties zijn niet gespecificeerd.

GROOTTE:

Ca. 338 m² (BVO)

LOCATIE EN BEREIKBAARHEID:

Het object is gelegen in het centrum van Castricum, op korte afstand van Station Castricum. De ligging kenmerkt zich door een mix van winkels, horeca en dienstverlenende bedrijven. De bereikbaarheid per auto is goed, met aansluiting op het lokale en regionale wegennet.

PARKEREN:

Aan de voorzijde bestaat de mogelijkheid om parkeerplaatsen op eigen terrein te realiseren. Daarnaast is in de directe omgeving openbare parkeergelegenheid aanwezig, deels gereguleerd via een blauwe zone en deels vrij parkeren.

BESTEMMING:

Conform het geldende bestemmingsplan zijn onder meer toegestaan:

Detailhandel

Showroom

Kantoren

(Medische) dienstverlening

Maatschappelijke voorzieningen

Kleine bedrijven (categorie A en B)

Koper dient zich zelf te vergewissen van de geldende bestemmingsmogelijkheden via

KADASTRALE GEGEVENS:

Gemeente: Castricum

Sectie: B

Nummer: 13145

OPLEVERING & VOORWAARDEN

De verkoop vindt plaats in de huidige staat. Ideaal voor wie zijn eigen invulling wil geven zonder onnodige beperkingen. De winkel wordt leeg en ontruimd opgeleverd.

VOORWAARDEN

Alle door Teer Bedrijfsmakelaars verstrekte informatie kan uitsluitend gezien worden als een uitnodiging tot nader overleg c.q. tot het uitbrengen van een bod. Hoewel gestreefd is naar een zo zorgvuldig mogelijke weergave van de beschikbare gegevens, moet er van worden uitgegaan dat bovenstaande slechts indicatief is. De gegevens (bedragen, jaartallen, omschrijvingen, etc.) kunnen zijn verkregen door mondelinge overdracht. Een kandidaat huurder/koper heeft zijn eigen onderzoeksplicht naar alle zaken die voor hem van belang zijn.

Bereikbaarheid

Tram, bus, metro
  • Castricum 8 min. lopen
  • Station UIT 8 min. lopen

Bijlagen

De aanbieder van dit object heeft een PDF Brochure beschikbaar gesteld.

Vraag brochure aan