Grote Kerkstraat 1
45 m2 winkelruimte te koop in Steenbergen
Kenmerken
| Prijs | € 235.000 k.k. |
| Oppervlakte verkoopvloer | 28 m2 |
| Frontbreedte winkel | 381 m |
| Aantal bouwlagen | 1 |
| Welstandsklasse | C2 |
| Functie | Winkelruimte |
| Wijk / Buurt | Steenbergen-Centrum |
1 eenheid beschikbaar
1 eenheid beschikbaar
Omschrijving
Omschrijving
Te koop woon-/winkelpand in het hart van Steenbergen!
Aan de levendige Grote Kerkstraat, midden in het centrum van Steenbergen, bieden wij dit karakteristieke woon-/winkelpand te koop aan. Het object combineert een commerciële plint met een zelfstandige bovenwoning, ideaal voor eigen gebruik of als beleggingsobject. De winkelruimte beschikt over een representatieve pui en de woning over een eigen entree via de zijgevel. De winkelruimte is voorzien van een systeemplafond met verlichting, rolluiken, een uitstortgootsteen met koud wateraansluiting, een toilet en een wasmachineaansluiting. Daarnaast is er een gecertificeerd inbraak- en beveiligingssysteem aanwezig, alsmede een camerabewakingssysteemDe bovenwoning is verdeeld over twee verdiepingen en omvat een woonkamer met open keuken, badkamer met toilet, twee slaapkamers en een bergruimte. Verwarming en warm water worden verzorgd via een cv-combiketel en een 2e aansluiting voor de wasmachine. Oppervlakte
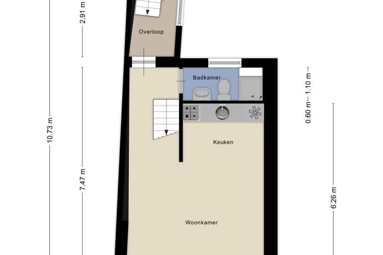
De winkelruimte omvat circa 45 m² vvo. en de bovenwoning circa 56 m² gbo.
Een NEN2580-meetrapport met plattegronden is beschikbaar. Koopsom
Een aantrekkelijke vraagprijs van € 235.000 kosten koper De overdracht vindt plaats in de huidige staat ("as is, where is"). Eventuele overdrachtsbelasting, notariskosten en kadastrale kosten zijn voor rekening van koper. Exploitatie winkel
Eventueel is overname van de onderneming bespreekbaar. Zekerheidsstelling
Ter garantie dient een waarborgsom ter hoogte van 10% van de koopsom gestort te worden op de rekening van de notaris of afgegeven te worden als bankgarantie, uiterlijk 7 dagen na volledige ondertekening van de koopovereenkomst. Kadaster
Kadastraal bekend als gemeente Steenbergen, sectie W, nummer 1547.
Het perceel is 50 m² groot. Omgevingsplan
Het betreft bestemmingsplan Kom Steenbergen. Het heeft bestemming Centrum-1. Potentie
Het pand biedt mogelijkheden voor zowel particuliere beleggers als gebruikers. De winkelruimte is geschikt voor detailhandel, dienstverlening of kantoor, terwijl de bovenwoning separaat kan worden verhuurd. De ligging in de hoofdwinkelstraat, op loopafstand van winkels en horeca, maakt dit een aantrekkelijke locatie voor diverse doelgroepen. Beschikbaar
In overleg, op korte termijn. Algemeen
Al het bovenstaande betreft informatie omtrent de verkoop van de winkel/woonruimte aan de Grote Kerkstraat 1 te Steenbergen. De informatie is met zorg samengesteld, maar voor de juistheid ervan kan door Helmig & Fermont Bedrijfsonroerendgoed geen aansprakelijkheid worden aanvaard, noch aan de vermelde gegevens enig recht worden ontleend. Nadrukkelijk is vermeld dat deze informatieverstrekking niet als aanbieding of offerte mag worden beschouwd. Voor nadere informatie en/of bezichtiging kunt u contact opnemen met:
Helmig & Fermont Bedrijfsonroerendgoed Arnoldus Asselbergsstraat 25
4611 CLN Bergen op Zoom