Hinthamerstraat 224 87 m2 winkelruimte te huur in Den Bosch
Kenmerken
| Huurprijs | € 21.500 /jaar |
| Functie | Winkelruimte |
| Wijk / Buurt | Binnenstad-Oost |
1 eenheid beschikbaar
1 eenheid beschikbaar
- Eenheid
- Oppervlakte
- Huurprijs
- Gebruik
Eenheid omschrijving
TE HUUR
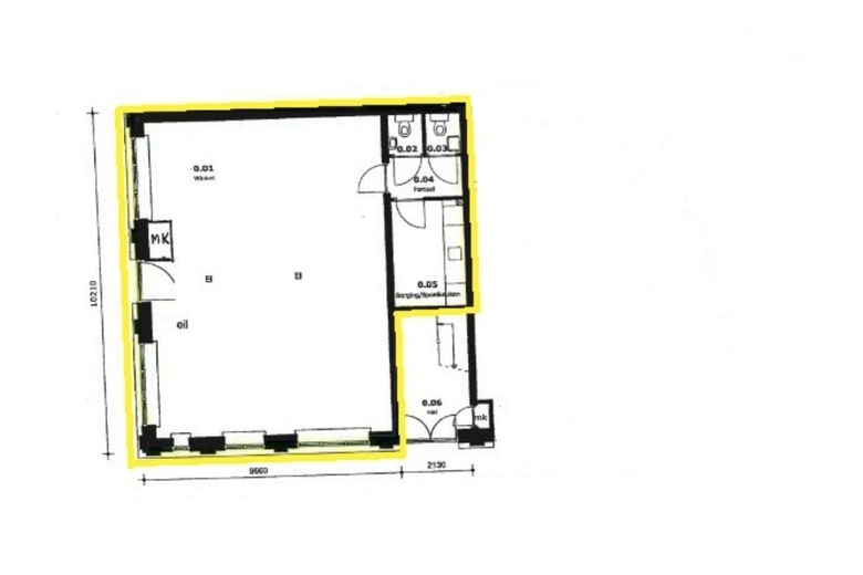
Circa 87 m² commerciële ruimte
Het object is gelegen aan de Hinthamerstraat 224, op een uitstekende zichtlocatie aan de aanlooproute naar het historische stadscentrum en kent een continue stroom van voetgangers, fietsers en lokaal verkeer.
In de directe omgeving bevinden zich diverse speciaalzaken waaronder Choco Loca, Optiek Vogel, Multivlaai Den Bosch, horeca, culturele voorzieningen en parkeergelegenheden.
Het betreft een karakteristiek en representatief winkelpand met een totale oppervlakte van circa 87 m² op de begane grond.
Het object is geschikt voor diverse vormen van dienstverlening of detailhandel.
Kenmerken
- Grote etalageramen rondom het object
- Tegelvloer
- Systeemplafond met TL-verlichting
- Airco
- Toilet
- Pantry
Parkeren
Parkeren in de directe omgeving is mogelijk tegen betaling. Tevens zijn Parkeergarage Sint Josephstraat en Parkeergarage Sint Jan op loopafstand van het object gelegen. Ook is er een mogelijkheid tot het aanvragen van een parkeervergunning.
Bereikbaarheid
Het object is met zowel eigen vervoer als openbaar vervoer goed te bereiken. Het NS Centraal Station 's-Hertogenbosch is gesitueerd op circa 20 minuten loopafstand en tevens rijden er diverse stadsbussen. De Rijkswegen A2 en A59 zijn eveneens goed te bereiken.
| OPPERVLAKTE | 87 m2 |
| GEBRUIK | Winkelruimte |
Omschrijving
Omschrijving
TE HUUR
Circa 87 m² commerciële ruimte
Het object is gelegen aan de Hinthamerstraat 224, op een uitstekende zichtlocatie aan de aanlooproute naar het historische stadscentrum en kent een continue stroom van voetgangers, fietsers en lokaal verkeer.
In de directe omgeving bevinden zich diverse speciaalzaken waaronder Choco Loca, Optiek Vogel, Multivlaai Den Bosch, horeca, culturele voorzieningen en parkeergelegenheden.
Het betreft een karakteristiek en representatief winkelpand met een totale oppervlakte van circa 87 m² op de begane grond.
Het object is geschikt voor diverse vormen van dienstverlening of detailhandel.
Kenmerken
- Grote etalageramen rondom het object
- Tegelvloer
- Systeemplafond met TL-verlichting
- Airco
- Toilet
- Pantry
Parkeren
Parkeren in de directe omgeving is mogelijk tegen betaling. Tevens zijn Parkeergarage Sint Josephstraat en Parkeergarage Sint Jan op loopafstand van het object gelegen. Ook is er een mogelijkheid tot het aanvragen van een parkeervergunning.
Bereikbaarheid
Het object is met zowel eigen vervoer als openbaar vervoer goed te bereiken. Het NS Centraal Station 's-Hertogenbosch is gesitueerd op circa 20 minuten loopafstand en tevens rijden er diverse stadsbussen. De Rijkswegen A2 en A59 zijn eveneens goed te bereiken.
Bereikbaarheid
- Sluis 0 1 min. lopen
- Hinthamerstraat 1 min. lopen
- Hinthamereinde 2 min. lopen
- Graafseweg 6 min. lopen
- Sint Josephstraat 7 min. lopen