Resultaten laden ...

Kanaalstraat 77 A 125 m2 winkelruimte te huur in Lisse

Kenmerken

Huurprijs € 1.850 /maand
Functie Winkelruimte
Onderhoud buiten Goed
Onderhoud binnen Uitstekend
Wijk / Buurt Centrum

ALGEMEEN:

Gunstig op een goede zichtlocatie in het centrum van Lisse gelegen turn-key (HOEK)winkel-/praktijk-/dienstverleningsruimte van ca. 125 m² VVO met een zeer royaal front van zo'n 15 meter breed, direct aan de rand van winkelcentrum Blokhuis en het regionaal sterke en bruisende 'Dorpshart' van Lisse met gratis parkeergelegenheid direct voor de deur en in de directe omgeving (parkeerschijf 2u). In de directe omgeving bevinden zich diverse landelijke retailketens zoals Bristol, C&A, L.J. Sport 2000, America Today, Trekpleister en BCC maar ook diverse restaurants en lokale vers- en speciaalzaken zoals het Smaakhuis, Baaij Fresh en Bakker Van Maanen! De ruimte leent zich ook uitstekend voor dienstverlenende activiteiten, maatschappelijke voorzieningen en lichte horeca.

INDELING:

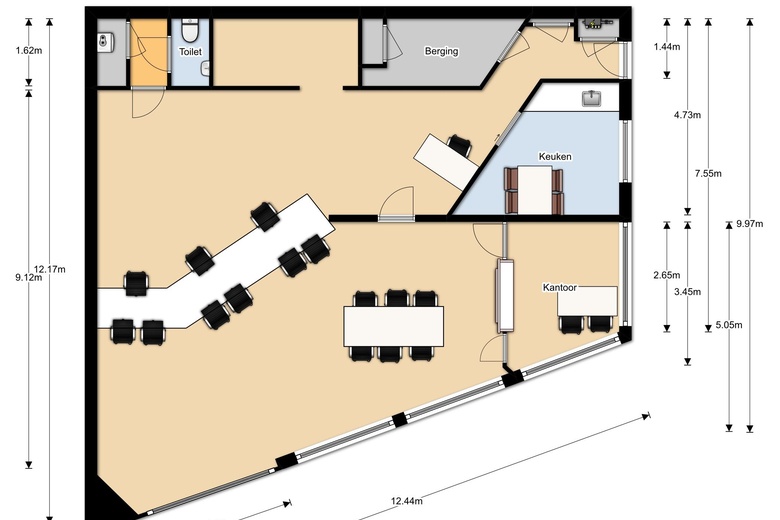
Entree middels elektrische schuifdeuren, ruime compleet afgewerkte / gerenoveerde open winkel-/praktijk- en/of dienstverleningsruimte van zo'n 80 m² met balie-functie en open spreekkamer (glazen deuren) aan de voorzijde. Aan de achterzijde van de winkelruimte is voorzien in een afgesloten keuken-/kantineruimte met complete luxe pantry met diverse inbouwapparatuur en bovenkasten, een ruime bergkast en archiefruimte. Verder middels een separate hal toegang tot vrijdragend toilet en fontein alsmede een aparte kast met opstelling c.v.-ketel. Tevens is er een zij-entree aan de Julianastraat aanwezig. Het achtergedeelte is ca. 45 m².

OPPERVLAKTE:

Ca. 125 m² VVO.

VOORZIENINGEN / OPLEVERINGSNIVEAU:

De ruimte wordt casco verhuurd, oplevering in de huidige staat:

- Betonnen vloer met vloerbedekking en/of linoleum;

- Grote glazen pui v.v. dubbel glas en elektrische schuifdeuren aan de voorzijde;

- Zij-entree;

- Warmtegordijn en radiatoren t.b.v. verwarming;

- Airconditioning;

- Systeemplafond met (led)-armaturen;

- Luxe pantry met inbouwapparatuur (o.a. koelkast, magnetron en close-in-boiler);

- Geheel betegeld vrijdragend toilet met fonteintje;

- Kast met opstelling c.v.-ketel;

- Meter/groepenkast;

- Alarminstallatie en camera-systeem;

- Kabelgoot;

- Met glasvliesbehang afgewerkte wanden;

- Kantoor-/winkelinrichting met baliefunctie en inbouwkasten.

Eventueel aanwezige voorzieningen worden eenmalig door verhuurder aan huurder ter beschikking gesteld en maken geen deel uit van het gehuurde.

BESTEMMING:

Conform het vigerend bestemmingsplan "Lisse Centrum 2011" heeft het pand de bestemming 'Gemengd'. Deze gronden zijn onder meer bestemd voor detailhandel, dienstverlening, maatschappelijke voorzieningen alsmede lichte horecabedrijven uit ten hoogste categorie 1 van de Staat van Horeca-activiteiten, uitsluitend inpandig.

PARKEREN:

Gratis parkeren kan voor de deur en in de directe omgeving (parkeerschijf 2 uur).

HUURPRIJS:

€ 1.850,= per maand exclusief BTW.

OPLEVERING:

In overleg, per direct mogelijk.

BIJZONDERHEDEN:

Deze voormalige Zorg & Zekerheid-winkel is door de vorige huurder compleet gerenoveerd en afgebouwd! In overleg kan de ruimte zowel in de huidige staat als leeg worden opgeleverd.

HUURTERMIJN:

In onderling overleg. De ruimte is beschikbaar t/m 14 januari 2025.

HUUROVEREENKOMST:

Standaard model winkelruimte in de zin van art. 7:290 BW, met bijbehorende algemene bepalingen, zoals door de Raad voor Onroerende Zaken (ROZ) op 17 september 2012 is vastgesteld en op 2 oktober 2012 gedeponeerd bij de griffie van de rechtbank te ’s-Gravenhage en aldaar ingeschreven onder nummer 59/2012.

HUURPRIJSAANPASSING:

Jaarlijks per huuringangsdatum, voor het eerst 12 maanden na huuringangsdatum op basis van de wijziging van het maandprijs-indexcijfer volgens de consumentenprijsindex (CPI) reeks alle huishoudens (2015=100), zoals gepubliceerd door het Centraal Bureau voor de Statistiek (CBS).

ZEKERHEIDSTELLING:

Bankgarantie ter grootte van drie maanden huurverplichting inclusief eventuele servicekosten en de over het totaal verschuldigde BTW.

COURTAGE:

Mocht door bemiddeling van BM Bedrijfsmakelaars voor dit object een transactie tot stand worden gebracht, dan zult u ons hiervoor geen kosten of courtage verschuldigd zijn.

Deze aanbieding is vrijblijvend, er kunnen derhalve geen rechten aan deze brochure, tekst en tekeningen worden ontleend.

Bereikbaarheid

Tram, bus, metro
  • Kanaalstraat 1 min. lopen
  • Centrum 3 min. lopen
  • Lisse Centrum 4 min. lopen
  • Nassaupark 5 min. lopen
  • Broekweg 5 min. lopen

Bijlagen

De aanbieder van dit object heeft een PDF Brochure beschikbaar gesteld.

Vraag brochure aan