Resultaten laden ...

Kerkbuurt 66 b 154 m2 winkelruimte te huur in Sliedrecht

Kenmerken

Huurprijs € 2.575 /maand
Functie Winkelruimte
Onderhoud buiten Uitstekend
Onderhoud binnen Uitstekend
Wijk / Buurt Kerkbuurt-Oost

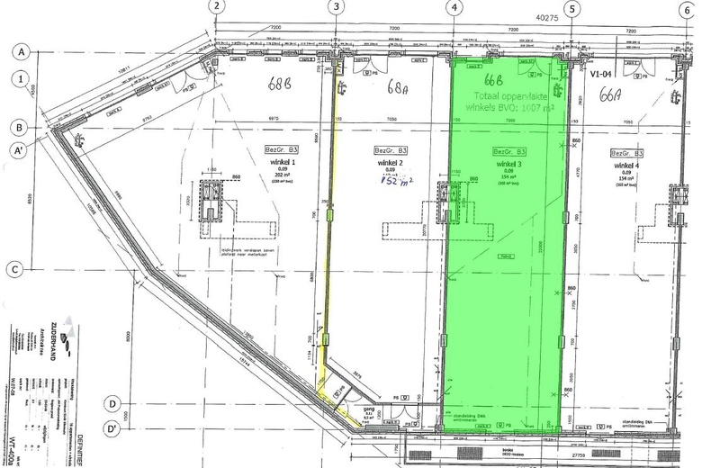
Moderne winkelruimte met een oppervlakte van ca. 154 m² en een frontbreedte van ca. 7,20 meter gelegen in de plint van een eigentijds appartementencomplex, midden in hét winkelhart van Sliedrecht, nabij o.a. de Hema, Action en supermarkt Jumbo. De winkelruimte is reeds jarenlang in gebruik bij StreetOne en komt per 1 januari 2025 beschikbaar. Aan de achterzijde beschikt de winkelruimte over een expeditie-ingang ten behoeve van laden en lossen.

In de directe nabijheid zijn o.a. gevestigd Brandstore, Hans Anders, Van de Ven Fashion, Van Mourik Schoenen, Van der Vlies Schoenen, Ter Stal, Hema, Action en supermarkt Jumbo.

Locatie & bereikbaarheid:

De winkelruimte is gelegen aan winkelpromenade de Kerkbuurt, het hoofdwinkelcentrum van Sliedrecht. In de directe nabijheid zijn o.a. gevestigd Hans Anders, Van de Ven Fashion, Van Mourik Schoenen, Ter Stal, Hema, Action, supermarkt Jumbo, OFM, Verschoor Kleding en een aantal speciaalzaken. Sliedrecht is een gemeente met ca. 24.000 inwoners.

Winkelpromenade De Kerkbuurt is het (autovrije) winkelhart van Sliedrecht en heeft door zijn gevarieerde winkelaanbod een sterke functie voor de omgeving.

Via de Parallelweg en de Stationsweg is de rijksweg A15 (Rotterdam – Gorinchem) goed bereikbaar.

Afmetingen:

- winkelruimte : ca. 154 m² b.v.o.;

- frontbreedte : ca. 7,20 meter.

Parkeren:

Gratis openbare parkeergelegenheid op loopafstand.

Bestemming:

Conform het vigerende bestemmingsplan Kerkbuurt-Oost is de bestemming ‘Centrum-1’, ter plaatse zijn toegestaan:

- detailhandel;

- dienstverlening;

- kantoren;

- zorgvoorzieningen, zoals medische praktijken, klinieken en dagverblijven, consultatiebureaus en kinderopvang.

Bouwaard/algemeen:

- betonvloer;

- opbouw betonconstructie;

- geïsoleerde metselwerk gevels;

- winkel-scheidende wanden metalstud.

Voorzieningen/specificaties:

De winkelruimte wordt casco aangeboden. De winkel heeft aanvullend op het casco een aantal voorzieningen:

- aluminium voorgevel-pui voorzien van dubbele toegangsdeur en isolerende, gelaagde beglazing;

- frontbreedte ca. 7,20 meter;

- meterkast met aansluitingen voor elektra, gas, water en telefonie.

De navolgende zaken zijn door een vertrokken huurder in de winkelruimte aangebracht en kunnen mogelijk van de vertrekkend huurder worden overgenomen:

- tegelvloer;

- verlaagd plafond met spot-verlichting, vrije hoogte ca. 3,00 m¹;

- wandcontactdozen;

- verwarming door middel van cv-installatie met radiatoren en een warmtegordijn ter plaatse van de entree;

- koeling door middel van airco plafondunits;

- mechanische ventilatie;

- verblijfsruimte met pantry en toilet aan de achterzijde van de winkelruimte;

Voornoemde zaken maken derhalve geen onderdeel uit van het gehuurde.

Reclamevoering:

Uitsluitend in overleg met en na goedkeuring van eigenaar/verhuurder.

Huurprijs:

€ 2.575,- per maand exclusief servicekosten exclusief BTW.

Servicekosten:

Nader te bepalen.

Huurperiode:

Bij voorkeur 5 jaar.

Huurbetaling:

Per maand vooruit.

Huurverhoging:

Jaarlijks per 1 januari, conform de wijziging van het maandprijsindexcijfer volgens de Consumentenprijsindex (CPI), reeks CPI-alle huishoudens (2015 = 100), gepubliceerd door het Centraal Bureau voor de Statistiek (CBS).

Huurovereenkomst:

De te sluiten huurovereenkomst zal worden opgemaakt op basis van het ROZ-model (Raad van Onroerende Zaken) winkelruimte en andere bedrijfsruimte in de zin van artikel 7:290 BW, vastgesteld in september 2012 met bijbehorende Algemene Bepalingen op 2 oktober 2012 gedeponeerd bij de griffie van de Rechtbank te Den Haag en aldaar ingeschreven onder nummer 58/2012.

Zekerheidstelling:

Bankgarantie of waarborgsom ter grootte van een kwartaalverplichting huur inclusief servicekosten inclusief BTW.

Omzetbelasting:

De huurprijs wordt belast met de geldende omzetbelasting. Huurder en verhuurder opteren voor een BTW-belaste verhuur. Indien op basis van de nieuwe BTW-wetgevingsvoorstelling huurder niet meer aan het criterium meer dan 90% BTW-belaste prestaties verricht voldoet, en zodoende het verzoek om BTW-belaste verhuur niet geaccepteerd wordt, dan zal de huurprijs worden verhoogd met een nader door verhuurder vast te stellen percentage.

Oplevering:

Beschikbaar vanaf 1 januari 2025.

Deze vrijblijvende informatie is met de grootst mogelijke zorgvuldigheid samengesteld. Voor de juistheid van deze informatie kan door Van Vliet Bedrijfsmakelaars B.V. echter geen aansprakelijkheid worden aanvaard, noch kan aan de vermelde informatie enig recht worden ontleend. Deze informatie is niet bedoeld als aanbod.

Bereikbaarheid

Tram, bus, metro
  • Burg. Winklerplein 8 min. lopen
  • Begraafplaats 9 min. lopen
  • Talmastraat 10 min. lopen

Bijlagen

De aanbieder van dit object heeft een PDF Brochure beschikbaar gesteld.

Vraag brochure aan