Kreupelstraat 32 811 m2 winkelruimte te huur in Amersfoort
Kenmerken
| Functie | Winkelruimte |
| Wijk / Buurt | Beestenmarkt |
| Frontbreedte | 3300 cm |
| Branchebeperking | Nee |
| Horeca toegestaan | Nee |
| Publieksgerichte dienstverlening | Nee |
| Detailhandel | Nee |
1 eenheid beschikbaar
1 eenheid beschikbaar
- Eenheid
- Oppervlakte
- Huurprijs
- Gebruik
- 1
- 811 m2
- € 95,00 m²/jaar
- Winkelruimte
| OPPERVLAKTE | 811 m2 |
| HUURPRIJS | € 95,00 m²/jaar |
| GEBRUIK | Winkelruimte |
Omschrijving
Omschrijving
ALGEMEEN
Goed gelegen volumineuze winkelruimte in het centrum van Amersfoort. Het pand is gelegen op een prominente hoek, en gelegen aan de aanlooproute naar het A-1 winkelgebied van Amersfoort. De winkelruimte is door zijn afmeting geschikt voor volumineuze retailers.
LOCATIE
Het winkelpand ligt aan een kruispunt van 3 straten, te weten Achter de Kamp, Binnen de Veste en de Kreupelstraat, tegenover de in- en uitgang van de parkeergarage De Beestenmarkt. De ligging is te betitelen als een goed B-locatie. De Kreupelstraat komt uit op De Kamp, een prominente winkelstraat in Amersfoort.
VLOEROPPERVLAKTE
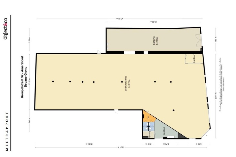
Voor verhuur is beschikbaar een totale oppervlakte van 810,66 m².
Het bovenvermelde metrage is ingemeten conform NEN 2580, meetcertificaat no. OC-2021-76101 van Object & Co d.d. 10-02-2021.
Indeling: Zie de plattegrondtekeningen in de bijlagen.
OPLEVERINGSNIVEAU
De winkelruimte wordt casco+ verhuurd, voorzien van vloertegels, systeemplafonds met lijn-verlichting, interne overheaddeur, cv-installatie, elektrische installatie, pantryblok, dubbele toiletvoorziening, inbouwbedrijfsunit, winkelpui.
Bovengenoemde opleveringsniveau wordt éénmalig om niet ter beschikking gesteld. Onderhoud, herstel en vervanging komen voor rekening en risico van huurder.
PARKEREN
Tegenover het winkelpand ligt de in- en uitgang van Q-park parkeergarage 'De Beestenmarkt' met 360 parkeerplaatsen. De pakeergarage beschikt over een talud speciaal bruikbaar t.b.v. winkelruimte.
WELSTANDSKLASSE
B2.
FRONTBREEDTE
33 meter.
BESTEMMING
Winkelruimte
Informatie inzake gebruiksmogelijkheden en voorschriften is te verkrijgen via ons kantoor, bij de gemeente of via de website: .
HUURPRIJS
€ 95,- per m² per jaar, te vermeerderen met de geldende BTW.
BTW
Uitgangspunt is een met BTW belaste huurprijs. Indien een huurder niet voldoet aan de voor belaste verhuur gestelde criteria zal de huurprijs zodanig worden verhoogd dat het voor verhuurder ontstane financiële nadeel volledig wordt gecompenseerd.
SERVICEKOSTEN
Kosten van levering van zaken en diensten:
Bij wijze van voorschot wordt door verhuurder aan huurder een bedrag van € 25,- per maand, te vermeerderen met de wettelijk verschuldigde omzetbelasting in rekening gebracht voor de door of vanwege verhuurder te verzorgen levering van de volgende zaken en diensten:
- glasverzekering;
- gevelreiniging 1x per jaar;
- onderhoud Cv-ketels;
- onderhoud schuifdeur;
- 5% administratiekosten over het totaal van de servicekosten.
* Huurder dient zelf en voor eigen rekening zorg te dragen voor het onderhoud van de brandblussers en nutscontracten op naam te stellen.
HUURTERMIJN
Huurperiode van 5 jaar gevolgd door verlengingstermijnen van telkens 5 jaar.
OPZEGTERMIJN
12 maanden.
HUURBETALING
De totale betalingsverplichting dient per maand vooruit te worden voldaan.
ZEKERHEIDSTELLING
Een bankgarantie ter grootte van drie maanden huur en servicekosten te vermeerderen met de geldende BTW.
HUURINDEXATIE
De huurprijs zal jaarlijks, voor het eerst 1 jaar na de huuringangsdatum, worden verhoogd op basis van de consumentenprijsindex (CPI) zoals wordt gepubliceerd door het Centraal Bureau voor de Statistiek (CBS).
HUUROVEREENKOMST
De huurovereenkomst zal zijn gebaseerd op het model zoals is vastgesteld door de Raad voor Onroerende Zaken (ROZ) 2025, inclusief de algemene bepalingen.
AANVAARDING
Per direct.
Bereikbaarheid
- Blekerseiland 4 min. lopen
- Kamp / De Stier 4 min. lopen
- De Flint 6 min. lopen
- Hogeweg 6 min. lopen
- Boreelstraat 8 min. lopen