Resultaten laden ...

Langpoort 8

289 m2 winkelruimte te koop in Weert

Kenmerken

Prijs € 599.000 k.k.
Functie Winkelruimte
Onderhoud buiten Goed
Onderhoud binnen Goed
Wijk / Buurt Weert-Centrum

Gezamenlijk aangeboden De eenheden worden als één geheel aangeboden.

TE KOOP: KARAKTERISTIEKE WOON- / WERKCOMBINATIE AAN DE LANGPOORT 8-8A TE WEERT.

Voormalige patisserie met bovenwoning op toplocatie in het centrum van Weert.

Deze unieke combinatie van een ruime commerciële ruimte (ca. 145 m²), een royale bovenwoning (ca. 144 m²) en een kelder (ca. 65 m²) wordt in zijn geheel te koop aangeboden. Het pand is gelegen aan de Langpoort 8-8a, direct grenzend aan het kernwinkelgebied van Weert. Een locatie met uitstekende zichtbaarheid en een hoge passantenstroom.

Sterke punten:

- Unieke kans voor ondernemers die wonen en werken willen combineren

- Mogelijkheid tot herontwikkeling naar kantoor, praktijk, winkel of twee woningen

- Centraal gelegen in het hart van Weert

- Goed bereikbaar met zowel openbaar vervoer als eigen vervoer

- Prachtige zichtlocatie op loopafstand van station en voorzieningen

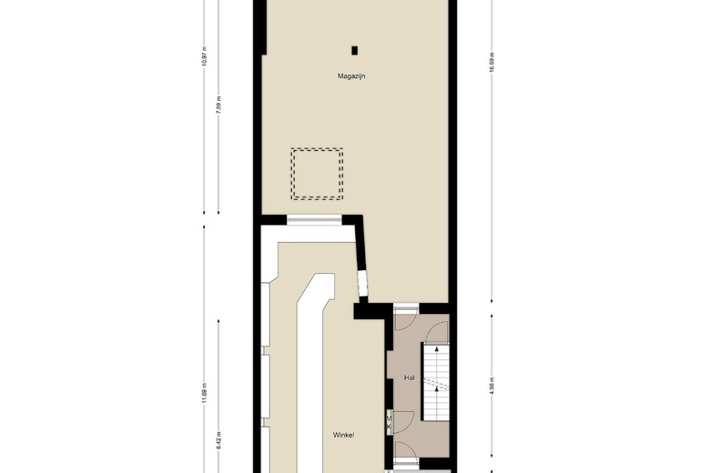
Commerciële ruimte (begane grond, ca. 145 m²):

De begane grond beschikt over een brede gevel met aluminium pui, dubbele beglazing en automatische schuifdeuren. De voorzijde is ingericht als verkoopruimte met een nette tegelvloer, voorzetwanden, systeemplafonds met verlichting en airco-installatie.

Achtergelegen is de voormalige productie- / werkruimte met gecoate betonvloer, krachtstroomaansluitingen, systeemplafonds en daglichttoetreding via lichtkoepels. Deze ruimte is multifunctioneel inzetbaar, bijvoorbeeld als winkel, kantoor, studio of praktijk.

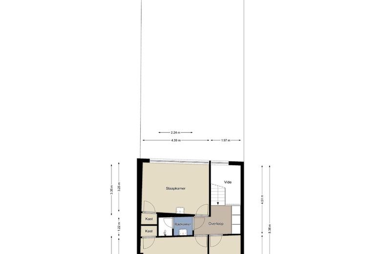
Bovenwoning (1e en 2e verdieping, ca. 144 m²):

Via een separate entree is de bovenwoning bereikbaar. Deze bestaat uit een leefkeuken met bijkeuken, een royale doorzonwoonkamer met toegang tot een ruim dakterras, drie slaapkamers, een balkon, en een badkamer. De keuken is voorzien van moderne inbouwapparatuur en vloerverwarming.

De woonkamer heeft een plankenvloer, stucwerk wanden, een haard en veel lichtinval met uitzicht over de Langpoort. De gehele woning is voorzien van kunststof kozijnen met HR++ beglazing.

Ligging en bereikbaarheid:

Het pand is gelegen op een uitstekende locatie in de binnenstad van Weert, met winkels, horeca en voorzieningen op loopafstand. NS-station Weert ligt op enkele minuten loopafstand. Ook de A2 en regionale wegen (N266 / N275) zijn snel bereikbaar.

Bestemming:

Het pand valt onder het bestemmingsplan 'Binnenstad 2017' met bestemming Centrum. Toegestane functies zijn o.a. detailhandel, kantoor en praktijkruimte. Transformatie naar (dubbele) woonfunctie behoort tot de mogelijkheden.

Kenmerken:

- Bouwjaar ca. 1964, diverse renovaties (o.a. dak 2018, keuken 2021, kozijnen 2011)

- Perceel: 179 m² (kadastraal bekend gemeente Weert sectie S nummer 665)

- Energielabels: commercieel deel A, woningdeel D

- Verwarming: HR cv-installatie, deels vloerverwarming

- Vloeroppervlak totaal: ca. 354 m² (inclusief kelder)

Vraagprijs:

€ 599.000,= kosten koper.

Notaris:

Keuze koper.

Zekerheidsstelling: 10% waarborgsom / bankgarantie na ondertekening koopakte.

Bereikbaarheid

Tram, bus, metro
  • Emmasingel 2 min. lopen
  • Emmasingel/Maaspoort 2 min. lopen
  • Station Weert 4 min. lopen
  • Busstation, Stationsplein 4 min. lopen
  • Weert 5 min. lopen