Langstraat 42 402 - 682 m2 winkelruimte te huur in Weert
Kenmerken
| Huurprijs | prijs op aanvraag |
| Functie | Winkelruimte |
| Wijk / Buurt | Weert-Centrum |
| Frontbreedte | 2265 cm |
| Branchebeperking | Nee |
| Horeca toegestaan | Nee |
| Publieksgerichte dienstverlening | Nee |
| Detailhandel | Nee |
1 eenheid beschikbaar
1 eenheid beschikbaar
- Eenheid
- Oppervlakte
- Huurprijs
- Gebruik
- 1
- Vanaf 402 m2 tot 682 m2
- prijs op aanvraag
- Winkelruimte
| OPPERVLAKTE | Vanaf 402 m2 tot 682 m2 |
| GEBRUIK | Winkelruimte |
Omschrijving
Omschrijving
LIGGING:
Langstraat 42 te Weert.
ALGEMEEN:
De Langstraat betreft een A1 winkellocatie waarin onder meer gevestigd zijn; Hema, Specsavers, Xenos, Jeans Centre, alsmede diverse horeca gelegenheden in de directe omgeving.
Het object ligt op slechts enkele minuten loopafstand van het station.
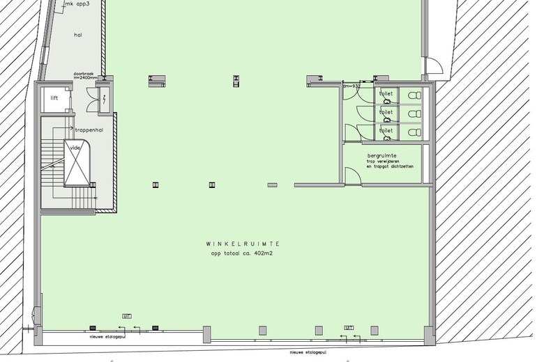
OPPERVLAKTE:
Circa 280 m² gelegen in de kelder
Circa 402 m² gelegen op de begane grond
Er bestaat de mogelijkheid de winkelruimte op de begane grond uit te bouwen met circa 283 m² op de begane grond.
STAAT VAN OPLEVERING:
Casco.
HUURCONDITIES
AANVANGSHUURPRIJS:
Op aanvraag.
Voor een eventuele uitbreiding is de huurprijs nader te bepalen.
HUURTERMIJN:
5 jaar.
VERLENGINGSPERIODE:
5 jaar.
OPZEGTERMIJN:
1 jaar voorafgaande aan de expiratiedatum.
HUURPRIJSBETALING:
Per kwartaal vooruit, via automatische incasso.
HUURPRIJSAANPASSING:
Jaarlijks, voor het eerst een jaar na huuringangsdatum, conform de wijzigingen van het maandprijsindexcijfer volgens de consumentenprijsindex (CPI), reeks alle huishoudens, gepubliceerd door het Centraal Bureau voor de Statistiek (CBS).
SERVICEKOSTEN:
Huurder dient zelf de meters van gas, water en elektra op naam te nemen.
ZEKERHEIDSTELLING:
Doorlopende bankgarantie van 3 maanden huur inclusief servicekosten en BTW.
AANVAARDING:
In overleg.
BIJZONDERHEDEN:
Verhuurder biedt de mogelijkheid om de investering van de afbouw onder voorwaarden te financieren of eventueel te verdisconteren in de huursom.
BESTEMMINGSPLAN/GEBRUIKSVOORSCHRIFTEN:
Detailhandel.
B.T.W.:
Er dient geopteerd te worden voor een met BTW belaste verhuur. Indien huurder niet aan het ”90%-criterium” (aandeel belaste prestaties) voldoet, zal er van rechtswege sprake zijn van omzetbelasting vrijgestelde verhuur. Alsdan wordt de overeengekomen kale huurprijs, exclusief omzetbelasting, zodanig verhoogd, dat het voor verhuurder ontstane financiële nadeel wordt gecompenseerd.
HUURCONTRACT:
R.O.Z.-model ( 30 juli 2003), huurovereenkomst winkelruimte en andere bedrijfsruimte in de zin van artikel 7:290 BW met de benodigde aanvullingen.
Bereikbaarheid
- Emmasingel/Maaspoort 2 min. lopen
- Emmasingel 2 min. lopen
- Station Weert 5 min. lopen
- Busstation, Stationsplein 5 min. lopen
- Q park terrein 5 min. lopen