Nassaulaan 24 194 m2 winkelruimte te huur in Bussum
Kenmerken
| Huurprijs | € 30.000 /jaar |
| Functie | Winkelruimte |
| Wijk / Buurt | Brink |
1 eenheid beschikbaar
1 eenheid beschikbaar
- Eenheid
- Oppervlakte
- Huurprijs
- Gebruik
Eenheid omschrijving
Gooise Meren heeft een verzorgingsgebied van circa 60.000 inwoners, Bussum kent circa 33.500 inwoners. De winkels, cafés, restaurants en de markt in het centrum zijn al jarenlang een grote aantrekkingskracht voor Bussum en omgeving.
Bussum is zeer goed te bereiken met zowel openbaar vervoer als met de auto.
Object
De winkel is gelegen op een absolute A1 locatie tegenover Douglas, Arthur & Willemijn, naast Rituals, Holland & Barret en Kruidvat.
Vloeroppervlak
Van het complex is een NEN 2580 meetrapport beschikbaar. Eventuele afwijkingen hierin vormen geen aanleiding tot verrekening.
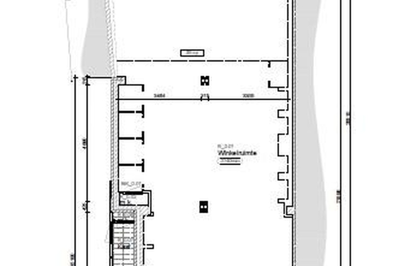
De winkelruimte omvat circa 194 m² VVO, als volgt verdeeld:
• begane grond winkelruimte circa 153 m²;
• magazijnruimte circa 39,64 m²;
• toilet circa 1,42 m².
Opleveringsniveau
Het gehuurde wordt casco verhuurd, inclusief de navolgende voorzieningen:
• winkelpui;
• pantry;
• toilet.
Parkeergelegenheid
In de omgeving is voldoende openbare parkeergelegenheid aanwezig.
Aanvangshuurprijs
De aanvangshuurprijs bedraagt € 2.500,- per maand, exclusief BTW. Deze huurprijs is inclusief een tijdelijke huurkorting ter grootte van
€ 1.250,- per maand en geldt voor een periode van maximaal 24 maanden na huuringangsdatum.
Huurbetaling
De huurbetalingsverplichting dient per maand vooruit betaald te worden door middel van een automatische incasso.
Servicekosten
Huurder dient de meters betreffende gas, water en elektra op haar naam te doen stellen en het verbruik rechtstreeks te voldoen aan de desbetreffende openbare nutsbedrijven.
Huurtermijn
Huurtermijn is bespreekbaar.
Aanvaarding
Het object is in overleg tussen partijen te aanvaarden.
Zekerheidsstelling
Bij ondertekening van de huurovereenkomst wordt een bankgarantie of waarborgsom verlangd ter grootte van drie maanden huurbetalingsverplichting en de verschuldigde BTW over het gehele bedrag.
Huurprijsindexering
Jaarlijks, voor het eerst één jaar na de huuringangsdatum, wordt de laatst geldende huurprijs verhoogd op basis van het
maandprijsindexcijfer volgens de consumentenprijsindex (CPI) reeks alle huishoudens (2015 = 100), gepubliceerd door het Centraal Bureau voor de Statistiek (CBS). De huurprijs zal géén daling ondergaan.
Huurovereenkomst
De op te stellen huurovereenkomst is conform de overeenkomst die door de Raad voor Onroerende Zaken in 2025 is vastgesteld en zoals gehanteerd door de Nederlandse Vereniging van Makelaars (NVM) met de bijbehorende algemene bepalingen.
Bestemming
Het vigerende bestemmingsplan geeft aan dat de winkelruimte uitermate geschikt is voor het gebruik voor detailhandel en dienstverlening.
Huurder dient zelf zijn exploitatie te toetsen aan het vigerende bestemmingsplan.
Gunning
Verhuurder behoudt zich het recht van gunning voor.
| OPPERVLAKTE | 194 m2 |
| GEBRUIK | Winkelruimte |
Omschrijving
Omschrijving
Gooise Meren heeft een verzorgingsgebied van circa 60.000 inwoners, Bussum kent circa 33.500 inwoners. De winkels, cafés, restaurants en de markt in het centrum zijn al jarenlang een grote aantrekkingskracht voor Bussum en omgeving.
Bussum is zeer goed te bereiken met zowel openbaar vervoer als met de auto.
Object
De winkel is gelegen op een absolute A1 locatie tegenover Douglas, Arthur & Willemijn, naast Rituals, Holland & Barret en Kruidvat.
Vloeroppervlak
Van het complex is een NEN 2580 meetrapport beschikbaar. Eventuele afwijkingen hierin vormen geen aanleiding tot verrekening.
De winkelruimte omvat circa 194 m² VVO, als volgt verdeeld:
• begane grond winkelruimte circa 153 m²;
• magazijnruimte circa 39,64 m²;
• toilet circa 1,42 m².
Opleveringsniveau
Het gehuurde wordt casco verhuurd, inclusief de navolgende voorzieningen:
• winkelpui;
• pantry;
• toilet.
Parkeergelegenheid
In de omgeving is voldoende openbare parkeergelegenheid aanwezig.
Aanvangshuurprijs
De aanvangshuurprijs bedraagt € 2.500,- per maand, exclusief BTW. Deze huurprijs is inclusief een tijdelijke huurkorting ter grootte van
€ 1.250,- per maand en geldt voor een periode van maximaal 24 maanden na huuringangsdatum.
Huurbetaling
De huurbetalingsverplichting dient per maand vooruit betaald te worden door middel van een automatische incasso.
Servicekosten
Huurder dient de meters betreffende gas, water en elektra op haar naam te doen stellen en het verbruik rechtstreeks te voldoen aan de desbetreffende openbare nutsbedrijven.
Huurtermijn
Huurtermijn is bespreekbaar.
Aanvaarding
Het object is in overleg tussen partijen te aanvaarden.
Zekerheidsstelling
Bij ondertekening van de huurovereenkomst wordt een bankgarantie of waarborgsom verlangd ter grootte van drie maanden huurbetalingsverplichting en de verschuldigde BTW over het gehele bedrag.
Huurprijsindexering
Jaarlijks, voor het eerst één jaar na de huuringangsdatum, wordt de laatst geldende huurprijs verhoogd op basis van het
maandprijsindexcijfer volgens de consumentenprijsindex (CPI) reeks alle huishoudens (2015 = 100), gepubliceerd door het Centraal Bureau voor de Statistiek (CBS). De huurprijs zal géén daling ondergaan.
Huurovereenkomst
De op te stellen huurovereenkomst is conform de overeenkomst die door de Raad voor Onroerende Zaken in 2025 is vastgesteld en zoals gehanteerd door de Nederlandse Vereniging van Makelaars (NVM) met de bijbehorende algemene bepalingen.
Bestemming
Het vigerende bestemmingsplan geeft aan dat de winkelruimte uitermate geschikt is voor het gebruik voor detailhandel en dienstverlening.
Huurder dient zelf zijn exploitatie te toetsen aan het vigerende bestemmingsplan.
Gunning
Verhuurder behoudt zich het recht van gunning voor.
Bereikbaarheid
- Olmenlaan 2 min. lopen
- Centrum 2 min. lopen
- Nieuwe Brink 4 min. lopen
- Gooibergstraat 8 min. lopen
- Poststraat 8 min. lopen