Pensmarkt 7 - 11
230 m2 winkelruimte te huur in Den Bosch
Kenmerken
| Huurprijs | Prijs op aanvraag |
| Functie | Winkelruimte |
| Onderhoud buiten | Goed |
| Onderhoud binnen | Goed |
| Wijk / Buurt | Binnenstad-Centrum |
1 eenheid beschikbaar
1 eenheid beschikbaar
- Eenheid
- Oppervlakte
- Huurprijs
- Gebruik
- 1
- 230 m2
- Prijs op aanvraag
- Winkelruimte
| OPPERVLAKTE | 230 m2 |
| GEBRUIK | Winkelruimte |
Omschrijving
Omschrijving
Locatie
Deze winkelruimte ligt midden in het bruisende stadshart van 's-Hertogenbosch, aan de Pensmarkt. Samen met de Hooge Steenweg vormt de Pensmarkt een kernlocatie binnen het A1-winkelgebied. Dit blijkt uit de aanwezigheid van een divers aanbod aan bekende merken en formules in de directe omgeving. In de buurt bevinden zich onder andere Zara, Hema, Van Haren, Ici Paris, Snipes en Holland & Barrett. Deze bekende retailers kiezen bewust voor deze locatie vanwege de hoge passantenstroom en de aantrekkingskracht van het gebied.
Object
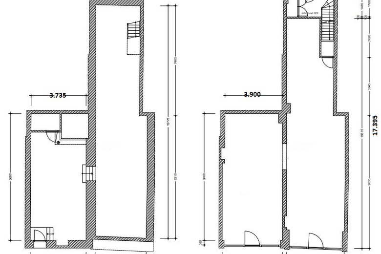
De beschikbare ruimte is gelegen in een monumentaal pand en strekt zich uit van de Pensmarkt-zijde tot aan de Markt-zijde zodat het pand eigenlijk twee entrees heeft. In totaal omvat de ruimte circa 230 m², verdeeld over twee verdiepingen:
Begane grond: 125 m²
Kelder: 105 m²
Het pand valt op door zijn authentieke uitstraling en het grote front van circa 7,5 meter. Daarnaast biedt de ruimte de bijzondere mogelijkheid om zowel vanaf de Markt als de Pensmarkt toegankelijk te zijn.
Opleveringsniveau
Het opleveringsniveau zal in overleg nader worden overeengekomen met de nieuwe huurder.
Parkeren
In de directe nabijheid zijn er ruime mogelijkheden voor parkeren, zoals in de Arena, Sint Josephstraat en de Wolvenhoek. Deze parkeergarages bevinden zich alle op korte afstand van het gehuurde en bieden voldoende (betaalde) parkeergelegenheid aan.
Bestemming
Centrum. Informatie inzake gebruiksmogelijkheden en voorschriften is te verkrijgen bij de Gemeente 's-Hertogenbosch.
Bereikbaarheid
- Stadskantoor 2 min. lopen
- Orthenstraat 3 min. lopen
- Burg. Loeffplein 4 min. lopen
- Vughterstraat 4 min. lopen
- Sint Josephstraat 5 min. lopen