Resultaten laden ...

Pieter Doelmanstraat 14 730 m2 winkelruimte te huur in Alphen aan den Rijn

Kenmerken

Huurprijs € 79.500 /jaar
Functie Winkelruimte
Onderhoud buiten Goed
Onderhoud binnen Goed
Wijk / Buurt Paradijslaan

Op absolute toplocatie met uitzicht op de ‘Oude Rijn’ en middenin het centrum van Alphen aan den Rijn bevindt zich aan de Pieter Doelmanstraat 14 een winkelruimte van in totaal circa 730 m². Het winkelpand heeft een frontbreedte van circa 4,65 meter en is gelegen nabij het winkelcentrum ‘De Aarhof’.

Door de Alphense Brug is er een direct verbinding naar de Van Mandersloostraat, dé (hoofd)winkelstraat van Alphen aan den Rijn, waar winkelketen als Rituals, Hunkemöller alsmede andere plaatselijke en landelijke ondernemers gevestigd zijn.

Dagelijks zijn er gemiddeld 13.300 passanten (bron; Locatus).

Bereikbaarheid:

Het pand is gesitueerd in het centrum van Alphen aan den Rijn, op loopafstand van het NS-station en busstation. Goede uitvalswegen zorgen voor uitstekende verbindingen met onder andere Schiphol, Utrecht, Amsterdam en Den Haag.

Gebruiksmogelijkheden:

Het object is geschikt voor diverse winkel-, horeca-, ambachtelijk- en maatschappelijke doeleinden alsmede publieksgerichte dienstverlening.

Parkeerplaats(en):

Parkeren is mogelijk onder het stadhuis (circa 750 parkeerplaatsen), alsmede in de nabije omgeving van het winkelpand, zoals het parkeerterrein aan de Hofzichtstraat en winkelcentrum “De Aarhof”.

Oppervlakte:

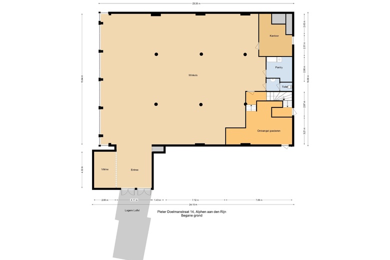
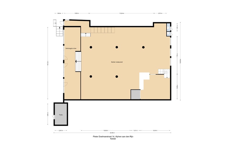
De totale vloeroppervlakte bedraagt circa 730 m² en is verdeeld over:

- circa 380 m² winkelruimte gelegen op de begane grond;

- circa 350 m² winkelruimte gelegen op de eerste verdieping.

Oplevering:

In overleg, per direct.

Opleveringsniveau:

De winkelruimte wordt casco verhuurd, doch reeds voorzien van:

- betonnen vloer;

- airco (om niet achtergelaten door voorgaande huurder);

- heaters (om niet achtergelaten door voorgaande huurder);

- elektriciteitspunten;

- pantry;

- toiletruimte;

- (goederen)lift;

- laden- en los mogelijk via de achterzijde.

Huurprijs:

€ 79.500,- per jaar, te vermeerderen met de wettelijk verschuldigde omzetbelasting en eventuele servicekosten.

Servicekosten:

Niet van toepassing. Huurder dient voorzieningen voor gas, water en elektra op eigen naam te zetten.

Huurprijsaanpassing:

Jaarlijks, voor het eerst één jaar na ingangsdatum van de huurovereenkomst, op basis van de wijziging van het maandindexcijfer volgens de consumentenprijsindex (CPI) reeks “alle huishoudens” (2000=100), gepubliceerd door het Centraal Bureau voor de Statistiek (CBS).

Zekerheidstelling:

Een bankgarantie ter grootte van een betalingsverplichting van 3 maanden huur te vermeerderen met de wettelijke omzetbelasting en servicekosten.

Huurcontract:

Huurovereenkomst conform het standaardmodel van de Raad voor Onroerende Zaken (ROZ), zoals gehanteerd door de Nederlandse Vereniging voor Makelaars (NVM).

BTW:

Huurder garandeert aan verhuurder dat hij het huurobject per datum van ingang van de huurovereenkomst voor tenminste het bij de wet vastgestelde minimumpercentage blijvend zal gebruiken voor doeleinden die recht geven op aftrek van BTW.

Huurder zal op eerste verzoek van verhuurder per ommegaande een onherroepelijke volmacht aan verhuurder en zijn eventuele rechtsopvolger(s) verlenen om mede namens hem een optieverzoek tot belaste verhuur in te dienen.

Indien huurder echter niet (meer) voldoet aan de wettelijke criteria voor belaste verhuur of een optieverzoek tot belaste verhuur niet (meer) door de inspecteur der belastingen wordt gehonoreerd, dan zal huurder het gehele daardoor financieel te lijden nadeel voor verhuurder aan verhuurder vergoeden, overeenkomstig de ter zake op te nemen bijzondere bepalingen van de huurovereenkomst.

Huurtermijn:

5 jaar met verlengingsperioden van telkens 5 jaar.

Huurbetaling:

Per kwartaal vooruit.

Bijzonderheden:

Elke transactie behoeft de nadrukkelijke goedkeuring van eigenaar.

Disclaimer:

Er kunnen op geen enkele wijze rechten worden ontleend aan, noch aanspraak gemaakt worden op de inhoud van deze website.

Bereikbaarheid

Tram, bus, metro
  • Castellumstraat 3 min. lopen
  • De Aarhof 3 min. lopen
  • Centrum 6 min. lopen
  • Molenvliet 6 min. lopen
  • Lijsterlaan 7 min. lopen

Bijlagen

De aanbieder van dit object heeft een PDF Brochure beschikbaar gesteld.

Vraag brochure aan