Resultaten laden ...

Prinsenstraat 13 H 114 m2 winkelruimte te koop in Amsterdam

Kenmerken

Prijs € 725.000 k.k.
Functie Winkelruimte
Wijk / Buurt Grachtengordel-West

Winkelruimte te koop gelegen op een toplocatie de Prinsenstraat 13 in Amsterdam

Gelegen tussen de Keizersgracht en de Prinsengracht, in het hart van het (winkel)centrum en vlakbij Centraal Station, de Westerstraat en diverse openbaar vervoer mogelijkheden.

Daarnaast kenmerkt de Prinsenstraat zich door de authentieke gebouwen met hippe modezaken, galeries en gezellige horeca.

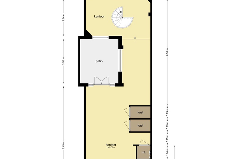
De winkelruimte heeft een oppervlakte van 114 m² VVO verdeeld over de begane grond en het souterrain.

BESTEMMING

Volgens het vigerende bestemmingsplan 'Centrum - 2'. De ruimte is daarmee onder meer geschikt om te worden gebruikt ten behoeve van:

- Kantoor

- Detailhandel

HUUR

De winkelruimte is verhuurd voor € 40.407,12 exclusief btw per jaar.

Ingangsdatum huurovereenkomst is 1 juli 2021 en verhuurd voor 5+5+1 jaar

OPPERVLAKTEN

Souterrain 47,30 m² VVO

Begane grond 66,80 m² VVO

Totaal 114,10 m² VVO

Zie NEN 2580 meetrapport

KADASTRAAL BEKEND

Pand:

Gemeente Amsterdam

Sectie M

Nummer 7103

Index A-1

Tuin:

Gemeente Amsterdam

Sectie M

Nummer 6203

Kadastrale grootte: 31 m²

BOUWJAAR

1757

ENERGIELABEL

C

VERENIGING VAN EIGENAREN

Vereniging van Eigenaars van het perceel Prinsenstraat 13 te Amsterdam.

BIJZONDERHEDEN

- Het pand wordt ‘as is’ verkocht;

- Gelegen op eigen grond;

- Jaarhuur bedraagt € 48.892,56 inclusief btw per jaar;

- Energielabel C;

- Bouwarchief, huurgegevens en verdere gegevens zijn op te vragen bij verkopend makelaar.

Bereikbaarheid

Tram, bus, metro
  • Buiten Oranjestraat 9 min. lopen
  • Buiten Brouwersstraat 9 min. lopen
  • Paleisstraat 9 min. lopen
  • Nieuwe Willemsstraat 10 min. lopen