Uitslagsweg 93 3
366 m2 winkelruimte te huur in Hengelo
Kenmerken
| Huurprijs | Prijs op aanvraag |
| Functie | Winkelruimte |
| Onderhoud buiten | Uitstekend |
| Onderhoud binnen | Uitstekend |
| Wijk / Buurt | Hengelose Es-Noord |
1 eenheid beschikbaar
1 eenheid beschikbaar
- Eenheid
- Oppervlakte
- Huurprijs
- Gebruik
| OPPERVLAKTE | 366 m2 |
| GEBRUIK | Winkelruimte |
Omschrijving
Omschrijving
ALGEMEEN
Aantrekkelijke winkelruimte gelegen op een uitstekende zichtlocatie in het winkelcentrum “Hengelose Es“. In de directe omgeving zijn diverse landelijke en regionale retailers gevestigd, waaronder Ter Stal, Kruidvat, Hans Anders en de Zuivelhoeve. Ook bevinden zich op loopafstand twee supermarkten: Albert Heijn en Aldi.
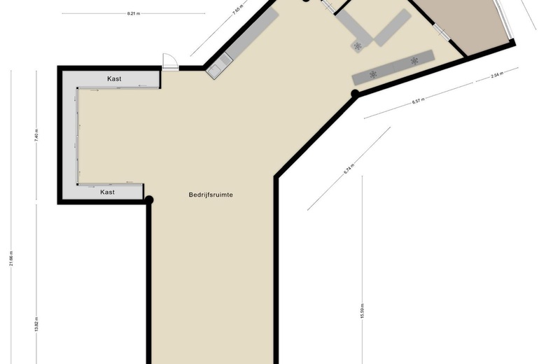
De winkelruimte heeft een oppervlakte van ca. 366 m² BVO en een frontbreedte van ca. 7,2 meter. Dankzij de centrale ligging in het hart van de passage profiteert het object van een continue stroom aan passanten. De winkelruimte heeft een speelse indeling en is momenteel ingericht als etnische supermarkt. Naast een functionele winkelruimte omvat het object een opslagruimte aan de achterzijde en tevens een pantry en toilet. De winkelruimte is toegankelijk via de voor- en achterzijde.
BEREIKBAARHEID
Het winkelcentrum “Hengelose Es“ ligt aan de noordzijde van Hengelo en is één van de grootste woonwijken van de stad. Aan de voorzijde van het winkelcentrum, ter hoogte van de Albert Heijn bevindt zich een busstop met een rechtstreekse verbinding van- en naar het treinstation van Hengelo. Per auto alsmede de fiets is het winkelcentrum eveneens uitstekend bereikbaar.
VLOEROPPERVLAKTE
De totale verhuurbare vloeroppervlakte van het gebouw bedraagt ca. 366 m² BVO en is als volgt onderverdeeld:
Winkelruimte: ca. 366 m² BVO
Frontbreedte: ca. 7,2 meter
Het vloeroppervlak is gemeten door de verhurend makelaar op basis van een kopie-bouwtekening. Het opgegeven metrage is derhalve indicatief. Er kunnen geen rechten aan worden ontleend, noch kan er sprake zijn van enige verrekening achteraf.
PARKEREN
Het winkelcentrum beschikt over twee ruim opgezette parkeerterreinen welke gesitueerd zijn aan de uiteinden van de passage.
BESTEMMING
Volgens het bestemmingsplan “Naoorlogse Wijken“ heeft het onderhavige de bestemming “Detailhandel“.
Voor het volledige bestemmingsplan kunt u terecht op: /regels-op-de-kaart..
WIJZE VAN OPLEVERING
Het object wordt, in de huidige staat als zijnde casco, opgeleverd met o.a. de volgende voorzieningen:
• Meterkast;
• CV-installatie;
• Toilet;
• Pantry;
• Airconditioning;
• Systeemplafond v.v. verlichtingsarmaturen;
• Alarm-installatie;
• Warmtegordijn;
• Sprinkler-installatie.
De aanwezige inventaris is ter overname. Deze omvat onder meer diverse kasten, balies, een koel- en vriescel, oven(s) en aanverwante apparatuur en toebehoren.
HUURPRIJS
Huurprijs op aanvraag.
HUURTERMIJN
Het vaststellen van de huurtermijn en de aansluitende verlengingstermijnen geschiedt in overleg. Als uitgangspunt geldt een vijfjarige huurovereenkomst met verlengingstermijnen van telkens vijf jaar.
HUURINGANGSDATUM
Per direct beschikbaar.
HUURBETALING
Per maand, vooruit te betalen.
ZEKERHEIDSSTELLING
Bankgarantie of waarborgsom ter grootte van een bedrag gelijk aan drie maanden betalingsverplichting (inclusief eventuele servicekosten en BTW).
HUURPRIJSAANPASSING
Jaarlijks, voor het eerst één jaar na ingangsdatum huurovereenkomst, conform het prijsindexcijfer Alle Huishoudens (2015=100), gepubliceerd door het Centraal Bureau voor de Statistiek.
HUUROVEREENKOMST
Op basis van de standaard huurovereenkomst van verhuurder, die is gebaseerd op het Model ROZ (Raad voor Onroerende Zaken), model 2023.
BTW
Verhuurder wenst te opteren voor BTW-belaste huur en verhuur. Ingeval huurder de BTW niet kan verrekenen zal de huurprijs in overleg met huurder worden verhoogd ter compensatie van de gevolgen van het vervallen van de mogelijkheid om te opteren voor BTW-belaste verhuur.
VOORBEHOUD
Definitieve goedkeuring opdrachtgever.
De vermelde informatie is van algemene aard en is niet meer dan een uitnodiging om in onderhandeling te treden. Aan de inhoud van deze informatie kunnen geen rechten worden ontleend.