Utrechtsestraat 17 291 m2 winkelruimte te koop in Amersfoort
Kenmerken
| Prijs | € 1.200.000 |
| Functie | Winkelruimte |
| Wijk / Buurt | Stadhuisplein |
| Frontbreedte | 500 cm |
| Branchebeperking | Nee |
| Horeca toegestaan | Nee |
| Publieksgerichte dienstverlening | Nee |
| Detailhandel | Nee |
Omschrijving
Omschrijving
MVGM Bedrijfsmakelaars is door de eigenaar gevraagd om als adviseur het verkoopproces te begeleiden van het object gelegen aan de Utrechtsestraat 17 en de Hellestraat 4 te Amersfoort. Het betreffen twee winkelpanden met bovenverdieping(en) die door middel van een binnenplaats met elkaar zijn verbonden. Het geheel is één kadastraal object.
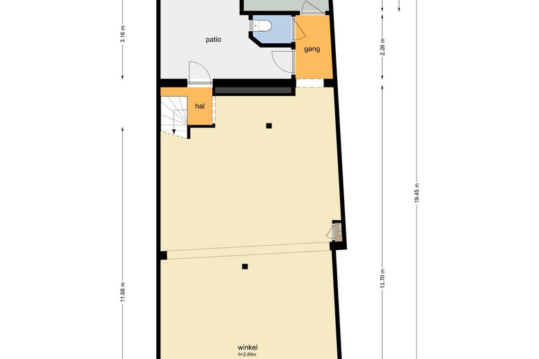
Het winkelpand aan de Utrechtsestraat 17 bestaat uit een winkelruimte op de begane grond met daarboven een woning van drie verdiepingen (de verdiepingen zijn de laatste jaren grotendeels in gebruik geweest als opslagruimte).
Het object heeft een metrage van ca. 222 m² v.v.o.
Begane grond: 94,66 m²
Eerste verdieping: 78,52 m²
Tweede verdieping: 33,32 m²
Derde verdieping: 15,34 m²
Het object aan de Hellestraat 4 bestaat uit een horecaruimte op de begane grond met daarboven gelegen opslagruimte. Het object heeft een metrage van ca. 69 m² v.v.o.
Begane grond: 34,88 m²
Eerste verdieping: 34,60 m²
Er is een NEN 2580 meetstaat aanwezig.
Het geheel is gelegen op een perceel grond van 185 m².
Het object zal op basis van as is – where is worden verkocht.
Amersfoort
Amersfoort is een stad in de provincie Utrecht en heeft circa 160.800 inwoners, qua grootte de tweede stad van de provincie Utrecht. Amersfoort ligt in het midden van Nederland en is binnen ca. 15 minuten van Utrecht en ca. 30 minuten van Amsterdam met de auto te bereiken.
Het object ligt in het kernwinkelapparaat van Amersfoort. Diverse parkeergarages bevinden zich direct op loopafstand. Amersfoort kent een grote verscheidenheid aan leuke winkels gezellige horecapanden en historische gebouwen.
De locatie is zowel met eigen- als openbaar vervoer uitstekend bereikbaar. Rondom het centrum zijn diverse bushaltes gelegen met een directe aansluiting naar Amersfoort CS. De ring Amersfoort die om het centrum heenloopt, sluit aan op de rijksweg A1 en A28.
Voorbehoud: Definitieve goedkeuring en gunning van de eigenaar. Zonder deze goedkeuring en gunning zal er geen transactie tot stand komen.
Bereikbaarheid
- Centrum 2 min. lopen
- De Kei 3 min. lopen
- Zonnehof-Oost 4 min. lopen
- Stadhuis 4 min. lopen
- Zonnehof-West 4 min. lopen