Resultaten laden ...

Wilhelminaplein 6 494 m2 winkelruimte te koop in Heerlen

Kenmerken

Prijs € 295.000 k.k.
Functie Winkelruimte
Onderhoud buiten Goed
Onderhoud binnen Goed
Wijk / Buurt Heerlen-Centrum

Commercieel transformatie object aan het Wilhelminaplein in Heerlen Centrum te koop aangeboden.

Gezien de ontwikkelingsplannen van de gemeente Heerlen van winkelcentrum ''De Klomp'' voor nieuwbouw van Grotius en de Vrije School betreft dit een zeer interessant object.

TE KOOP | WILHELMINAPLEIN 6 | HEERLEN

Het object bestaat uit een uitgestrekte commerciële (horeca-)ruimte op de begane grond, ca. 214 m². Achteraan zijn de toiletgroepen en keukenruimten gesitueerd.

Op de verdiepingen bevindt zich nog een riante ruimte van mogelijkheden. Deze omvat maar liefst ca. 209 m², verdeeld over 3 verdiepingen. Eventueel is transformatie naar wonen mogelijk.

Volgens het vigerende Omgevingsplan zijn o.a. verschillende soorten dienstverlening en horeca op locatie toegestaan.

Het object is gelegen in het midden van het centrum aan het Wilhelminaplein nabij het Pancratiusplein en de Bongerd.

Laat u verassen door dit riante object in het centrum van Heerlen.

BASISKENMERKEN

Adres: Wilhelminaplein 6 6411 KV Heerlen

Bouwjaar: 1909

Gebruik: Horeca, dienstverlening, wonen, transformatie

Oppervlakte: ca. 494 m2

Perceeloppervlakte: 257 m2

Vraagprijs: € 295.000,- k.k.

Aanvaarding: In overleg, op korte termijn mogelijk

LOCATIE

Heerlen is gelegen in ‘Parkstad Limburg’. Deze veelzijdige, deels verstedelijkte regio, telt ruim 255.000 inwoners. Daarnaast liggen Duitsland en België direct naast de deur. De grensregio Nederland/België en Duitsland telt ruim 800.000 inwoners. In Parkstad werken 106.000 mensen bij ruim 15.000 bedrijven en instellingen.

Bereikbaarheid:

Per auto: De op- en afrit van de N281 ligt op enkele slechts enkele minuten rijden, met goede verbindingen naar de snelweg naar Maastricht / Luik (A2) en Aken (A76).

Per openbaar vervoer: Het station van Heerlen ligt op loopafstand van het object.

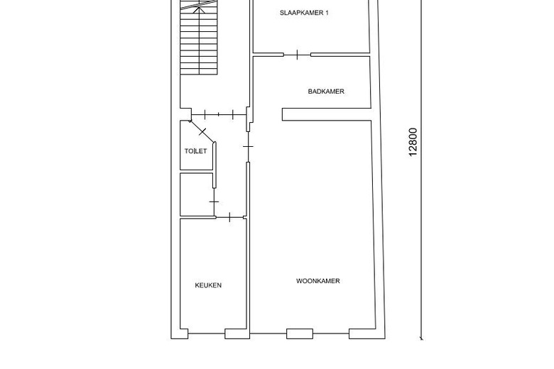
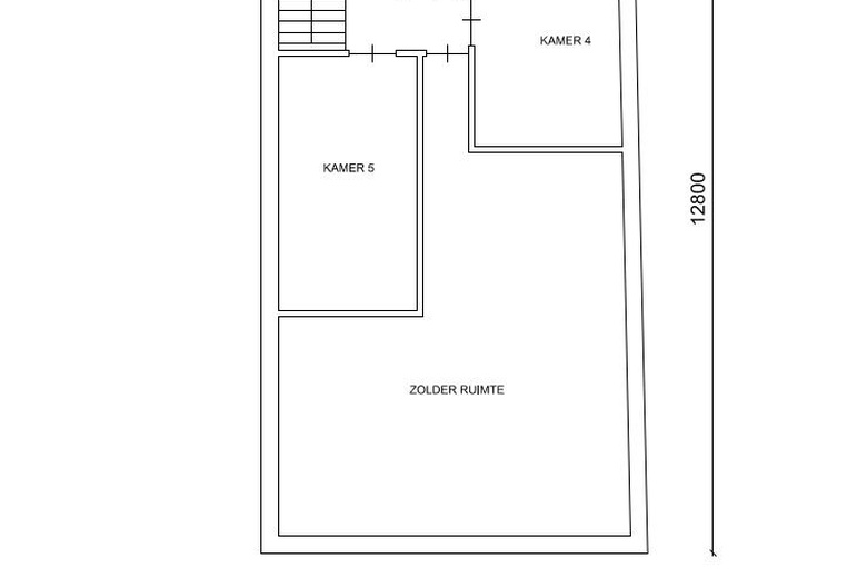
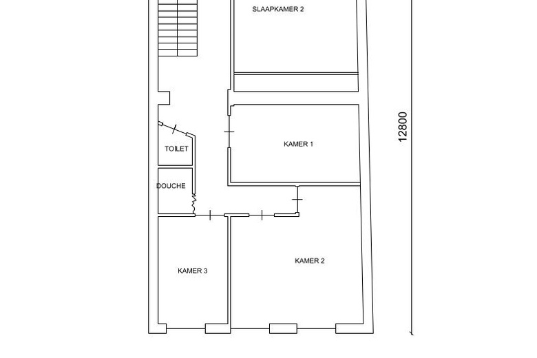
OBJECTINFORMATIE

Het gebouw bestaat uit:Bouwlaag - Omschrijving – Oppervlakte (v.v.o.)

Souterrain - opslagruimte - ca. 71 m²

Begane Grond – Commerciële ruimte - ca. 214 m²

Eerste verdieping – multifunctionele ruimte - ca. 71 m²

Tweede verdieping – multifunctionele ruimte - ca. 71 m²

Derde verdieping - multifunctionele ruimte - ca. 32 m²

Zolder - multifunctionele ruimte - ca. 35 m²

Totaal ca. 494 m²

Parkeren:

In de directe omgeving zijn voldoende openbare parkeergelegenheden.

Bestemming:

Als ruimtelijk kader geldt het Omgevingsplan ‘gemeente Heerlen’, met specifiek voor dit object het bestemmingsplan ‘Cityplan Heerlen’. Op basis van dit plan is het object bestemd als ‘Gemengd’. Het Omgevingsplan is op eerste aanvraag beschikbaar via ons kantoor.

Opleveringsniveau:

Het object wordt in huidige staat (´as-is, where-is´) opgeleverd. Koper is zelf verantwoordelijk voor de eventuele transformatie naar ‘wonen’ te onderzoeken.

KOOPGEGEVENS

Vraagprijs: € 295,000,- kosten koper.

Aanvaarding: In overleg, op korte termijn mogelijk.

Kadastrale info: het object is kadastraal bekend:

•Gemeente Heerlen, sectie D, nummers 6286

•Totaal groot: 257 m2

Eigendom soort: Volle eigendom.

Oplevering: In huidige staat, vrij van huur en bezemschoon.

Verkoop van dit object is te allen tijde onder voorbehoud van schriftelijke goedkeuring door eigenaar.

Alle maten en afmetingen zijn bij benadering weergegeven. Deze aanbieding mag slechts worden gezien als een uitnodiging tot bezichtiging. Een afspraak hiertoe kunt u maken bij ons kantoor.

Hoewel de grootst mogelijke zorgvuldigheid bij de samenstelling van deze informatie is betracht, aanvaarden wij geen aansprakelijkheid voor de juistheid van de vermelde gegevens.

Bereikbaarheid

Tram, bus, metro
  • Akerstraat 6 min. lopen
  • achterzijde-busstation Perron A 6 min. lopen
  • Theater 7 min. lopen
  • Voskuilenweg 7 min. lopen
  • Heerlen 8 min. lopen

Bijlagen

De aanbieder van dit object heeft een PDF Brochure beschikbaar gesteld.

Vraag brochure aan