Resultaten laden ...

Moergestelseweg 28 200 - 881 m2 zorg te huur in Oisterwijk

Kenmerken

Huurprijs € 145 m²/jaar
Functie Zorg
Onderhoud buiten Uitstekend
Onderhoud binnen Uitstekend
Wijk / Buurt Verspreide huizen bosgebied

Multifunctioneel pand te huur aan de rand van het centrum van Oisterwijk

Aan de Moergestelseweg 28 in Oisterwijk staat dit ruime en hoogwaardig afgewerkte pand te huur. Het gebouw wordt momenteel door de nieuwe eigenaren grondig verbouwd. Hierdoor ontstaat een frisse, moderne ruimte die eenvoudig kan worden aangepast aan de wensen van de huurder.

De indeling van het pand maakt het bijzonder geschikt voor medische en zorggerelateerde functies. Er zijn meerdere praktijk- en behandelruimtes, royale wachtruimtes, diverse toiletruimtes, een lift en meerdere pantry’s aanwezig. Dankzij de nieuwe indeling en het hoogwaardige afwerkingsniveau biedt het pand een zeer representatieve omgeving voor onder meer huisartsen, fysiotherapeuten, tandartsen, paramedische disciplines of andere praktijkgerichte ondernemers.

De ligging aan de rand van het centrum van Oisterwijk zorgt voor een uitstekende bereikbaarheid, zowel met de auto als met het openbaar vervoer. Daarnaast zijn er in de nabije omgeving voldoende voorzieningen aanwezig, wat bijdraagt aan een prettige werkomgeving.

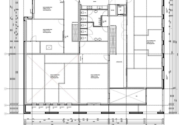
Metrages (BVO)

Begane grond: circa 449 m2

Eerste verdieping: circa 432 m2

Optioneel: Deelverhuur

Er is de mogelijkheid om in samenspraak met de verhuurder een gedeelte van het pand te huren, vanaf circa 200 m². Zolang de beschikbaarheid het toelaat, kan ook de volledige verdieping worden gehuurd. Neem gerust contact op met Online Bedrijfsmakelaar voor meer informatie over de mogelijkheden.

Parkeren

Voldoende parkeergelegenheid aanwezig op eigen buitenterrein.

Ligging en bereikbaarheid

Het gebouw is gelegen aan de rand van Oisterwijk. Dankzij de gunstige ligging is de bereikbaarheid uitstekend. Via de nabijgelegen N65 ben je in korte tijd in omliggende steden zoals Tilburg, ’s-Hertogenbosch en Vught. Ook de verbinding met de A58 en andere regionale wegen zorgt ervoor dat het pand goed bereikbaar is voor automobilisten vanuit verschillende delen van Brabant.

Ook met het openbaar vervoer is de locatie eenvoudig te bereiken. Er bevinden zich meerdere bushaltes op loopafstand en het treinstation van Oisterwijk ligt op slechts enkele minuten rijden.

Bestemmingsplan

Volgens het actuele bestemmingsplan heeft het gebouw een “Gemengd” bestemming. Hierdoor zijn bedrijven opererend in cultuur en ontspanning, maatschappelijke voorzieningen, (binnen-)sport en voor een gedeelte kantoren toegestaan.

Als gebruiker bent u zelf verantwoordelijk om navraag te doen naar het actuele bestemmingsplan bij de gemeente. Aan deze omschrijving kunnen geen rechten worden ontleend.

Standaard opleveringsniveau

De aangeboden prijs is gebaseerd op een casco opleveringsniveau, aangevuld met mechanische ventilatie, airconditioning, sanitaire voorzieningen, een vaste trapopgang naar de verdieping en een lift.

De verhuurder is bereid om, op basis van de wensen van de toekomstige huurder, het pand volledig turn-key op te leveren, zodat het direct instapklaar is. Voor meer informatie kunt u contact opnemen met Online Bedrijfsmakelaar.

Huurcondities

Huurprijs: vanaf € 145,- per m2 per jaar excl. BTW (afhankelijk van het daadwerkelijke opleveringsniveau en de huurperiode).

Servicekosten: In overleg, het object beschikt over zelfstandige nutsvoorzieningen.

Huurtermijn: In overleg, minimaal 5 jaar.

Aanvaarding: In overleg.

Opzegtermijn: 12 maanden.

Zekerheidstelling: Waarborgsom: ter grootte van drie maanden huur.

Huurindexering: Jaarlijks overeenkomstig het maand prijsindexcijfer volgens het consumentenprijsindexcijfer (CPI) reeks CPI alle huishoudens (2015=100) gepubliceerd door het Centraal Bureau voor de Statistiek (CBS). De huurprijs zal nimmer minder bedragen dan de huurprijs van het voorafgaande jaar. Indexatie voor het eerst 12 maanden na huur ingangsdatum en zo vervolgens jaarlijks.

BTW: Indien huurder niet aan het "90%-criterium”(aandeel belaste prestaties) voldoet, zal er van rechtswege sprake zijn van omzetbelasting vrijgestelde verhuur. Als dan wordt de overeengekomen kale huurprijs, exclusief omzetbelasting, zodanig verhoogd, dat het voor verhuurder ontstane financiële nadeel wordt gecompenseerd.

Huurcontract: R.O.Z.-model op basis van het daadwerkelijke gebruik.

Meer informatie?

Neem contact op met de Online Bedrijfsmakelaar of rechtstreeks met de beheerder: 4V Vastgoed BV via 06 - 5375 5503.

Goedkeuring

Het bovenstaande is onder finaal voorbehoud van de verhuurder.

Disclaimer: Ondanks dat deze publicatie met de grootst mogelijke zorgvuldigheid is samengesteld is de Online Bedrijfsmakelaar BV niet aansprakelijk te stellen voor onjuiste of onvolledige informatie die in deze publicatie vermeld staan. Aan deze gegevens kunnen geen rechten worden ontleend.

====================

Benieuwd naar alle beschikbare informatie over het pand? Vraag dan nu, onder de grote contactbutton, de gratis objectbrochure van Moergestelsewg 28 in Oisterwijk aan en ontvang de objectbrochure binnen 5 minuten in uw mailbox. Uiteraard kunt u ook direct een geheel vrijblijvende bezichtiging met de beheerder van het pand inplannen.

Bereikbaarheid

Tram, bus, metro
  • Groenstraat 5 min. lopen
  • Mgr. Verhoevenlaan 7 min. lopen
  • Moergestelseweg 8 min. lopen
  • Baerdijk 9 min. lopen

Bijlagen

De aanbieder van dit object heeft een PDF Brochure beschikbaar gesteld.

Vraag brochure aan