Resultaten laden ...

Bolstoen 15 P 140 m2 bedrijfsruimte te huur in Amsterdam

Kenmerken

Huurprijs Prijs op aanvraag
Perceeloppervlakte 4217 m²
Perceeloppervlakte 4217 m²
Functie Bedrijfsruimte
Wijk / Buurt Bedrijventerrein Sloterdijk
Bedrijventerrein Sloterdijk III

NIEUW BESCHIKAAR - ZEER REPRESENTATIEVE BEDRIJFSUNIT TE HUUR IN AMSTERDAM

Bent u op zoek naar een zeer representatieve bedrijfsruimte in Amsterdam? Op bedrijventerrein Sloterdijk III in Amsterdam bieden wij u deze prachtige bedrijfsunit te huur aan op Bolstoen 15 P welke momenteel wordt afgebouwd. De bedrijfsruimte gelegen aan Bolstoen 15 P is gereed voor uw intrek!

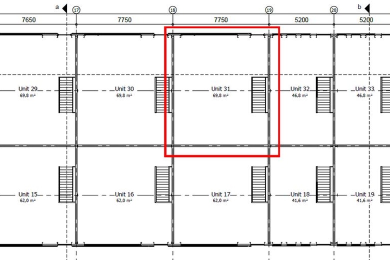
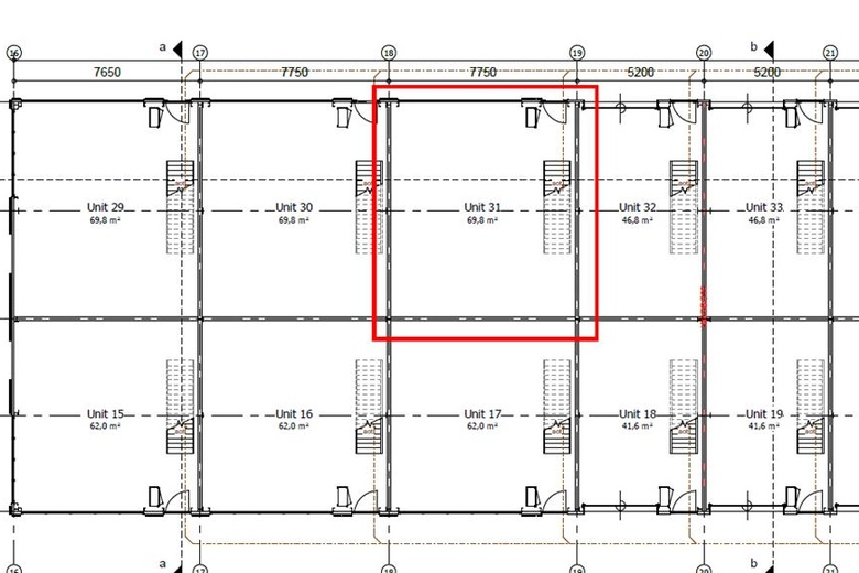
De energiezuinige unit bestaat uit een bedrijfsruimte op de begane grond van ca. 69,8 m² (BVO) en een bedrijfs-/kantoorruimte op de eerste verdieping van ca. 69,8 m² (BVO). De nieuwbouw bedrijfsruimte heeft een diepte van ca. 8,9 meter en een breedte ca. 7,8 meter. Hierdoor is de ruimte voor veel verschillende doeleinden te gebruiken. De voorzijde is voorzien van een prachtige aluminium schuifpui. Door de keuze van veel lichtdoorlatende materialen is zowel de begane grond als de eerste verdieping voorzien van veel daglicht. De unit is onderdeel van het bedrijvencomplex Layers Amsterdam II.

KENMERKEN VAN DE UNIT

Bedrijfsruimte, begane grond:

- Gladde betonvloer op de begane grond met een draagvermogen van 1.000 kg/m².

- Wand rondom de trap, voorzien van een toegangsdeur naar de bedrijfsruimte, zodat er een aparte entree gecreëerd wordt.

- Wandcontactdozen.

- Aluminium schuifpui met veel daglichttoetreding.

- Separate toegangsdeur met bovenlicht (glas boven de deur).

- Toilet.

- Led verlichting.

Bedrijfs-/kantoorruimte, eerste verdieping:

- Verdiepingsvloer voor afgewerkt met een houtlook vloer. U hoeft alleen nog maar uw spullen neer te zetten!

- Pantry van 1,8 m breed met close-in boiler.

- Natuurlijke toevoer via de ventilatieroosters in de ramen.

- Wandcontactdozen.

- Airco unit t.b.v. verwarmen en koelen.

- Led verlichting.

AANVULLENDE INFORMATIE

- Nutsaansluitingen: het object heeft een elektra-, water- en glasvezel internetaansluiting (FiberNow). Een gasaansluiting is niet meer aanwezig bij nieuwbouw. Huurder dient een contract af te sluiten voor elektra en water.

- Parkeerplaatsen: 2 stuks voor de deur.

- Bereikbaarheid: Bolstoen 15 P in Amsterdam is zeer goed bereikbaar en bevindt zich op bedrijventerrein Sloterdijk III. Het bedrijventerrein is gesitueerd langs de A5 wat de verbindingsweg is tussen de A10 en de A4. Daarnaast is de N200 in de directe nabijheid, de verbindingsweg tussen Amsterdam en Haarlem.

Per OV kunt u bij bushalte Bolstoen opstappen, welke op nog geen 2 minuten lopen is.

BESTEMMING

Op het perceel rust de bestemming "Bedrijf-3" conform bestemmingsplan Sloterdijk III. De aangeboden unit is daarmee bestemd ten behoeve van bedrijven die vallen onder milieucategorie 2 tot 4. Voor meer informatie kunt u contact met ons opnemen en/of het omgevingsloket raadplegen.

Autobedrijven (garage/ APK/ schadeherstel) zijn niet toegestaan.

HUURVOORWAARDEN

Waar dient u als huurder rekening mee te houden bij het huren van een bedrijfsruimte:

- Bovengenoemde huurprijzen zijn voor de situatie zoals hierboven omschreven. Indien u aanvullende wensen of eisen heeft, kan dit invloed hebben op de huurprijs.

- Servicekosten: € 100,- per maand excl. btw.

- Huurtermijn: 3 (drie) of 5 (vijf) jaar met een automatische verlenging van telkens 3 (drie) of 5 (vijf) jaar. Andere termijnen in overleg beschikbaar.

- Waarborgsom: 3 (drie) bruto maandverplichtingen, te weten een bedrag ter grootte van 3 (drie) maanden huur plus servicekosten en de daarover belastte btw. Over de waarborgsom wordt geen rente vergoed. Huurder mag de huur niet verrekenen met de waarborgsom. Na beëindiging van de huurovereenkomst wordt de borg geretourneerd.

- Opzegtermijn: dit bedraagt temminste 6 (zes) of 12 (twaalf) maanden voor het einde van uw huurtermijn.

- Huurprijsaanpassing: jaarlijkse verhoging, voor het eerst een jaar na ingangsdatum van het huurcontract. Dit op basis van de wijziging van het maandprijsindexcijfer volgens de consumentenprijsindex (CPI) “alle huishoudens” (2015 = 100), gepubliceerd door het Centraal Bureau voor de statistiek (CBS).

WILT U EEN AFSPRAAK?

Bent u overtuigd van de mogelijkheden die de representatieve bedrijfsunit aan Bolstoen 15 P u te bieden heeft? Neem direct contact met ons op voor het inplannen van een afspraak!

Disclaimer

Het gestelde in deze objectinformatie behelst vrijblijvende en globale informatie met betrekking tot het daarbij genoemde onroerend goed. De beschikbaarheid is indicatief en onder uitdrukkelijk voorbehoud goedkeuring en overleg opdrachtgever. Aan de inhoud van deze informatie kunnen geen rechten worden ontleend. Door aanvaarding van de vermelde condities respectievelijk door het doen van een tegenvoorstel, worden onze opdrachtgevers dan wel ons kantoor niet gebonden.

Bereikbaarheid

Tram, bus, metro
  • Bolstoen 1 min. lopen
  • Pleimuiden 3 min. lopen
  • Jarmuiden 5 min. lopen
  • Herwijk 7 min. lopen
  • Abberdaan 7 min. lopen