Delta 53 G
84 - 85 m2 bedrijfsruimte te huur in Arnhem
Kenmerken
| Huurprijs | € 24.000 /jaar |
| Functie | Bedrijfsruimte |
| Onderhoud buiten | Uitstekend |
| Onderhoud binnen | Uitstekend |
| Wijk / Buurt | IJsseloord |
| Bedrijventerrein | IJsseloord II |
2 eenheden beschikbaar
2 eenheden beschikbaar
- Eenheid
- Oppervlakte
- Huurprijs
- Gebruik
- 2
- 84 m2
- Kantoorruimte
| OPPERVLAKTE | 85 m2 |
| GEBRUIK | Bedrijfsruimte |
| OPPERVLAKTE | 84 m2 |
| GEBRUIK | Kantoorruimte |
Omschrijving
Omschrijving
Het betreft een representatieve bedrijfsunit van circa 169 m² (bouwjaar 2023), gelegen op het kantoren- en businesspark IJsseloord 2 te Arnhem. Het object beschikt over 2 parkeerplaatsen, gelegen op het naastgelegen mandelige terrein. Het pand is aantrekkelijk gesitueerd, direct nabij Knooppunt Velperbroek.
Ligging
Het business IJsseloord 2 is direct gesitueerd aan de A12/N325. Het businesspark wordt gekenmerkt door een hoogwaardige uitstraling door de parkachtige inrichting, groenvoorziening en gecontroleerde architectuur. Het ‘groene’ karakter van IJsseloord 2 wordt nog eens versterkt door de ecologische zone
langs de IJssel.
Bereikbaarheid
Per auto:
Het businesspark is uitstekend bereikbaar met eigen vervoer door de unieke ligging aan het Velperbroekcircuit met aansluitingen op onder andere de A12 (Den Haag-Arnhem-Oberhausen), de A50 (Den Bosch-Arnhem-Apeldoorn), de A348 (Arnhem-Zutphen) en de A325 (Arnhem-Nijmegen).
Per openbaar vervoer:
Het businesspark is met het openbaar vervoer goed bereikbaar door een frequente verbinding met het NS Station Arnhem tijdens de spitsuren.
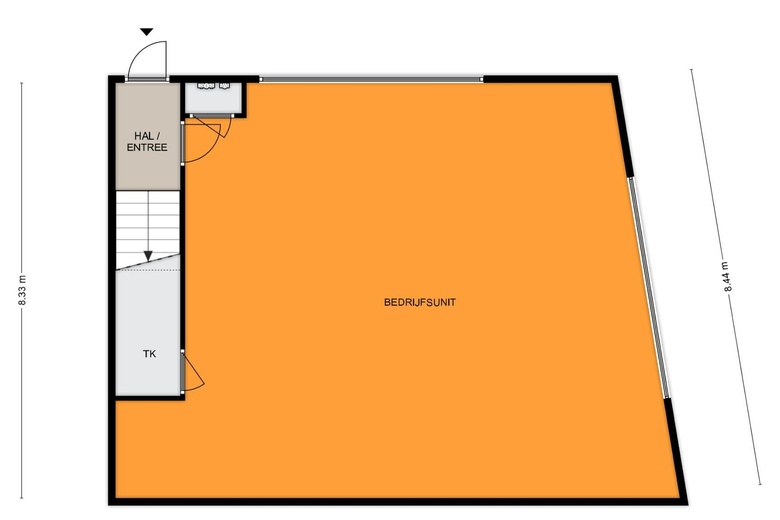
Vloeroppervlakte
Het object heeft een totale oppervlakte van circa 169 m², als volgt verdeeld:
Begane grond - Bedrijfsruimte - Ca. 85 m²
1e verdieping - Kantoor - Ca. 84 m²
Totaal - Ca. 169 m²
Opleveringsniveau
Het bedrijfspand is onder andere voorzien van:
Bedrijfsruimte:
- Elektrische bedienbare overheaddeur;
- Glad afgewerkte vloer;
- Verlichtingsarmaturen.
Kantoor:
- Diverse elektrapunten;
- Airco unit;
- Pantry met diverse inbouwapparatuur;
- Lamellen;
- Systeemplafond met led-verlichtingsarmaturen;
- Sanitaire voorziening.
Diverse roerende zaken zijn ter overname.
Parkeren
Tot het gehuurde behoren twee parkeerplaatsen op het naastgelegen mandelige terrein.
Huurprijs
€ 24.000,- per jaar, te vermeerderen met BTW.
VvE bijdrage
€ 85,- per maand, te vermeerderen met BTW.
Energielabel
Het pand beschikt over energielabel A++.
Bestemming
De bestemming is onder meer 'Bedrijfsdoeleinden B-III'. Voor een nadere toelichting op het bestemmingsplan verwijzen wij u graag naar de website van het Omgevingsloket.
Heeft dit pand uw interesse gewekt? Dan nodigen wij u van harte uit het pand eens van binnen te komen bekijken!