Resultaten laden ...

Eenspan 28 0 ong 416 m2 bedrijfsruimte te koop in Zeewolde

Kenmerken

Prijs Prijs op aanvraag
Functie Bedrijfsruimte
Onderhoud buiten Uitstekend
Onderhoud binnen Uitstekend
Wijk / Buurt Middengebied
Bedrijventerrein HORSTERPARC

Nieuwbouwproject BEDRIJVENPARC ZEEWOLDE (4 Kapper) - BOUWVERGUNNING IS VERLEEND - Start bouw april 2026

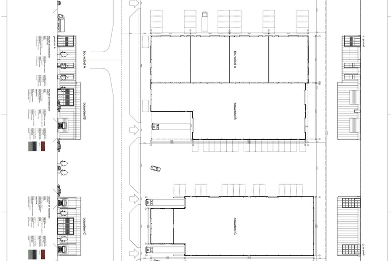
Op bedrijventerrein Horsterparc in Zeewolde wordt een nieuw bedrijfsverzamelgebouw ontwikkeld bestaande uit slechts 4 grote units. Dit maakt deel uit van een groter plan waar aan beide zijde nog een groter bedrijfsgebouw komt te staan.

De locatie ligt nabij de provinciale weg tussen Harderwijk-Nijkerk en Almere in en is goed bereikbaar per auto via 2-baans wegen. Horsterparc is een kleinschalig jong bedrijventerrein naast het grote Trekkersveld. Het dorp van Zeewolde ligt op 2-3 minuten rijafstand. In de directe omgeving zijn diverse bedrijven gehuisvest waaronder o.a. King Nonwovens, Bakker, Wolter Koops, Brouwer Units en het Tegeldepot.

Het nieuwbouwplan "Bedrijvenparc Zeewolde" bestaat uit 4 middelgrote bedrijfsunits, in grootte variërend van 416 m² tot 419 m² bruto vloeroppervlak. Voor de units worden parkeerplaatsen aangelegd. De gebouwen worden duurzaam opgeleverd met o.a. hoge isolatiewaardes, vloerverwarming (voorbereidt) en eigentijdse luxe uitstraling.

Elke unit wordt voorzien van een (gedeeltelijke) verdiepingsvloer zodat op de verdieping eventueel kantoorruimte e.d. kan worden gemaakt. Tevens kunnen (meerdere) units gekoppeld worden.

Opleveringsniveau

Elke unit is voorzien van:

- Aansluitingen in meterkast voor elektra, water, glasvezel;

- Afvoer riool in vloer gestort;

- Monoliet afgewerkte begane grond vloer met draagvermogen van circa 1.700 kg/m²;

- Kanaalplaatvloer (onafgewerkt) verdieping met draagvermogen van circa 500 kg/m²;

- Overheaddeur (circa 3,75 x 4,20 meter);

- Kunststof profiel kozijnen met draai/kiepraam met meerpuntssluiting;

- Vurenhouten trap naar verdieping;

- Betonnen plint in gevel gebouw;

- Vrije hoogte circa 7 meter;

- Gevel deels voorzien van sandwichpanelen;

- Mogelijkheid om zonnepanelen te plaatsen op het dak door koper;

De units worden nieuw gebouwd en volgens de laatste inzichten, regelgeving en normering casco opgeleverd.

Bestemming

De voor 'Bedrijventerrein - 3' aangewezen gronden zijn bestemd voor:

- ter plaatse van de aanduiding 'bedrijf tot en met categorie 3.2', het uitoefenen van bedrijfsmatige activiteiten in de categorieën 1 tot en met 3.2 van de bij deze regels behorende Staat van Bedrijfsactiviteiten-Horsterparc;

met dien verstande dat:

g. risicovolle inrichtingen niet zijn toegestaan;

h. bedrijven die in belangrijke mate geluidhinder kunnen veroorzaken niet zijn toegestaan;

Kadaster

Het betreft grond in vol eigendom wat gesplitst zal gaan worden in appartementsrechten.

Koopprijs en oppervlakte

unit begane grond verdieping Koopsom Status

1. 335 m² 83 m² € 585.000,- OPTIE

2. 335 m² 83 m² € 545.000,- BESCHIKBAAR

3. 335 m² 83 m² € 535.000,- BESCHIKBAAR

4. 335 m² 83 m² € 565.000,- OPTIE

De oppervlaktes zijn op basis van Bruto Vloer Oppervlakte (b.v.o.) vermeld. Bekijk de plattegronden voor de exacte oppervlakte per unit. Prijzen zijn geldig tot 1 april 2026.

Parkeren

Op eigen terrein worden ruim voldoende parkeerplaatsen aangelegd die verdeeld worden tussen de eigenaren.

Bijkomende kosten en BTW

De units worden "Vrij op naam" geleverd. De kosten voor de levering bij de notaris zijn inbegrepen in de prijs. De genoemde prijzen zijn exclusief 21% BTW.

Voor de aansluiting op de nutsvoorzieningen wordt een bijdrage van € 3.000,- in rekening gebracht met als uitgangspunt dat er een 3 x 35 A elektra aansluiting wordt geleverd.

Vve

Er zal een Vereniging van Eigenaren worden opgericht waar de kopers automatisch lid van worden. Er zal een maandelijkse bijdrage worden gevraagd tussen de circa € 250,- per unit naar verwachting voor reservering van o.a. groot onderhoud, opstalverzekering en onderhoud van het buitenterrein.

Projectnotaris

PVM uit Almere.

Planning

De bouwvergunning is verleend. De verwachting is dat de bouw start in april 2026 en de oplevering in 2026 plaats vindt.

Aanvaarding

In overleg.

MEER INFO VIA

Bereikbaarheid

Tram, bus, metro
  • Trekkersveld 5 min. lopen

Bijlagen

De aanbieder van dit object heeft een PDF Brochure beschikbaar gesteld.

Vraag brochure aan