Resultaten laden ...

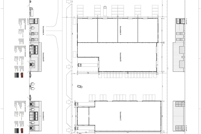
Eenspan 28 0 ong 83 - 333 m2 bedrijfsruimte te huur in Zeewolde

Kenmerken

Huurprijs Prijs op aanvraag
Functie Bedrijfsruimte
Onderhoud buiten Uitstekend
Onderhoud binnen Uitstekend
Wijk / Buurt Middengebied
Bedrijventerrein HORSTERPARC

Bereikbaarheid

Tram, bus, metro
  • Trekkersveld 5 min. lopen