Resultaten laden ...

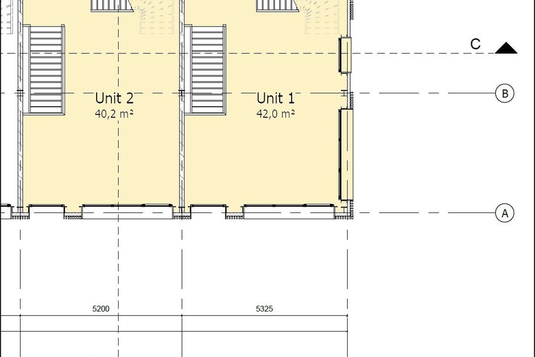
Hogeweyselaan 201 B 40 - 61 m2 bedrijfsruimte te huur in Weesp

Kenmerken

Status Verkocht onder voorbehoud
Huurprijs € 2.000,- /maand excl. btw
Functie Bedrijfsruimte
Onderhoud buiten Uitstekend
Onderhoud binnen Uitstekend
Wijk / Buurt Hogewey