Rijnlanderweg 766 A
64 - 1.276 m2 bedrijfsruimte te huur in Hoofddorp
Kenmerken
| Huurprijs | Prijs op aanvraag |
| Functie | Bedrijfsruimte |
| Onderhoud buiten | Goed |
| Onderhoud binnen | Goed |
| Wijk / Buurt | De Hoek |
| Bedrijventerrein | De Hoek |
2 eenheden beschikbaar
2 eenheden beschikbaar
- Eenheid
- Oppervlakte
- Huurprijs
- Gebruik
- 2
- 64 m2
- Prijs op aanvraag
- Kantoorruimte
| OPPERVLAKTE | 1.276 m2 |
| GEBRUIK | Bedrijfsruimte |
| OPPERVLAKTE | 64 m2 |
| GEBRUIK | Kantoorruimte |
Omschrijving
Omschrijving
Units te huur aan Rijnlanderweg 766
OMSCHRIJVINGMeerdere units vanaf 1.340 m² tot 3.300 m² per direct beschikbaar op SEGRO Park Amsterdam Airport.
Elke unit beschikt over twee loadingdocks en één overheaddeur op maaiveldniveau. LOCATIE
SEGRO Park Amsterdam Airport is ideaal gelegen op één van de meest aantrekkelijke logistieke hotspots van de Benelux, direct naast Schiphol Amsterdam Airport. Het businesspark voldoet aan de eisen van moderne logistieke bedrijven. Bedrijven die zich hier al hebben gevestigd zijn onder andere: DHL, GXO, Kite Pharma en Apex. Met de nabijheid van Amsterdam en Schiphol Amsterdam Airport, evenals goede verbindingen met de rest van Europa, is dit tevens een perfecte locatie voor e-commerce, groothandel of kleine logistieke bedrijven. BEREIKBAARHEID
Dit gebouw is uitstekend bereikbaar over de weg en biedt optimale transportverbindingen via de A4 richting Den Haag en Rotterdam, evenals de verlengde A5 naar de haven. De nieuwe N201 biedt binnen 10 minuten toegang tot Schiphol Amsterdam Airport, waardoor dit de best bereikbare bedrijfslocatie in de Schiphol-regio is. BESCHIKBARE RUIMTEN
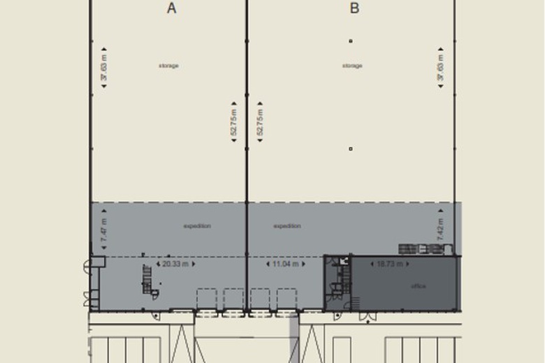
Momenteel zijn er verschillende units beschikbaar voor de verhuur, dit is als volgt verdeeld: Unit A
Bedrijfsruimte: 1.111 m²
Kantoorruimte (begane grond): 64 m²
Mezzanine: 165 m²
Totaal: 1.340 m²
Parkeerplaatsen: 10 Unit B
Bedrijfsruimte: 1.435,7 m²
Kantoorruimte (begane grond): 136,4 m²
Kantoorruimte (eerste verdieping): 289,8 m²
Totaal: 1.861,9 m²
Parkeerplaatsen: 10 Unit F
Bedrijfsruimte: 1.434 m²
Kantoorruimte (begane grond): 141 m²
Mezzanine: 291 m²
Totaal: 1.866 m²
Parkeerplaatsen: 10 Unit L&M
Bedrijfsruimte: 2.540 m²
Kantoorruimte (begane grond): 227 m²
Mezzanine: 499 m²
Totaal: 1.866 m²
Parkeerplaatsen: 22 PARKEREN
Deze unit beschikt over een ruim buitenterrein met 20 parkeerplaatsen.
SEGRO Park Amsterdam Airport is omheind en de toegangsweg is beveiligd met slagbomen. OPLEVERINGSNIVEAU
De ruimte wordt opgeleverd in de huidige staat, inclusief onder andere: BEDRIJFSRUIMTE:
* 2 dock levellers per unit;
* 1 overhead deur op maaiveldniveau per unit;
* Dockzone 22 m;
* Manoeuvreerruimte circa 33 m;
* Vloerbelasting bedrijfsruimte 30 kN/sq m;
* Vloerbelasting 1e verdieping 4 kN/sq m;
* Vrije hoogte van 9.3 m tot 10.3 m;
* Maximale hoogte docks 4.6 m;
* Verwarming bedrijfsruimte tot 13°C bij een minimale buitentemperatuur van -10°C. KANTOOR:
* Centrale installatie voor verwarming en koeling;
* Koeling van kantoren tot 24°C bij een buitentemperatuur van maximaal 28°C;
* Zuidzijde van het gebouw voorzien van automatische zonwering;
* Vrije hoogte begane grond 4,5 m;
* Vrije hoogte eerste verdieping 5 m;
* Pantry en toilet op de begane grond;
* Pantry en twee toiletten op de eerste verdieping;
* Mogelijkheden voor garderoberuimte of extra kantoorruimte;
* Eerste verdieping flexibel in te richten als mezzanine of kantoorruimte. ENERGIELABEL
A+ HUURPRIJS
Op aanvraag. SERVICEKOSTEN
Nader te bepalen. HUURTERMIJN
Minimaal 5 jaar. OPLEVERING
Per direct beschikbaar. HUUROVEREENKOMST
Huurovereenkomst op basis van het model "Huurovereenkomst Kantoorruimte en andere bedrijfsruimte in de zin van artikel 7:230a BW" (ROZ 2025). BTW
Alle bedragen zijn exclusief servicekosten en BTW.
Aanbevolen voor u
Bekijk
bedrijfsruimte in Hoofddorp
of bekijk deze panden: