Zilverstraat 56 872 m2 bedrijfsruimte te huur in Den Haag
Kenmerken
| Huurprijs | € 9.500,- /maand excl. btw |
| Functie | Bedrijfsruimte |
| Onderhoud buiten | Goed |
| Onderhoud binnen | Goed |
| Wijk / Buurt | Kerketuinen en Zichtenburg |
| Bedrijventerrein | Kerketuinen |
1 eenheid beschikbaar
1 eenheid beschikbaar
- Eenheid
- Oppervlakte
- Huurprijs
- Gebruik
Eenheid omschrijving
ALGEMEEN
Het betreft hier een zeer royale en hoogwaardige bedrijfsruimte met een zestal parkeerplaatsen op eigen terrein.
Het object is gelegen op het in ontwikkeling zijnde binnenstedelijke bedrijventerrein Zichtenburg-Kerketuinen-Dekkershoek (ZKD).
BEREIKBAARHEID
Bedrijventerrein KZD is uitstekend bereikbaar met zowel eigen als openbaar vervoer.
Het kent een snelle ontsluiting, via de Lozerlaan, naar de belangrijkste uitvalswegen in de Randstad (A4 Den Haag - Amsterdam/Rotterdam, A12 Den Haag - Utrecht, A13 Den Haag - Rotterdam).
Bovendien bevinden de tramlijn 6 en diverse bushalten zich op loopafstand. Deze zorgen voor een directe verbinding met de Haagse binnenstad en NS-station Den Haag Centraal en Den Haag Hollands Spoor.
PARKEREN
Zestal parkeerplaatsen op eigen terrein.
Tevens voldoende parkeergelegenheid langs de openbare weg.
OPLEVERINGSNIVEAU
Het betreft in de basis een casco opleveringsniveau waarbij eventuele aanpassingen in nader overleg te bepalen zijn.
- sanitaire voorzieningen
- pantry
- gasgestookte heaters
- uitgebreide elektrische installatie met krachtstroom
- lichtlijnen voorzien van led tl-armaturen
- elektrisch te openen overheaddeur (ca. 400 x 400 cm)
AANVULLENDE INFORMATIE
- bitumineuze dakdekking vernieuwd in december 2023
- achtergevel voorzien van raampartijen, deels te openen
- vrije hoogte ca. 3 meter onder entresolvloer en ca. 6.10 meter onder het spant in open ruimte
- betonvloer met draagvermogen van 2.000 kg/m²
- betonvloer (verdieping) vanuit de bouw met draagvermogen van tenminste 250 kg/m²
- entresolvloeren bestaande uit staalconstructie met beton kanaalplaatvloerdelen met draagvermogen tenminste 250 kg/m²
- vereniging van eigenaars is niet actief
METRAGE
Totaal:
BVO 872 m²
VVO 825 m²
Begane grond:
BVO 499 m²
VVO 475 m²
Eerste etage:
BVO 373 m²
VVO 350 m²
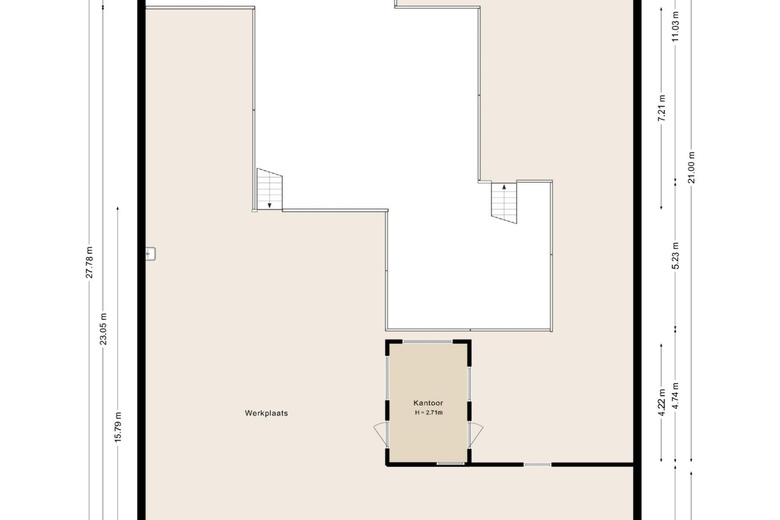
INDELING
Graag verwijzen wij u naar bijgevoegde plattegrondtekeningen
BESTEMMINGSPLAN
Bestemmingsplan ZKD vastgesteld op 1 oktober 2015 en terug te vinden op onder NL.IMRO. 0518.BP0229ABedrijvZKD-50VA.
De voor het complex geldende bestemming is bedrijfsdoeleinden’.
KADASTRAAL
Gemeente Loosduinen M 4266 A-1 (bedrijfsruimte) alsmede A21 tot en met A26 (parkeerplaatsen), uitmakende respectievelijk 49/576e en elk 1/576e aandeel in de gemeenschap bestaande uit het eeuwigdurend recht van erfpacht (afgekocht) van een perceel grond in eigendom toebehorende aan de gemeente ’s-Gravenhage ten tijde van de splitsing in appartementsrechten kadastraal bekend gemeente Loosduinen Sectie M groot 80 are en 21 centiare zijnde een bedrijfsverzamelgebouw omvattende 16 bedrijfsruimten met aan - en toebehoren alsmede 54 afzonderlijke parkeerplaatsen aan de Zilverstraat te ’s-Gravenhage.
HUUR
- BTW; niet van toepassing
- huurtermijn; 5 + 5 jaar
- opzegtermijn; 12 maanden
- huurprijsaanpassing; jaarlijks, voor het eerst 1 jaar na huuringangsdatum, op basis van de wijziging van het prijsindexcijfer volgens de Consumentenprijsindex (CPI), Alle Huishoudens (2015=100), gepubliceerd door het Centraal Bureau voor de Statistiek (CBS)
- betalingen; per maand vooruit
- waarborgsom; ter grootte van drie maanden huur
- huurovereenkomst; kantoorruimte en andere bedrijfsruimte in de zin van artikel 7: 230a BW
KOOP
- koopovereenkomst; op basis van ROZ model
- overdrachtsbelasting; over de koopsom is overdrachtsbelasting door koper verschuldigd
- BTW; niet van toepassing
AANVAARDING
In nader overleg doch kan per direct
| OPPERVLAKTE | 872 m2 |
| GEBRUIK | Bedrijfsruimte |
Bereikbaarheid
- De Rade 5 min. lopen
- Dr. H.E. van Gelderlaan 5 min. lopen
- Dedemsvaartweg 6 min. lopen
- Bouwlustlaan 7 min. lopen
- Vrederustlaan 9 min. lopen