Achterweg 14
155 m2 kantoorruimte te huur in Noordwijk
Kenmerken
| Huurprijs | € 180 m²/jaar |
| Functie | Kantoorruimte |
| Wijk / Buurt | Verspreide huizen Zuiden en Oosten |
1 eenheid beschikbaar
1 eenheid beschikbaar
- Eenheid
- Oppervlakte
- Huurprijs
- Gebruik
- 1
- 155 m2
- € 180 m²/jaar
- Kantoorruimte
| OPPERVLAKTE | 155 m2 |
| GEBRUIK | Kantoorruimte |
Omschrijving
Omschrijving
TE HUUR
Achterweg 14 te Noordwijk (2201 AH)
Ontdek een buitengewone kans voor modern zakendoen, gelegen op een geweldige kantoorlocatie van ca. 155 m² in Noordwijk-Binnen. Dit opvallende, vrijstaande kantoorgebouw aan de Achterweg combineert eigentijds ontwerp met een duurzame insteek, gekenmerkt door een Energielabel A+++. Dankzij de strategische ligging in de Bollenstreek regio geniet dit pand uitstekende bereikbaarheid, op een steenworp afstand van de N206 en de A44. Met 't Heen Business Park, Noordwijk Space Business Park en 's Gravendijck Industriepark in de nabije omgeving is dit dé ideale kantoorlocatie in Noordwijk. Dit pand is ideaal voor toekomstgerichte professionals. De goed verlichte, ruime opzet nodigt uit tot vergaderingen, vruchtbare samenwerkingen en productieve interacties met collega's, leveranciers en klanten. Daarnaast is het ook perfect om te gebruiken als showroom ruimte. Overvloedig daglicht vult de kantoren, mogelijk gemaakt door zonwerend glas dat zowel comfort als esthetiek waarborgt. Het pand is doordacht uitgerust met moderne voorzieningen, zoals een stijlvolle pantry, aparte toiletfaciliteiten, vloerverwarming en een klimaatregelingssysteem dat zorgt voor een aangenaam binnenklimaat. Het fraaie trappenhuis in het hart van het gebouw maakt een bijzondere indruk. De indrukwekkende gevel van dit kantoorgebouw biedt niet alleen uw bedrijf voldoende ruimte, maar is tevens een meerwaarde voor uw professionele identiteit en maakt het een opvallend element op uw visitekaartje. Wij nodigen u van harte uit voor een persoonlijke rondleiding ter plaatse!
Renovatie: omstreeks 2023. BEREIKBAARHEID
Het pand is eenvoudig bereikbaar per eigen vervoer via de Provinciale weg N206. De Rijksweg A44 (Amsterdam-Schiphol-Leiden-Den Haag-Rotterdam) ligt op ongeveer 8 minuten rijden.
Ook met het openbaar vervoer is de locatie goed te bereiken, met diverse bushaltes op loopafstand. LOCATIE / LIGGING
Bedrijventerrein
Landelijk gebied OPPERVLAKTE / INDELING
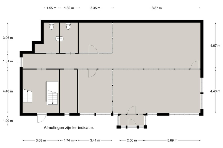
De kantoorruimte heeft in totaal een oppervlakte van ca. 155 m² en is geheel op de begane grond gelegen. PARKEERMOGELIJKHEDEN
Er zijn ruim voldoende parkeerplaatsen beschikbaar, waaronder één met laadpaal. Huurprijs n.o.t.k. OPLEVERINGSNIVEAU
Het onroerend goed wordt opgeleverd in de huidige hoogwaardige staat en beschikt onder andere over:
- Ruime entree
- Algemene kantoorruimte met 4 werkplekken
- 2 Vergaderruimtes - Directiekantoren
- Koffiehoek - pantry
- 2 Toiletten
- 1 Archief - serverruimte
- Zonwerend glas
- Klimaatregelingssysteem
- Vloerverwarming
- LED-verlichting
- Warmtepompinstallatie
- Glasvezelaansluiting
- Microcementvloeren
- Parkeerplaatsen
- Databekabeling HUURPRIJS
€ 180,00 per m² per jaar. SERVICEKOSTEN
Het is mogelijk om een servicepakket af te nemen, met daarin de volgende diensten:
• Verwarmingskosten plus onderhoud
• Elektra algemene ruimtes (terrein)
• Onderhoud tuin
• Glas- en gevelbewassing buitenzijde
• Waterverbruik
• Onderhoud sanitaire en elektrische installatie
• Onderhoud brandmeldinstallatie
• Afvalcontainers
• Onderhoud buitenterrein
• Beheer- en administratiekosten
• Elektriciteitsverbruik
• Algemeen onderhoud
• 24/7camarabeveiliging OMZETBELASTING
Verhuurder wenst te opteren voor een met BTW belaste verhuur. HUURTERMIJN
5 jaar + telkens 5 optiejaren. HUURPRIJSBETALING
De betaling van de huur, eventuele servicekosten en de eventueel verschuldigde omzetbelasting vindt elke
3 maanden bij vooruitbetaling plaats. ZEKERHEIDSTELLING
Bij ondertekening van de huurovereenkomst zal huurder een bankgarantie stellen of een waarborgsom storten ter grootte van (minimaal) 3 maanden huur en eventuele servicekosten, alsmede de hierover verschuldigde omzetbelasting. HUURPRIJSAANPASSING
Jaarlijks, voor het eerst één jaar na ingangsdatum van de huurovereenkomst, op basis van de wijziging van het maandindexcijfer volgens de consumentenprijsindex (CPI) reeks CPI-alle huishoudens (2015=100), gepubliceerd door het Centraal Bureau voor de Statistiek (CBS). HUUROVEREENKOMST
Huurovereenkomst conform het standaardmodel van de Raad voor Onroerende Zaken (ROZ), zoals gehanteerd door de Nederlandse Vereniging voor Makelaars (NVM). AANVAARDING
Per direct beschikbaar. COURTAGE
Mocht door bemiddeling van Basis Bedrijfshuisvesting B.V. een transactie tot stand komen, zult u hiervoor geen kosten of courtage verschuldigd zijn. KADASTRALE GEGEVENS
Gemeente: Noordwijk
Sectie: H
Nummer: 1460 (gedeeltelijk) BIJZONDERHEDEN
Elke transactie behoeft de nadrukkelijke goedkeuring van eigenaar. OVERIG
Bezichtigingen uitsluitend op een daartoe afgesproken tijdstip met Basis Bedrijfshuisvesting B.V. LOCATIE / VOORZIENINGEN
Restaurant
Op minder dan 500 m Winkel voorziening
Op 1.000 tot 1.500 m Snelwegafrit
Op 3000 m tot 4000 m Bushalte
Op minder dan 500 m
Bijlagen
Aanbevolen voor u
Bekijk
kantoorruimte in Noordwijk
of bekijk deze panden: