Geograaf 19 175 m2 kantoorruimte te huur in Duiven
Kenmerken
| Huurprijs | € 1.450 /maand |
| Functie | Kantoorruimte |
| Onderhoud buiten | Goed |
| Onderhoud binnen | Goed |
| Wijk / Buurt | Verspreide huizen Duiven |
| Bedrijventerrein | Centerpoort-Nieuwgraaf |
1 eenheid beschikbaar
1 eenheid beschikbaar
- Eenheid
- Oppervlakte
- Huurprijs
- Gebruik
| OPPERVLAKTE | 175 m2 |
| GEBRUIK | Kantoorruimte |
Omschrijving
Omschrijving
Algemeen:
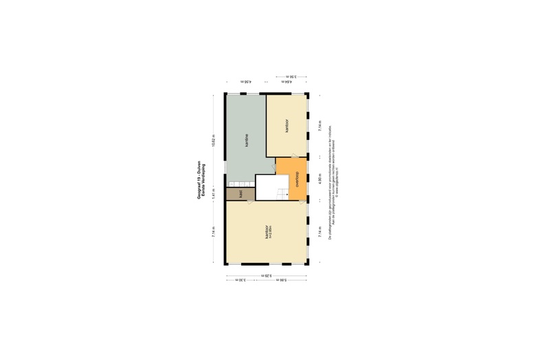
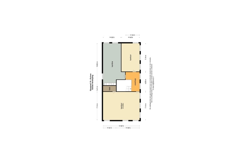
Te huur, kantoorruimte op de eerste verdieping gelegen op bedrijventerrein ‘Centerpoort-Nieuwgraaf’ in Duiven.
Oppervlakte:
Voor verhuur is een totale oppervlakte beschikbaar van 169 m² (VVO), op de eerste verdieping.
Opleveringsniveau:
Het object wordt opgeleverd in de huidige staat, voorzien van onder andere:
Systeemplafonds met TL-verlichtingsarmaturen (deels);
-Kabelgoten;
-Stadsverwarming middels radiatoren;
-Alarminstallatie;
-Vloerbedekking;
-Airco-units.
Locatie
Het object is gelegen op bedrijventerrein Centerpoort-Nieuwgraaf in Duiven. Het bedrijventerrein is ontsloten door twee op- en afritten naar/van de A12. Dit bedrijventerrein wordt gekenmerkt door de aanwezigheid van een mix aan bedrijvigheid en grootschalige detailhandel zoals Ikea, Hornbach en Makro.
Bereikbaarheid
Eigen vervoer
Het object is uitstekend bereikbaar met eigen vervoer door middel van haar ligging nabij de A12 (Den Haag – Arnhem) welke in enkele autominuten bereikbaar is.
Openbaar vervoer
Op loopafstand bevinden zich diverse bushaltes aan de Nieuwgraaf die in directe verbinding staan met treinstation Duiven.
Parkeren:
5 plaatsen.
Huurprijs:
€ 1.450,-- per maand, te vermeerderen met BTW.
Servicekosten/nutsvoorzieningen:
Een verrekenbaar voorschot van € 35,-- per m² per jaar, te vermeerderen met BTW.
Informatie / bezichtiging:
Bereikbaarheid
- Nieuwgraaf 31 2 min. lopen
- IKEA 9 min. lopen