Haverstraat 16 275 m2 kantoorruimte te huur in Oldenzaal
Kenmerken
| Huurprijs | € 29.900 /jaar |
| Functie | Kantoorruimte |
| Wijk / Buurt | De Meijbree |
1 eenheid beschikbaar
1 eenheid beschikbaar
- Eenheid
- Oppervlakte
- Huurprijs
- Gebruik
Eenheid omschrijving
Op zoek naar een ultieme bestemming voor jouw onderneming? Aan de Haverstraat 16-18 in Oldenzaal bieden wij een representatie kantoorruimte met een totale oppervlakte van circa 275 m² aan voor de VERHUUR. Deze ruimte is gelegen aan de rand van het bruisende centrum van Oldenzaal met voorzieningen zoals supermarkten Aldi en Lidl, een gezondheidscentrum en een dierenspeciaalzaak in de directe omgeving. De bereikbaarheid is uitstekend en er zijn ruime parkeermogelijkheden voor de deur. Indien gewenst is splitsing in twee afzonderlijke kantoorunits mogelijk. Is dit de ideale thuisbasis voor jouw bedrijf?
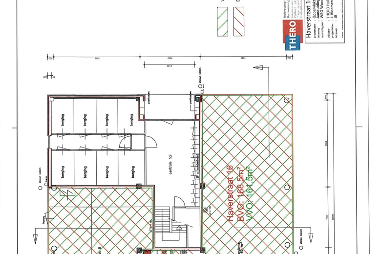
Indeling en oppervlakten
De totale verhuurbare oppervlakte van het onderhavige object bedraagt circa 275 m² en is als volgt onderverdeeld:
Entree (via een centrale hal), meterkast, vrij indeelbare kantoorruimten v.v. veel daglichttoetreding, separate spreekkamers, pantry/berging, toiletruimten en een keukenblok.
** De oppervlakte is gemeten door verhurend makelaar. De opgegeven metrage is derhalve indicatief; er kunnen geen rechten aan worden ontleend noch kan er sprake zijn van enige verrekening achteraf. **
Voorzieningen
Het object wordt opgeleverd met o.a. de volgende voorzieningen:
• blokverwarming;
• airconditioning (ter overname van de huidige huurder);
• systeemplafonds met (ingebouwde) verlichtingsarmaturen (geen eigendom van verhuurder);
• vloerbedekking (ter overname van de huidige huurder);
• sanitaire voorzieningen;
• pantry;
• data bekabeling;
• VDSL-aansluiting;
• glasvezel.
Parkeergelegenheid:
Ruime parkeermogelijkheden voor de deur.
Locatie en bereikbaarheid:
De ruimte is gelegen aan de Haverstraat, met het stadscentrum van Oldenzaal op loopafstand. Het object is uitstekend bereikbaar zowel voor eigen vervoer als openbaar vervoer.
Huurprijs:
De huurprijs bedraagt € 29.900,- per jaar, exclusief BTW en exclusief kosten verwarming/water/elektra.
Indexering:
Jaarlijks, voor het eerst één jaar na huuringangsdatum, op basis van de wijziging van het maandprijsindexcijfer volgens de consumentenprijsindex (CPI), reeks CPI - Alle huishoudens (2015=100), gepubliceerd door het Centraal Bureau voor de Statistiek (CBS). De huurprijs zal nimmer minder bedragen dan de huurprijs van het voorafgaande jaar.
Huurtermijn:
In overleg.
Zekerheidsstelling:
Doorlopende bankgarantie of waarborgsom ter grootte van 3 maanden huur.
Aanvaarding:
In overleg.
** Collegiaal in de verhuur met HOME makelaars **
Wij denken graag met u mee. Maak een afspraak om ter plaatse te gaan kijken en om de verdere mogelijkheden te bespreken!
Disclaimer
De informatie is door ons met de nodige zorgvuldigheid samengesteld, echter aan de inhoud hiervan kunnen geen rechten worden ontleend. Alle opgegeven maten en oppervlakten zijn indicatief, kunnen afwijken van de werkelijke situatie en zijn uitsluitend bedoeld om een indruk te geven van de indeling. Onzerzijds wordt geen enkele aansprakelijkheid aanvaard voor enige onvolledigheid, onjuistheid of anderszins, dan wel de gevolgen daarvan.
| OPPERVLAKTE | 275 m2 |
| GEBRUIK | Kantoorruimte |
Omschrijving
Omschrijving
Op zoek naar een ultieme bestemming voor jouw onderneming? Aan de Haverstraat 16-18 in Oldenzaal bieden wij een representatie kantoorruimte met een totale oppervlakte van circa 275 m² aan voor de VERHUUR. Deze ruimte is gelegen aan de rand van het bruisende centrum van Oldenzaal met voorzieningen zoals supermarkten Aldi en Lidl, een gezondheidscentrum en een dierenspeciaalzaak in de directe omgeving. De bereikbaarheid is uitstekend en er zijn ruime parkeermogelijkheden voor de deur. Indien gewenst is splitsing in twee afzonderlijke kantoorunits mogelijk. Is dit de ideale thuisbasis voor jouw bedrijf?
Indeling en oppervlakten
De totale verhuurbare oppervlakte van het onderhavige object bedraagt circa 275 m² en is als volgt onderverdeeld:
Entree (via een centrale hal), meterkast, vrij indeelbare kantoorruimten v.v. veel daglichttoetreding, separate spreekkamers, pantry/berging, toiletruimten en een keukenblok.
** De oppervlakte is gemeten door verhurend makelaar. De opgegeven metrage is derhalve indicatief; er kunnen geen rechten aan worden ontleend noch kan er sprake zijn van enige verrekening achteraf. **
Voorzieningen
Het object wordt opgeleverd met o.a. de volgende voorzieningen:
• blokverwarming;
• airconditioning (ter overname van de huidige huurder);
• systeemplafonds met (ingebouwde) verlichtingsarmaturen (geen eigendom van verhuurder);
• vloerbedekking (ter overname van de huidige huurder);
• sanitaire voorzieningen;
• pantry;
• data bekabeling;
• VDSL-aansluiting;
• glasvezel.
Parkeergelegenheid:
Ruime parkeermogelijkheden voor de deur.
Locatie en bereikbaarheid:
De ruimte is gelegen aan de Haverstraat, met het stadscentrum van Oldenzaal op loopafstand. Het object is uitstekend bereikbaar zowel voor eigen vervoer als openbaar vervoer.
Huurprijs:
De huurprijs bedraagt € 29.900,- per jaar, exclusief BTW en exclusief kosten verwarming/water/elektra.
Indexering:
Jaarlijks, voor het eerst één jaar na huuringangsdatum, op basis van de wijziging van het maandprijsindexcijfer volgens de consumentenprijsindex (CPI), reeks CPI - Alle huishoudens (2015=100), gepubliceerd door het Centraal Bureau voor de Statistiek (CBS). De huurprijs zal nimmer minder bedragen dan de huurprijs van het voorafgaande jaar.
Huurtermijn:
In overleg.
Zekerheidsstelling:
Doorlopende bankgarantie of waarborgsom ter grootte van 3 maanden huur.
Aanvaarding:
In overleg.
** Collegiaal in de verhuur met HOME makelaars **
Wij denken graag met u mee. Maak een afspraak om ter plaatse te gaan kijken en om de verdere mogelijkheden te bespreken!
Disclaimer
De informatie is door ons met de nodige zorgvuldigheid samengesteld, echter aan de inhoud hiervan kunnen geen rechten worden ontleend. Alle opgegeven maten en oppervlakten zijn indicatief, kunnen afwijken van de werkelijke situatie en zijn uitsluitend bedoeld om een indruk te geven van de indeling. Onzerzijds wordt geen enkele aansprakelijkheid aanvaard voor enige onvolledigheid, onjuistheid of anderszins, dan wel de gevolgen daarvan.
Bereikbaarheid
- De Molenkamp 4 min. lopen
- Oliemolenstraat 4 min. lopen
- Vos de Waelstraat 5 min. lopen
- Richter Bosstraat 5 min. lopen
- Hofmeijerstraat 8 min. lopen