Vogelstruys | Hullenbergweg 278 230 - 2.243 m2 kantoorruimte te huur in Amsterdam
Kenmerken
| Functie | Kantoorruimte |
| Wijk / Buurt | Amstel III/Bullewijk |
1 eenheid beschikbaar
1 eenheid beschikbaar
- Eenheid
- Oppervlakte
- Huurprijs
- Gebruik
- 1
- Vanaf 230 m2 tot 2.243 m2
- € 205,00 m²/jaar
- Kantoorruimte
| OPPERVLAKTE | Vanaf 230 m2 tot 2.243 m2 |
| HUURPRIJS | € 205,00 m²/jaar |
| GEBRUIK | Kantoorruimte |
Omschrijving
Omschrijving
OBJECT
Het moderne kantoorgebouw Vogelstruys is gelegen aan de Hullenbergweg 278-308 in Amsterdam Zuidoost. Het totaal verhuurbare vloeroppervlakte van het gebouw bedraagt circa 7.405 m². Door de L-vorm en het feit dat het gebouw bestaat uit twee bouwdelen maakt dat het buitengewoon geschikt is voor deelverhuur. De begane grond biedt, naast een representatieve entree met een centrale bemande receptie, veel levendigheid door verschillende faciliteiten zoals, een bedrijfsrestaurant, koffiebar en vergadercentrum.
LOCATIE
Vogelstruys ligt in het bedrijfs- en kantorengebied Amsterdam Zuidoost. Amsterdam Zuidoost heeft zich in de afgelopen jaren gemanifesteerd tot een belangrijk zakencentrum in Amsterdam. Naast de renovatie van een aantal grote kantoorgebouwen, zullen er op korte termijn ook woningen worden gerealiseerd rondom NS station Bijlmer ArenA. Door de toekomstige combinatie van werken, wonen en winkelen zal het nu al populaire gebied
alleen nog maar aantrekkelijker worden voor bedrijfshuisvesting.
In de directe omgeving bevinden zich de (hoofd) kantoren van Graydon, Honeywell, Europeesche Verzekeringen, British Telecom, Deutsche Bank en ING Bank. Op enkele minuten loopafstand is de Johan Cruijff Arena met het ondergelegen transferium, alsmede winkelcentrum De Amsterdamse Poort gelegen.
OMGEVING AMSTEL III
Het kantoorgebouw ‘Vogelstruys’ bevindt zich in het kantorenpark Amstel III. Amstel III is een groot gebied langs het spoor tussen de Johan Cruijff ArenA en het Amsterdam UMC - Locatie AMC. Met de metrostations Bullewijk en Holendrecht als toegangspoorten. Midden door het gebied loopt de snelweg A9.
Amstel III bestaat uit 2 type gebieden: een typisch bedrijventerrein langs de A2 waar onder andere autodealers zitten en een kantorengebied langs het spoor. Dit gebied verandert de komende jaren in een levendige stadswijk waar je plezierig kunt wonen, werken én ontspannen. Tot 2027 worden hier zo’n 5.000 woningen gebouwd. Hier horen ook toegankelijke openbare voorzieningen en goede en mooie openbare ruimte bij. Zo komen er winkels, veilige routes voor fietsers en voetgangers, meer groen en bankjes en ruimte voor sport en recreatie.
Op het bedrijventerrein blijft juist ruimte voor bedrijven. Hier komen geen woningen.
OPPERVLAKTE
Voor verhuur is circa 2.243 m² v.v.o. kantoorruimte beschikbaar voor verhuur, verdeeld als volgt:
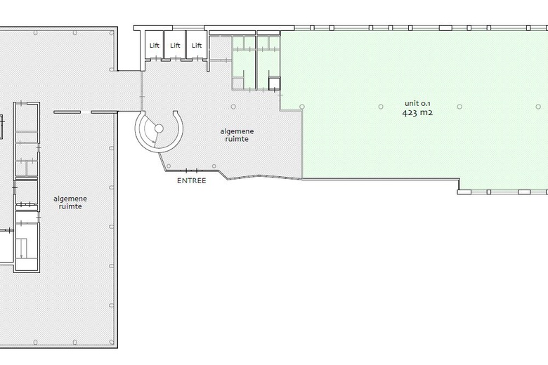
Begane grond - Unit 0.1 ca. 423 m² v.v.o. kantoorruimte
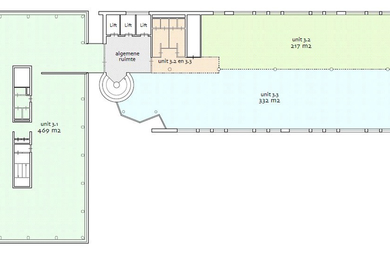
3e verdieping - Unit 3.3 ca. 332 m² v.v.o. kantoorruimte
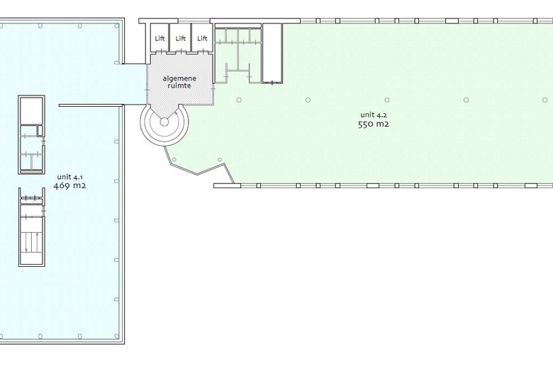
4e verdieping - Unit 4.1 ca. 469 m² v.v.o. kantoorruimte
4e verdieping - Unit 4.2 ca. 550 m² v.v.o. kantoorruimte
7e verdieping - Unit 7.1 ca. 469 m² v.v.o. kantoorruimte
Deelverhuur is mogelijk vanaf circa 230 m² v.v.o. kantoorruimte.
PARKEREN
Op het eigen afgesloten parkeerterrein is er meer dan voldoende parkeergelegenheid.
De parkeernorm bedraagt 1:85 m² v.v.o. kantoorruimte.
HUURPRIJZEN
Kantoorruimte: € 205,- per m² v.v.o. per jaar te vermeerderen met BTW;
Parkeren: € 1.950,- per plaats per jaar te vermeerderen met BTW.
Servicekosten:
NTB
OPLEVERINGSNIVEAU
Algemene ruimte:
- Centrale bemande receptie;
- Bedrijfsrestaurant;
- Mindervaliden toilet;
- Personenlift.
Kantoorruimte:
- Geëgaliseerde vloer (tapijt gereed)
- Systeemplafonds voorzien van LED verlichtingsarmaturen;
- Pantry op iedere verdieping;
- Regelbare zonwering;
- Mechanische ventilatie met topkoeling
- Kabelgoten ten behoeve van elektra en data, voorzien van WCD’s.
ENERGIELABEL
Het kantoorgebouw beschikt over energielabel C.
BEREIKBAARHEID
Per auto:
Vogelstruys bevindt zich vrijwel direct naast de afslag A9. Ook via de A2 en A10 is Vogelstruys goed bereikbaar.
Per openbaar vervoer:
Per openbaar vervoer is de bereikbaarheid zeer goed. Binnen enkele minuten loopafstand bevinden zich de bus, trein (Station Bijlmer-ArenA) en metro (halte Bullewijk).
Trein:
Vanaf NS station Bijlmer ArenA Amsterdam zijn Amsterdam Centraal Station, Amsterdam RAI, Amsterdam Zuid, Amsterdam Schiphol Airport, Zaandam, Alkmaar, Utrecht, Den Haag, Rotterdam, Eindhoven, Amersfoort, Deventer en vele andere bestemmingen eenvoudig te bereiken.
Metro:
Het NS station Amsterdam Bijlmer ArenA is een stop van de metrolijnen 50 (Amsterdam Isolatorweg – NS station Amsterdam Zuid – Gein) en 54 (NS station Amsterdam Centraal – Gein). Hierdoor zijn gemiddeld iedere 8 minuten - in beide richtingen – metroverbindingen mogelijk. Metro station Bullewijk bevindt zich tevens op loopafstand.
Meer informatie vindt u in onze brochure of neem contact met ons op via .
Bereikbaarheid
- Bullewijk 4 min. lopen
- Karspeldreef 6 min. lopen
- Laarderhoogtweg 6 min. lopen
- Hakfort 8 min. lopen
- Haardstee 8 min. lopen