Marconiweg 13 - 15
53 - 560 m2 kantoorruimte te huur in Zeewolde
Kenmerken
| Huurprijs | € 95 m²/jaar |
| Functie | Kantoorruimte |
| Onderhoud buiten | Uitstekend |
| Onderhoud binnen | Uitstekend |
| Wijk / Buurt | Trekkersveld |
| Bedrijventerrein | TREKKERSVELD I EN II |
1 eenheid beschikbaar
1 eenheid beschikbaar
- Eenheid
- Oppervlakte
- Huurprijs
- Gebruik
- 1
- Vanaf 53 m2 tot 560 m2
- € 95 m²/jaar
- Kantoorruimte
| OPPERVLAKTE | Vanaf 53 m2 tot 560 m2 |
| GEBRUIK | Kantoorruimte |
Omschrijving
Omschrijving
De locatie ligt op een grootschalig bedrijventerrein en is goed bereikbaar via de provinciale wegen. Trekkersveld is een bedrijventerrein met een heel divers bedrijvenaanbod variërend van klein tot zeer groot op logistiek gericht. In de directe omgeving zijn diverse bedrijven gehuisvest waaronder o.a. Bakker Logistiek, Slokker Innovate, Wolter Koops en KING Nonwovens.
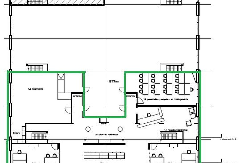
‘Turn-key’ Kantoorruimte beschikbaar op de verdieping van het bedrijfsgebouw, de kantoorruimtes maken onderdeel uit van een kantoorverdieping. De kantoorruimtes zijn verdeeld over verschillende ruimtes, welke allemaal voorzien van royale daglichttoetreding en een volledig afgebouwde staat. Ligging en bereikbaarheid:Gesitueerd op bedrijventerrein Trekkersveld te Zeewolde. Trekkersveld is een grootschalig bedrijventerrein net buiten het dorp Zeewolde, op het bedrijventerrein zijn grotendeels kleinschalige bedrijfsunits gerealiseerd. De bereikbaarheid is goed middels de uitvalswegen N305 (Dronten-Almere), de N302 (Harderwijk-Lelystad) en de A28 (Amersfoort-Zwolle).
Beschikbaarheid:
Voor verhuur is beschikbaar circa 560 m² kantoorruimte gelegen op de eerste verdieping. Deelverhuur vanaf 53 m² is bespreekbaar. De metrage is inclusief omslag algemene ruimte. Opleveringsniveau:
De bedrijfsunit zal in de huidige staat opgeleverd worden inclusief de navolgende voorzieningen:
- gedeelde trapopgang met ruimte lichtinval;
- CV installatie met radiatoren;
- systeemplafond met verlichtingsarmaturen (verdieping);
- airco units (deels);
- afgewerkte wanden;
- kabelgoten voorzien van bekabeling;
- gedeelde kantine;
- gedeelde toiletten. Aanvangshuurprijs:
De aanvangshuurprijs bedraagt € 95,- per m² per jaar exclusief BTW. Servicekosten:
Huurder is een voorschotbedrag servicekosten verschuldigd ter grootte van € 30,- per m² per jaar exclusief BTW, inzake de navolgende door verhuurder te verzorgen leveringen en diensten:
- levering gas, water en elektra;
- buitenonderhoud;
- onderhoud CV ketel;
- onderhoud airco;
- inspectie brandblussers;
- inspectie alarm. Parkeergelegenheid:
Per unit is in overleg 1 parkeerplaats op voorgelegen terrein beschikbaar. Bestemming:
Voor de units is de bestemming Bedrijf 1 tot en met categorie 3.2 aangewezen. Aanvaarding:
In overleg. Huurtermijn:
In overleg. Zekerheidsstelling:
Bij ondertekening van de huurovereenkomst wordt een bankgarantie of waarborgsom verlangd ter grootte van drie maanden huurbetalingsverplichting, vermeerderd met de servicekosten en de verschuldigde BTW over dit bedrag. Huurprijsindexering:
Jaarlijks, voor het eerst één jaar na de huuringangsdatum, wordt de laatst geldende huurprijs verhoogd op basis van het maandprijsindexcijfer voor de gezinsconsumptie CPI Alle Huishoudens (2015 = 100), gepubliceerd door het Centraal Bureau voor de Statistiek (CBS). De huurprijs zal géén daling ondergaan. Huurovereenkomst:
De op te stellen huurovereenkomst is conform de overeenkomst die door de Raad voor Onroerende Zaken in februari 2015 is vastgesteld en zoals gehanteerd door de Nederlandse Vereniging van Makelaars (NVM) met de bijbehorende algemene bepalingen. BTW-bepaling:
Huurder en verhuurder verklaren uitdrukkelijk dat bij het vaststellen van de huurprijs uitgangspunt is geweest dat huurder blijvend voldoet aan de criteria
welke gesteld zijn of worden voor een belaste verhuur ex. Artikel 11, lid 1 letter b, sub 5, Wet op de omzetbelasting 1968. Indien de belaste verhuur beëindigd wordt dan wel een verzoek tot belaste verhuur niet wordt ingewilligd omdat de huurder niet meer c.q. niet aan de gestelde eisen voldoet, wordt de overeengekomen kale huurprijs, exclusief BTW, zodanig verhoogd dat de verhuurder volledig gecompenseerd wordt voor de BTW op de toerekenbare investeringen en kosten welke hij aan de fiscus moet terugbetalen c.q. niet (meer) in aftrek kan brengen. Onder- / overmaat metrage:
Van het gebouw is geen NEN 2580 meetrapport beschikbaar. De genoemde oppervlakten zijn slechts indicatief. Eventuele afwijkingen hierin vormen geen aanleiding tot verrekening. Gunning:
De verhuurder / eigenaar behoudt zich het recht van gunning voor.
Bijlagen
Aanbevolen voor u
Bekijk
kantoorruimte in Zeewolde
of bekijk deze panden: