Middenburcht 136 25 - 62 m2 kantoorruimte te huur in Vleuten
Kenmerken
| Huurprijs | € 549 /maand |
| Functie | Kantoorruimte |
| Wijk / Buurt | Vleuterweide-Noord/Oost/Centrum |
1 eenheid beschikbaar
1 eenheid beschikbaar
- Eenheid
- Oppervlakte
- Huurprijs
- Gebruik
- 1
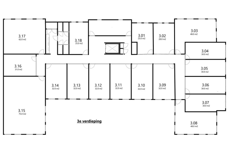
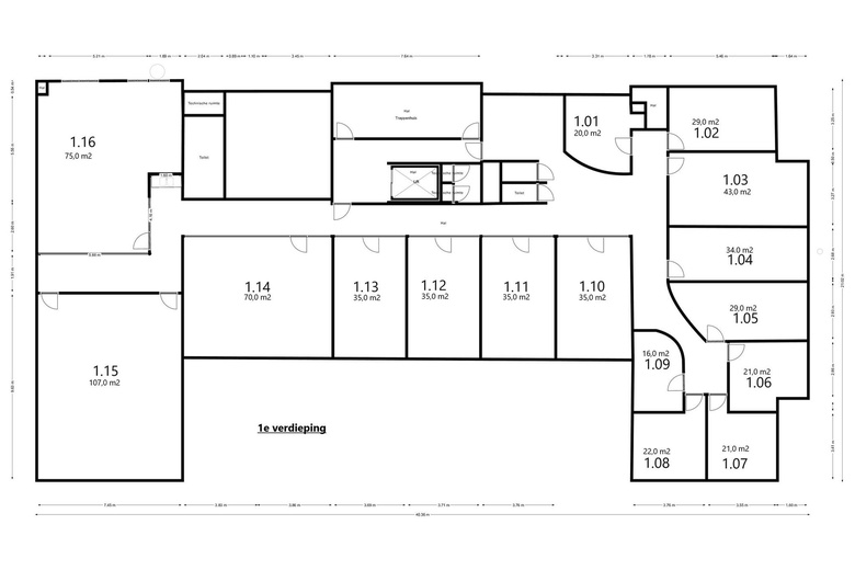
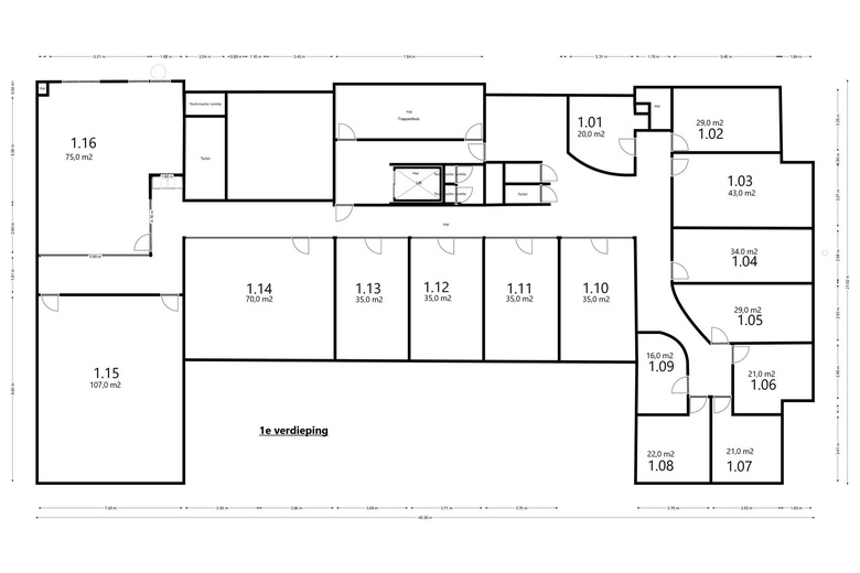
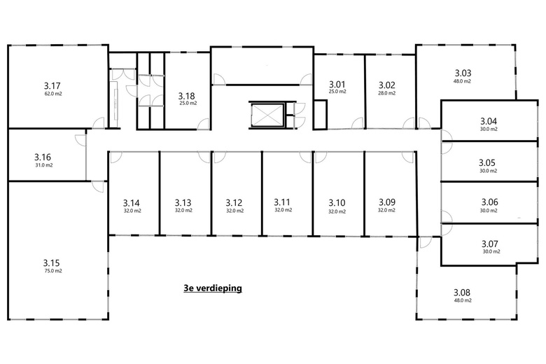
- Vanaf 25 m2 tot 62 m2
- € 549 /maand
- Kantoorruimte
| OPPERVLAKTE | Vanaf 25 m2 tot 62 m2 |
| GEBRUIK | Kantoorruimte |
Omschrijving
Omschrijving
Op zoek naar een hoogwaardig kantoor in de omgeving van Utrecht? Per direct bieden wij verschillende full-service kantoorruimtes aan in dit bedrijfsverzamelgebouw in Vleuterweide. De kantoren zijn te huur tegen flexibele voorwaarden en in verschillende formaten. De kantoren variëren in grootte en zijn te huur vanaf 1 tot 20 werkplekken. Het is ook mogelijk om verschillende kantoren met elkaar te schakelen, zodat je kantoorruimte flexibel met je bedrijf mee kan groeien.
Oplevering
Het kantoorgebouw is voorzien van alle benodigde kantoorgemakken voor de huidige ondernemer. Zo is het kantoor 24/7 toegankelijk met beveiligde toegang en zijn er genoeg informele/formele vergaderruimtes/coachruimtes aanwezig. De vergaderruimtes en coachruimtes zijn te huren met een gebruiksvriendelijke mobiele app, die naast het boeken van ruimtes ook gebruikt wordt voor netwerken en sociale evenementen. Naast de al genoemde faciliteiten beschikt het gebouw over glasvezel internet, WiFi, een klimaatsysteem, energie label A en is er een gezamenlijke pantry aanwezig. Het is ook mogelijk om te parkeren op locatie, dit is in de omgeving gratis en je fiets parkeer je in de stalling voor de deur.
Locatie
De Utrechtse wijk Vleuterweide ligt centraal in Nederland en is goed bereikbaar met de auto. Element Offices Vleuterweide bevindt zich midden in het centrum, met alle winkels (e.g. Albert Heijn, Etos en HEMA) en horeca binnen handbereik. In het gebouw zit de juiste balans tussen zakelijke en zorgdienstverleners. Zo profiteer je als huurder van een breed netwerk met veel verschillende expertises.
Bereikbaarheid
Per OV: de locatie is goed bereikbaar met het openbaar vervoer. Busstation Vleutwerweide-Centrum is op enkele minuten lopen verwijderd van het gebouw. Vanaf deze halte zijn er verschillende buslijnen met onder andere aansluiting naar NS-Station Vleuten en Utrecht Centraal Station.
Per auto: Door de goede ligging is het met eigen vervoer zeer goed bereikbaar. De A12 en A2 hebben een gunstige ligging t.o.v. het gebouw
Bereikbaarheid
- Vleuterweide-Centrum 4 min. lopen
- De Tuinlanden 6 min. lopen
- Eyckenstein 7 min. lopen