Nassaustraat 1 f 47 - 124 m2 kantoorruimte te huur in Waalre
Kenmerken
| Huurprijs | Prijs op aanvraag |
| Functie | Kantoorruimte |
| Onderhoud buiten | Uitstekend |
| Onderhoud binnen | Uitstekend |
| Wijk / Buurt | Aalst |
2 eenheden beschikbaar
2 eenheden beschikbaar
- Eenheid
- Oppervlakte
- Huurprijs
- Gebruik
Eenheid omschrijving
Gezondheidscentrum Brabantia, gelegen aan de historische Brabantialaan in Aalst-Waalre, is een modern en warm centrum waar medische en paramedische zorgprofessionals onder één dak samenwerken. Hier vindt u zorg op maat, in een omgeving waar persoonlijke aandacht en multidisciplinaire samenwerking centraal staan. En dat alles op 2 minuten vanaf de snelweg A2.
Parkeren? Geen probleem. Voor de deur vindt u invalideparkeerplaatsen en in de nabije omgeving is ruim voldoende gratis parkeergelegenheid.
De volgende ruimten zijn nog te huur:
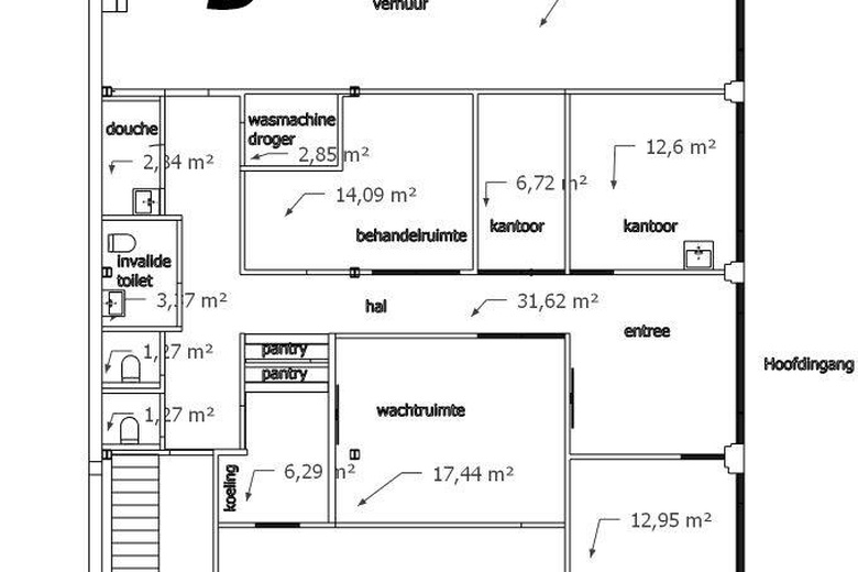
Benedenverdieping (VVO * € 225,- per m2)
A: effectieve ruimte 47 m2 (VVO=63,36 m2) = € 1188,- per maand (met eigen toilet)
B: effectieve ruimte 47 m2 (VVO=63,36 m2) = € 1188,- per maand (met eigen toilet)
De ruimten A en B kunnen volledig autonoom gebruikt worden, elk met een eigen ingang. Ook is het mogelijk om gebruik te maken van de centrale ingang, inclusief de centrale wachtkamer en drankvoorziening.
Bovenverdieping (VVO * € 175 per m2)
C: effectieve ruimte 46,76 m2 (VVO=63,38) = € 924,29 per maand
D: effectieve ruimte 38,53 m2 (VVO=51,94) = € 757,46 per maand
E: effectieve ruimte 35,08 m2 (VVO=47,29) = € 689,65 = verhuurd
G: effectieve ruimte 92,15 m2 (VVO=124,22) = € 1811,54 per maand
Kosten zijn inclusief service en energiekosten en onderstaande faciliteiten
Borg huur: 2 maanden
Contract: 1 jaar
Faciliteiten
- invalidenparkeerplaats voor de deur
- snel algemeen internet
- gratis koffie, thee, chocolademelk en normaal, warm en koud water voor huurder als klanten/patiënten
- invertor verwarming en airco
- douche
- ruimte A en B hebben een eigen toilet
- pantry
- aankondiging van uw bedrijf aan de binnen en buitenzijde
- Voldoende elektrische aansluitingen (stopcontacten, krachtstroom indien nodig)
- Indien gewenst aparte elektriciteitsmeters voor verbruik door huurder
- Internetbekabeling
- Wifi-netwerk
- Alarmsysteem (inbraakdetectie)
- Toegangscontrole
- Intercomsysteem
- Branddetectie (rookmelders, CO-detectoren)
- Brandhaspels, -blussers en nooduitgangen
- Vluchtwegverlichting en noodverlichting
- Aparte toiletten voor mannen/vrouwen
- Doucheruimte
- Wasbakken met warm/koud water
- Zonnepanelen
- Laadpalen voor elektrische wagens (optioneel)
Goedkeuring
Het bovenstaande is onder finaal voorbehoud van de eigenaar.
Disclaimer: Ondanks dat deze publicatie met de grootst mogelijke zorgvuldigheid is samengesteld is de Online Bedrijfsmakelaar BV niet aansprakelijk te stellen voor onjuiste of onvolledige informatie die in deze publicatie vermeld staan. Aan deze gegevens kunnen geen rechten worden ontleend.
====================
Alle beschikbare informatie ontvangen?
Benieuwd naar alle beschikbare informatie over het pand? Vraag dan nu, onder de grote contactbutton, de gratis objectbrochure van Nassaustraat 1F in Waalre aan en ontvang de objectbrochure binnen 5 minuten in uw mailbox. Uiteraard kunt u ook direct een geheel vrijblijvende bezichtiging met de beheerder van het pand inplannen.
Eenheid omschrijving
Gezondheidscentrum Brabantia, gelegen aan de historische Brabantialaan in Aalst-Waalre, is een modern en warm centrum waar medische en paramedische zorgprofessionals onder één dak samenwerken. Hier vindt u zorg op maat, in een omgeving waar persoonlijke aandacht en multidisciplinaire samenwerking centraal staan. En dat alles op 2 minuten vanaf de snelweg A2.
Parkeren? Geen probleem. Voor de deur vindt u invalideparkeerplaatsen en in de nabije omgeving is ruim voldoende gratis parkeergelegenheid.
De volgende ruimten zijn nog te huur:
Benedenverdieping (VVO * € 225,- per m2)
A: effectieve ruimte 47 m2 (VVO=63,36 m2) = € 1188,- per maand (met eigen toilet)
B: effectieve ruimte 47 m2 (VVO=63,36 m2) = € 1188,- per maand (met eigen toilet)
De ruimten A en B kunnen volledig autonoom gebruikt worden, elk met een eigen ingang. Ook is het mogelijk om gebruik te maken van de centrale ingang, inclusief de centrale wachtkamer en drankvoorziening.
Bovenverdieping (VVO * € 175 per m2)
C: effectieve ruimte 46,76 m2 (VVO=63,38) = € 924,29 per maand
D: effectieve ruimte 38,53 m2 (VVO=51,94) = € 757,46 per maand
E: effectieve ruimte 35,08 m2 (VVO=47,29) = € 689,65 = verhuurd
G: effectieve ruimte 92,15 m2 (VVO=124,22) = € 1811,54 per maand
Kosten zijn inclusief service en energiekosten en onderstaande faciliteiten
Borg huur: 2 maanden
Contract: 1 jaar
Faciliteiten
- invalidenparkeerplaats voor de deur
- snel algemeen internet
- gratis koffie, thee, chocolademelk en normaal, warm en koud water voor huurder als klanten/patiënten
- invertor verwarming en airco
- douche
- ruimte A en B hebben een eigen toilet
- pantry
- aankondiging van uw bedrijf aan de binnen en buitenzijde
- Voldoende elektrische aansluitingen (stopcontacten, krachtstroom indien nodig)
- Indien gewenst aparte elektriciteitsmeters voor verbruik door huurder
- Internetbekabeling
- Wifi-netwerk
- Alarmsysteem (inbraakdetectie)
- Toegangscontrole
- Intercomsysteem
- Branddetectie (rookmelders, CO-detectoren)
- Brandhaspels, -blussers en nooduitgangen
- Vluchtwegverlichting en noodverlichting
- Aparte toiletten voor mannen/vrouwen
- Doucheruimte
- Wasbakken met warm/koud water
- Zonnepanelen
- Laadpalen voor elektrische wagens (optioneel)
Goedkeuring
Het bovenstaande is onder finaal voorbehoud van de eigenaar.
Disclaimer: Ondanks dat deze publicatie met de grootst mogelijke zorgvuldigheid is samengesteld is de Online Bedrijfsmakelaar BV niet aansprakelijk te stellen voor onjuiste of onvolledige informatie die in deze publicatie vermeld staan. Aan deze gegevens kunnen geen rechten worden ontleend.
====================
Alle beschikbare informatie ontvangen?
Benieuwd naar alle beschikbare informatie over het pand? Vraag dan nu, onder de grote contactbutton, de gratis objectbrochure van Nassaustraat 1F in Waalre aan en ontvang de objectbrochure binnen 5 minuten in uw mailbox. Uiteraard kunt u ook direct een geheel vrijblijvende bezichtiging met de beheerder van het pand inplannen.
| OPPERVLAKTE | Vanaf 47 m2 tot 124 m2 |
| GEBRUIK | Kantoorruimte |
| OPPERVLAKTE | Vanaf 47 m2 tot 124 m2 |
| GEBRUIK | Zorg |
Omschrijving
Omschrijving
Gezondheidscentrum Brabantia, gelegen aan de historische Brabantialaan in Aalst-Waalre, is een modern en warm centrum waar medische en paramedische zorgprofessionals onder één dak samenwerken. Hier vindt u zorg op maat, in een omgeving waar persoonlijke aandacht en multidisciplinaire samenwerking centraal staan. En dat alles op 2 minuten vanaf de snelweg A2.
Parkeren? Geen probleem. Voor de deur vindt u invalideparkeerplaatsen en in de nabije omgeving is ruim voldoende gratis parkeergelegenheid.
De volgende ruimten zijn nog te huur:
Benedenverdieping (VVO * € 225,- per m2)
A: effectieve ruimte 47 m2 (VVO=63,36 m2) = € 1188,- per maand (met eigen toilet)
B: effectieve ruimte 47 m2 (VVO=63,36 m2) = € 1188,- per maand (met eigen toilet)
De ruimten A en B kunnen volledig autonoom gebruikt worden, elk met een eigen ingang. Ook is het mogelijk om gebruik te maken van de centrale ingang, inclusief de centrale wachtkamer en drankvoorziening.
Bovenverdieping (VVO * € 175 per m2)
C: effectieve ruimte 46,76 m2 (VVO=63,38) = € 924,29 per maand
D: effectieve ruimte 38,53 m2 (VVO=51,94) = € 757,46 per maand
E: effectieve ruimte 35,08 m2 (VVO=47,29) = € 689,65 = verhuurd
G: effectieve ruimte 92,15 m2 (VVO=124,22) = € 1811,54 per maand
Kosten zijn inclusief service en energiekosten en onderstaande faciliteiten
Borg huur: 2 maanden
Contract: 1 jaar
Faciliteiten
- invalidenparkeerplaats voor de deur
- snel algemeen internet
- gratis koffie, thee, chocolademelk en normaal, warm en koud water voor huurder als klanten/patiënten
- invertor verwarming en airco
- douche
- ruimte A en B hebben een eigen toilet
- pantry
- aankondiging van uw bedrijf aan de binnen en buitenzijde
- Voldoende elektrische aansluitingen (stopcontacten, krachtstroom indien nodig)
- Indien gewenst aparte elektriciteitsmeters voor verbruik door huurder
- Internetbekabeling
- Wifi-netwerk
- Alarmsysteem (inbraakdetectie)
- Toegangscontrole
- Intercomsysteem
- Branddetectie (rookmelders, CO-detectoren)
- Brandhaspels, -blussers en nooduitgangen
- Vluchtwegverlichting en noodverlichting
- Aparte toiletten voor mannen/vrouwen
- Doucheruimte
- Wasbakken met warm/koud water
- Zonnepanelen
- Laadpalen voor elektrische wagens (optioneel)
Goedkeuring
Het bovenstaande is onder finaal voorbehoud van de eigenaar.
Disclaimer: Ondanks dat deze publicatie met de grootst mogelijke zorgvuldigheid is samengesteld is de Online Bedrijfsmakelaar BV niet aansprakelijk te stellen voor onjuiste of onvolledige informatie die in deze publicatie vermeld staan. Aan deze gegevens kunnen geen rechten worden ontleend.
====================
Alle beschikbare informatie ontvangen?
Benieuwd naar alle beschikbare informatie over het pand? Vraag dan nu, onder de grote contactbutton, de gratis objectbrochure van Nassaustraat 1F in Waalre aan en ontvang de objectbrochure binnen 5 minuten in uw mailbox. Uiteraard kunt u ook direct een geheel vrijblijvende bezichtiging met de beheerder van het pand inplannen.
Bereikbaarheid
- De Leesakker 4 min. lopen
- Maarten Trompstraat 6 min. lopen
- Den Hof 7 min. lopen
- Kerkhoflaan 7 min. lopen
- Burgemeester Mollaan 8 min. lopen