Oud-Eemnesserweg 5 H 16 - 113 m2 kantoorruimte te huur in Baarn
Kenmerken
| Huurprijs | € 99 m²/jaar |
| Functie | Kantoorruimte |
| Onderhoud buiten | Uitstekend |
| Onderhoud binnen | Uitstekend |
| Wijk / Buurt | Centrum |
1 eenheid beschikbaar
1 eenheid beschikbaar
- Eenheid
- Oppervlakte
- Huurprijs
- Gebruik
Eenheid omschrijving
Moderne kantoorunits beschikbaar op bedrijvenpark "Koot” aan de Oud – Eemnesserweg in Baarn. Het bedrijvenpark is gelegen in een rustige groene omgeving, maar heeft wel een uitstekende bereikbaarheid. De op- en afritten van de A1 (Amsterdam – Amersfoort) liggen namelijk op slechts 250 meter. Via de A1 is eveneens de A27 (Almere – Breda) binnen enkele minuten te bereiken.
De aangeboden kantoorunits hebben samen een oppervlakte van circa. 113 m2 BVO en is door haar indeling en uitstraling uitermate geschikt voor bedrijven actief in het midden- en kleinbedrijf. Door haar moderne uitstraling en het prachtige uitzicht zijn de kantoorunits absoluut een visitekaartje voor haar gebruiker.
Metrages (BVO)
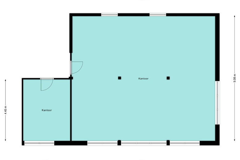
Kantoorunit 1: circa. 16 m2 BVO
Kantoorunit 2: circa. 97 m2 BVO
Kantoorunit 1&2: circa. 113 m2 BVO
Afwijkende metrages zijn mogelijk.
Parkeren
Op het volledig omheinde buitenterrein zijn voldoende parkeerplaatsen beschikbaar. In de toekomst worden er laadpalen gerealiseerd. Het bedrijventerrein wordt buiten kantooruren afgesloten middels elektrische toegangspoorten. Huurders hebben 24/7 toegang tot het terrein. Het terrein is voorzien van camerebewaking.
Bestemmingsplan
Volgens het actuele bestemmingsplan heeft het perceel een “Artikel 5: Bedrijf” bestemming. Bedrijven die vallen onder de milieu categorieën 1 en 2 zijn toegestaan. Als gebruiker bent u zelf verantwoordelijk om navraag te doen naar het actuele bestemmingsplan bij de gemeente. Aan deze omschrijving kunnen geen rechten worden ontleend.
Voorzieningen kantoorunit:
- Airconditioning en mechanische ventilatie
- Brandpreventiemiddelen
- Camerabeveiliging
- Aluminium kozijnen met dubbele beglazing
- Glasvezelverbinding
- Lamellen
- Stucwerkwanden
- Systeemplafond met inbouwverlichting
- Wandradiatoren
- Zonwering
Gemeenschappelijke voorzieningen
De kantoorunit maakt onderdeel uit van een groter bedrijfsverzamelgebouw. Als gebruiker van de kantoorunit kunt u gebruik maken van de gemeenschappelijke voorzieningen zoals onder andere de pantry, vergaderruimte, sanitaire voorzieningen, deur met intercom en de afvalcontainers. In de toekomst zal bedrijvenpark "Koot" energieneutraal worden.
Huurcondities
Huurprijs: € 99,- per jaar m² per exclusief btw.
Huurtermijn: In overleg, minimaal 1 jaar.
Servicekosten: In overleg
Aanvaarding: Per direct.
Opzegtermijn: 3 maanden.
Zekerheidstelling: Waarborgsom: ter grootte van één maand huur.
Huurindexering: Jaarlijks overeenkomstig het maand prijsindexcijfer volgens het consumentenprijsindexcijfer (CPI) reeks CPI alle huishoudens (2006=100) gepubliceerd door het Centraal Bureau voor de Statistiek (CBS). De huurprijs zal nimmer minder bedragen dan de huurprijs van het voorafgaande jaar. Indexatie voor het eerst Januari 2023 en vervolgens jaarlijks.
BTW: Indien huurder niet aan het "90%-criterium”(aandeel belaste prestaties) voldoet, zal er van rechtswege sprake zijn van omzetbelasting vrijgestelde verhuur. Als dan wordt de overeengekomen kale huurprijs, exclusief omzetbelasting, zodanig verhoogd, dat het voor verhuurder ontstane financiële nadeel wordt gecompenseerd.
Huurcontract: R.O.Z.-model, huurovereenkomst kantoorruimte en andere bedrijfsruimte in de zin van artikel 7:230a BW met de benodigde aanvullingen.
Goedkeuring
Het bovenstaande is onder finaal voorbehoud van de eigenaar.
Disclaimer: Ondanks dat deze publicatie met de grootst mogelijke zorgvuldigheid is samengesteld is de Online Bedrijfsmakelaar BV niet aansprakelijk te stellen voor onjuiste of onvolledige informatie die in deze publicatie vermeld staan. Aan deze gegevens kunnen geen rechten worden ontleend.
====================
Alle beschikbare informatie ontvangen?
Benieuwd naar alle beschikbare informatie over het pand? Vraag dan nu, onder de grote contactbutton, de gratis objectbrochure van de Oud- Eemnesserweg 5 H in Baarn aan en ontvang de objectbrochure binnen 5 minuten in uw mailbox. Uiteraard kunt u ook direct een geheel vrijblijvende bezichtiging met de beheerder van het pand inplannen.
| OPPERVLAKTE | Vanaf 16 m2 tot 113 m2 |
| GEBRUIK | Kantoorruimte |
Omschrijving
Omschrijving
Moderne kantoorunits beschikbaar op bedrijvenpark "Koot” aan de Oud – Eemnesserweg in Baarn. Het bedrijvenpark is gelegen in een rustige groene omgeving, maar heeft wel een uitstekende bereikbaarheid. De op- en afritten van de A1 (Amsterdam – Amersfoort) liggen namelijk op slechts 250 meter. Via de A1 is eveneens de A27 (Almere – Breda) binnen enkele minuten te bereiken.
De aangeboden kantoorunits hebben samen een oppervlakte van circa. 113 m2 BVO en is door haar indeling en uitstraling uitermate geschikt voor bedrijven actief in het midden- en kleinbedrijf. Door haar moderne uitstraling en het prachtige uitzicht zijn de kantoorunits absoluut een visitekaartje voor haar gebruiker.
Metrages (BVO)
Kantoorunit 1: circa. 16 m2 BVO
Kantoorunit 2: circa. 97 m2 BVO
Kantoorunit 1&2: circa. 113 m2 BVO
Afwijkende metrages zijn mogelijk.
Parkeren
Op het volledig omheinde buitenterrein zijn voldoende parkeerplaatsen beschikbaar. In de toekomst worden er laadpalen gerealiseerd. Het bedrijventerrein wordt buiten kantooruren afgesloten middels elektrische toegangspoorten. Huurders hebben 24/7 toegang tot het terrein. Het terrein is voorzien van camerebewaking.
Bestemmingsplan
Volgens het actuele bestemmingsplan heeft het perceel een “Artikel 5: Bedrijf” bestemming. Bedrijven die vallen onder de milieu categorieën 1 en 2 zijn toegestaan. Als gebruiker bent u zelf verantwoordelijk om navraag te doen naar het actuele bestemmingsplan bij de gemeente. Aan deze omschrijving kunnen geen rechten worden ontleend.
Voorzieningen kantoorunit:
- Airconditioning en mechanische ventilatie
- Brandpreventiemiddelen
- Camerabeveiliging
- Aluminium kozijnen met dubbele beglazing
- Glasvezelverbinding
- Lamellen
- Stucwerkwanden
- Systeemplafond met inbouwverlichting
- Wandradiatoren
- Zonwering
Gemeenschappelijke voorzieningen
De kantoorunit maakt onderdeel uit van een groter bedrijfsverzamelgebouw. Als gebruiker van de kantoorunit kunt u gebruik maken van de gemeenschappelijke voorzieningen zoals onder andere de pantry, vergaderruimte, sanitaire voorzieningen, deur met intercom en de afvalcontainers. In de toekomst zal bedrijvenpark "Koot" energieneutraal worden.
Huurcondities
Huurprijs: € 99,- per jaar m² per exclusief btw.
Huurtermijn: In overleg, minimaal 1 jaar.
Servicekosten: In overleg
Aanvaarding: Per direct.
Opzegtermijn: 3 maanden.
Zekerheidstelling: Waarborgsom: ter grootte van één maand huur.
Huurindexering: Jaarlijks overeenkomstig het maand prijsindexcijfer volgens het consumentenprijsindexcijfer (CPI) reeks CPI alle huishoudens (2006=100) gepubliceerd door het Centraal Bureau voor de Statistiek (CBS). De huurprijs zal nimmer minder bedragen dan de huurprijs van het voorafgaande jaar. Indexatie voor het eerst Januari 2023 en vervolgens jaarlijks.
BTW: Indien huurder niet aan het "90%-criterium”(aandeel belaste prestaties) voldoet, zal er van rechtswege sprake zijn van omzetbelasting vrijgestelde verhuur. Als dan wordt de overeengekomen kale huurprijs, exclusief omzetbelasting, zodanig verhoogd, dat het voor verhuurder ontstane financiële nadeel wordt gecompenseerd.
Huurcontract: R.O.Z.-model, huurovereenkomst kantoorruimte en andere bedrijfsruimte in de zin van artikel 7:230a BW met de benodigde aanvullingen.
Goedkeuring
Het bovenstaande is onder finaal voorbehoud van de eigenaar.
Disclaimer: Ondanks dat deze publicatie met de grootst mogelijke zorgvuldigheid is samengesteld is de Online Bedrijfsmakelaar BV niet aansprakelijk te stellen voor onjuiste of onvolledige informatie die in deze publicatie vermeld staan. Aan deze gegevens kunnen geen rechten worden ontleend.
====================
Alle beschikbare informatie ontvangen?
Benieuwd naar alle beschikbare informatie over het pand? Vraag dan nu, onder de grote contactbutton, de gratis objectbrochure van de Oud- Eemnesserweg 5 H in Baarn aan en ontvang de objectbrochure binnen 5 minuten in uw mailbox. Uiteraard kunt u ook direct een geheel vrijblijvende bezichtiging met de beheerder van het pand inplannen.
Bereikbaarheid
- Plataanlaan 8 min. lopen
- Nieuwstraat 8 min. lopen
- Geerenplein 10 min. lopen