Vleutenseweg 386 425 m2 kantoorruimte te huur in Utrecht
Kenmerken
| Huurprijs | € 175 m²/jaar |
| Functie | Kantoorruimte |
| Onderhoud buiten | Goed |
| Onderhoud binnen | Goed |
| Wijk / Buurt | Laan van Nieuw Guinea-Spinozaplantsoen |
1 eenheid beschikbaar
1 eenheid beschikbaar
- Eenheid
- Oppervlakte
- Huurprijs
- Gebruik
Eenheid omschrijving
ADRES
Vleutenseweg 386 te Utrecht.
ALGEMEEN
Het betreft een karakteristiek en representatief kantoorpand in de monumentale voormalige Stork-Jaffa machinefabriek, gelegen in de populaire wijk Lombok, op korte afstand van het Utrechtse stadscentrum. Begin deze eeuw is het gebouw grondig gerenoveerd, waarbij de authentieke industriële stijlelementen met zorg zijn behouden. Het resultaat is een unieke combinatie van historische uitstraling en modern werkcomfort.
Het pand bestaat uit vier bouwlagen en beschikt over een eigen parkeerkelder en -terrein, direct toegankelijk vanuit de kantoorruimte – een zeldzame luxe in deze omgeving. In de directe omgeving bevindt zich winkelcentrum Groeneweg met twee supermarkten en diverse horecagelegenheden, ideaal voor medewerkers en bezoekers.
BEREIKBAARHEID
Dankzij de centrale ligging is de bereikbaarheid uitstekend. Diverse uitvalswegen, waaronder de A2, zijn binnen enkele minuten bereikbaar. Ook het openbaar vervoer is goed geregeld: Utrecht Centraal Station ligt op korte afstand en meerdere bushaltes bevinden zich op loopafstand.
VLOEROPPERVLAK
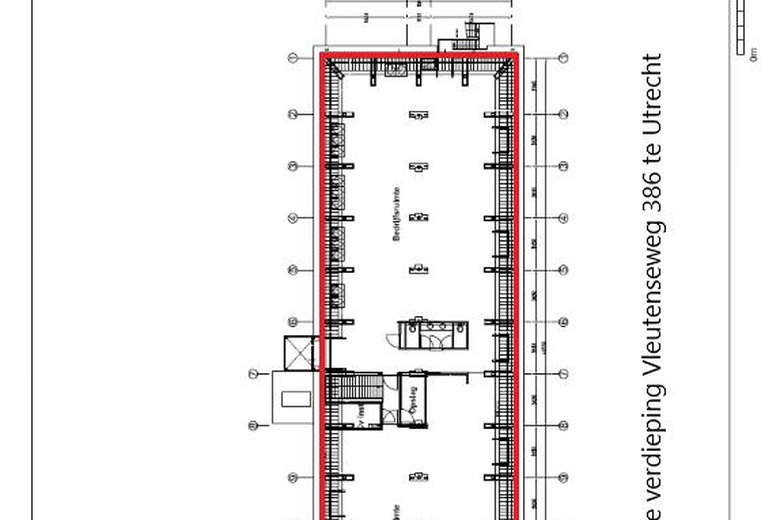
Het totale verhuurbare vloeroppervlak bedraagt totaal circa 425 m² kantoorruimte gelegen op de 2e verdieping.
OPLEVERINGSNIVEAU EN VOORZIENINGEN
De kantoorruimte wordt in de huidige staat opgeleverd met de volgende voorzieningen:
- gezamenlijke entree;
- sanitaire voorzieningen;
- eigen pantry;
- luchtbehandelings- en verwarmingssysteem;
- lift;
- huidige scheidingswanden;
- huidige verlichting;
- gladde vloerwerking.
De verhuurder is bereid de pantry te renoveren.
PARKEREN
Ruime parkeergelegenheid in de parkeergarage en op het parkeerdek.
GEBRUIKSMOGELIJKHEDEN
Kantoorruimte.
HUURPRIJS
EUR 175,- per m² per jaar, te vermeerderen met BTW.
PARKEREN
Parkeerplaatsen parkeergarage:
EUR 1.080,- per plaats per jaar, te vermeerderen met BTW.
Servicekosten parkeren:
EUR 200,- per plaats per jaar, te vermeerderen met BTW.
HUURPRIJSAANPASSING
Jaarlijks, op basis van de wijziging van het maandprijsindexcijfer, volgens de consumenten-prijsindex “alle huishoudens” (2015 = 100), gepubliceerd door het Centraal Bureau voor de Statistiek (CBS).
HUURTERMIJN
5 jaar met aansluitende verlengingsperioden van telkens 5 jaar. Kortere huurperiode bespreekbaar.
BETALINGEN
Huur en servicekosten en BTW per kwartaal vooruit.
BTW
Indien huurder niet aan het “90% criterium” voldoet, zal er van rechtswege sprake zijn van omzetbelasting vrijgestelde verhuur. Alsdan wordt de overeengekomen kale huurprijs, exclusief omzetbelasting, zodanig verhoogd dat het voor verhuurder ontstane financiële nadeel wordt gecompenseerd.
VERREKENBAAR VOORSCHOT SERVICEKOSTEN
EUR 55,- per m² per jaar, te vermeerderen met BTW voor de levering van de volgende zaken en diensten:
- gasverbruik inclusief vastrecht;
- elektriciteitsverbruik inclusief vastrecht ten behoeve van de installaties en de verlichting van de gehuurde ruimten;
- elektriciteitsverbruik inclusief vastrecht ten behoeve van de installaties en de verlichting van de gemeenschappelijke ruimten;
- waterverbruik inclusief vastrecht;
- onderhoud en periodieke controle van verwarmings- en/of luchtbehandelingsinstallatie(s);
- idem van liftinstallatie(s);
- idem van hydrofoorinstallatie;
- idem van glazenwasinstallatie;
- idem van brandmelder-, gebouwbewakings-, storingsmelder- en nood- stroominstallatie(s);
- idem van sprinklerinstallatie;
- sanitaire voorzieningen, handdoekautomaten, zeep e.d.;
- schoonmaakkosten van de gemeenschappelijke ruimten, liften, beglazing buitenzijde alsmede zonwering, beglazing gemeenschappelijke ruimten, terrassen, parkeerkelder en/of terrein;
- verzorging huisvuil, containerhuur e.d.;
- assurantiepremie buitenbeglazing;
- nachtveiligheidsdienst, bewaking;
- portier/huismeester;
- administratiekosten ad 5% over de hierboven genoemde leveringen en diensten.
ZEKERHEIDSTELLING
Bankgarantie of waarborgsom ter grootte van drie maanden huur inclusief servicekosten en BTW.
AANVAARDING
In overleg.
OVERIGE CONDITIES
Huurovereenkomst op basis van het standaard model van de Raad voor Onroerende Zaken (ROZ).
VOOR NADERE INLICHTINGEN EN/OF BEZICHTIGING
STATEMENT real estate
Maliebaan 50, 3581 CS UTRECHT
Tel.
De vermelde informatie is van algemene aard en is niet meer dan een uitnodiging om in onderhandeling te treden. Aan de inhoud van deze informatie kunnen geen rechten worden ontleend.
| OPPERVLAKTE | 425 m2 |
| GEBRUIK | Kantoorruimte |
Omschrijving
Omschrijving
ADRES
Vleutenseweg 386 te Utrecht.
ALGEMEEN
Het betreft een karakteristiek en representatief kantoorpand in de monumentale voormalige Stork-Jaffa machinefabriek, gelegen in de populaire wijk Lombok, op korte afstand van het Utrechtse stadscentrum. Begin deze eeuw is het gebouw grondig gerenoveerd, waarbij de authentieke industriële stijlelementen met zorg zijn behouden. Het resultaat is een unieke combinatie van historische uitstraling en modern werkcomfort.
Het pand bestaat uit vier bouwlagen en beschikt over een eigen parkeerkelder en -terrein, direct toegankelijk vanuit de kantoorruimte – een zeldzame luxe in deze omgeving. In de directe omgeving bevindt zich winkelcentrum Groeneweg met twee supermarkten en diverse horecagelegenheden, ideaal voor medewerkers en bezoekers.
BEREIKBAARHEID
Dankzij de centrale ligging is de bereikbaarheid uitstekend. Diverse uitvalswegen, waaronder de A2, zijn binnen enkele minuten bereikbaar. Ook het openbaar vervoer is goed geregeld: Utrecht Centraal Station ligt op korte afstand en meerdere bushaltes bevinden zich op loopafstand.
VLOEROPPERVLAK
Het totale verhuurbare vloeroppervlak bedraagt totaal circa 425 m² kantoorruimte gelegen op de 2e verdieping.
OPLEVERINGSNIVEAU EN VOORZIENINGEN
De kantoorruimte wordt in de huidige staat opgeleverd met de volgende voorzieningen:
- gezamenlijke entree;
- sanitaire voorzieningen;
- eigen pantry;
- luchtbehandelings- en verwarmingssysteem;
- lift;
- huidige scheidingswanden;
- huidige verlichting;
- gladde vloerwerking.
De verhuurder is bereid de pantry te renoveren.
PARKEREN
Ruime parkeergelegenheid in de parkeergarage en op het parkeerdek.
GEBRUIKSMOGELIJKHEDEN
Kantoorruimte.
HUURPRIJS
EUR 175,- per m² per jaar, te vermeerderen met BTW.
PARKEREN
Parkeerplaatsen parkeergarage:
EUR 1.080,- per plaats per jaar, te vermeerderen met BTW.
Servicekosten parkeren:
EUR 200,- per plaats per jaar, te vermeerderen met BTW.
HUURPRIJSAANPASSING
Jaarlijks, op basis van de wijziging van het maandprijsindexcijfer, volgens de consumenten-prijsindex “alle huishoudens” (2015 = 100), gepubliceerd door het Centraal Bureau voor de Statistiek (CBS).
HUURTERMIJN
5 jaar met aansluitende verlengingsperioden van telkens 5 jaar. Kortere huurperiode bespreekbaar.
BETALINGEN
Huur en servicekosten en BTW per kwartaal vooruit.
BTW
Indien huurder niet aan het “90% criterium” voldoet, zal er van rechtswege sprake zijn van omzetbelasting vrijgestelde verhuur. Alsdan wordt de overeengekomen kale huurprijs, exclusief omzetbelasting, zodanig verhoogd dat het voor verhuurder ontstane financiële nadeel wordt gecompenseerd.
VERREKENBAAR VOORSCHOT SERVICEKOSTEN
EUR 55,- per m² per jaar, te vermeerderen met BTW voor de levering van de volgende zaken en diensten:
- gasverbruik inclusief vastrecht;
- elektriciteitsverbruik inclusief vastrecht ten behoeve van de installaties en de verlichting van de gehuurde ruimten;
- elektriciteitsverbruik inclusief vastrecht ten behoeve van de installaties en de verlichting van de gemeenschappelijke ruimten;
- waterverbruik inclusief vastrecht;
- onderhoud en periodieke controle van verwarmings- en/of luchtbehandelingsinstallatie(s);
- idem van liftinstallatie(s);
- idem van hydrofoorinstallatie;
- idem van glazenwasinstallatie;
- idem van brandmelder-, gebouwbewakings-, storingsmelder- en nood- stroominstallatie(s);
- idem van sprinklerinstallatie;
- sanitaire voorzieningen, handdoekautomaten, zeep e.d.;
- schoonmaakkosten van de gemeenschappelijke ruimten, liften, beglazing buitenzijde alsmede zonwering, beglazing gemeenschappelijke ruimten, terrassen, parkeerkelder en/of terrein;
- verzorging huisvuil, containerhuur e.d.;
- assurantiepremie buitenbeglazing;
- nachtveiligheidsdienst, bewaking;
- portier/huismeester;
- administratiekosten ad 5% over de hierboven genoemde leveringen en diensten.
ZEKERHEIDSTELLING
Bankgarantie of waarborgsom ter grootte van drie maanden huur inclusief servicekosten en BTW.
AANVAARDING
In overleg.
OVERIGE CONDITIES
Huurovereenkomst op basis van het standaard model van de Raad voor Onroerende Zaken (ROZ).
VOOR NADERE INLICHTINGEN EN/OF BEZICHTIGING
STATEMENT real estate
Maliebaan 50, 3581 CS UTRECHT
Tel.
De vermelde informatie is van algemene aard en is niet meer dan een uitnodiging om in onderhandeling te treden. Aan de inhoud van deze informatie kunnen geen rechten worden ontleend.
Bereikbaarheid
- Majellapark 2 min. lopen
- Hasebroekstraat 6 min. lopen
- Schepenbuurt 9 min. lopen