Willem II Singel 30 80 m2 kantoorruimte te huur in Roermond
Kenmerken
| Huurprijs | € 1.275 /maand |
| Functie | Kantoorruimte |
| Onderhoud buiten | Uitstekend |
| Onderhoud binnen | Uitstekend |
| Wijk / Buurt | Binnenstad |
1 eenheid beschikbaar
1 eenheid beschikbaar
- Eenheid
- Oppervlakte
- Huurprijs
- Gebruik
Eenheid omschrijving
TE HUUR: INSTAPKLARE PRAKTIJK-/KANTOORRUIMTE GELEGEN BINNEN DE SINGEL VAN ROERMOND
Het pand is gelegen aan de Willem II Singel 30, in het hart van Roermond. Roermond is een dynamische stad in de provincie Limburg, die zowel lokaal als regionaal een belangrijk zakelijk en commercieel centrum vormt. De locatie biedt uitstekende mogelijkheden voor bedrijven die zich willen vestigen in een goed bereikbare omgeving.
BEREIKBAARHEID
De bereikbaarheid van het pand is optimaal. Het object is gelegen nabij de belangrijkste verkeersaders van Roermond, waaronder de A73 en A2-snelwegen, die een snelle verbinding bieden naar andere grote steden in de regio, zoals Maastricht, Eindhoven en Düsseldorf (Duitsland). Het stadscentrum van Roermond is op slechts enkele minuten afstand, wat de locatie bijzonder aantrekkelijk maakt voor klanten en zakelijke relaties.
Openbaar Vervoer: Het pand is goed bereikbaar via openbaar vervoer. Het station van Roermond ligt op korte afstand, met directe verbindingen naar andere grote steden in Nederland en België.
Parkeren: Er zijn voldoende parkeerfaciliteiten in de directe omgeving.
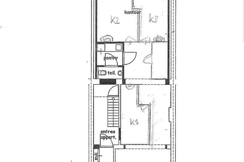
INDELING
Entree, ruime wacht-/kantoorkamer, drie afzonderlijke spreek-/kantoorkamers (waarvan twee met toegang tot de patio), repro-ruimte, sanitaire voorzieningen en een pantry.
De wanden van de kantoorkamers zijn flexibel en kunnen eventueel verwijderd worden.
REGELS OP DE KAART
De voor 'Centrum - 2' aangewezen gronden zijn bestemd voor:
• dienstverlening;
• kantoren;
• dienstverlening,
Voor meer gedetailleerde informatie met betrekking tot de mogelijkheden binnen het bestemmingsplan verwijzen wij u door naar de gemeente Roermond of de website "regels op de kaart".
OPPERVLAKTE CONFORM NEN 2580
80 m² vvo.
OPLEVERINGSNIVEAU
De kantoor-/praktijkruimte wordt onder andere opgeleverd met de volgende voorzieningen:
– systeemplafond inclusief verlichtingsarmaturen;
– alarminstallatie;
– toilet met fonteintje en keukenblok met de benodigde apparatuur;
– verwarming middels radiatoren;
– kabelgoten voorzien van wandcontactdozen en data-/internetaansluiting;
– kamerindeling 3x;
– wachtkamer;
– gedeelde entree;
– patio.
PARKEREN
In de directe omgeving zijn voldoende parkeerplaatsen aanwezig.
ENERGIELABEL
A
HUURPRIJS
€ 1.275,-- per maand, zonder BTW.
SERVICEKOSTEN
€ 200,-- per maand, exclusief BTW
Bestaande uit de levering van gas en elektriciteit.
Jaarlijks zal er een verrekening plaatsvinden door middel van de aanwezige tussenmeter.
Voor water is een vast bedrag van € 125,-- per jaar, exclusief BTW, gereserveerd.
AANVAARDING
Per direct.
BETALING
Huur en verschuldigde BTW per maand vooruit.
ZEKERHEIDSTELLING
Een waarborgsom ter grootte van 3 (drie) maanden huur, vermeerderd met BTW.
BTW
Indien de huurder niet aan het “90%-criterium” voldoet, zal er van rechtswege sprake zijn van omzetbelasting-vrijgestelde verhuur. In dat geval wordt de overeengekomen kale huurprijs, exclusief omzetbelasting, zodanig verhoogd dat het voor de verhuurder ontstane financiële nadeel wordt gecompenseerd.
INDEXERING
Jaarlijks, voor het eerst één jaar na de huuringangsdatum, op basis van de wijziging van het maandprijsindexcijfer volgens de consumentenprijsindex (CPI), reeks CPI voor alle huishoudens (2015=100), gepubliceerd door het Centraal Bureau voor de Statistiek (CBS). De huurprijs zal nimmer minder bedragen dan de huurprijs van het voorafgaande jaar.
HUUROVEREENKOMST
Huurovereenkomst op basis van het standaardmodel van de Raad voor Onroerende Zaken (ROZ) BW 7:230a 2015.
ZEKERHEIDSTELLING
De waarborgsom/bankgarantie is 10% van de koopsom.
BEZICHTIGING
Uitsluitend na afspraak met ons kantoor.
INFORMATIE
Voor eventuele vragen en/of bezichtigingen kunt u contact opnemen met ons kantoor.
Alle opgegeven maten en oppervlakten zijn indicatief. Indien de exacte maat voor u van belang is, kunt u deze laten opmeten.
De vermelde informatie is van algemene aard en niet meer dan een uitnodiging om in onderhandeling te treden. De verhuur geschiedt onder voorbehoud van goedkeuring door de verhuurder.
Ten aanzien van eventuele onjuistheden kunnen geen rechten worden ontleend.
VOOR VERDERE INFORMATIE
| OPPERVLAKTE | 80 m2 |
| GEBRUIK | Kantoorruimte |
Omschrijving
Omschrijving
TE HUUR: INSTAPKLARE PRAKTIJK-/KANTOORRUIMTE GELEGEN BINNEN DE SINGEL VAN ROERMOND
Het pand is gelegen aan de Willem II Singel 30, in het hart van Roermond. Roermond is een dynamische stad in de provincie Limburg, die zowel lokaal als regionaal een belangrijk zakelijk en commercieel centrum vormt. De locatie biedt uitstekende mogelijkheden voor bedrijven die zich willen vestigen in een goed bereikbare omgeving.
BEREIKBAARHEID
De bereikbaarheid van het pand is optimaal. Het object is gelegen nabij de belangrijkste verkeersaders van Roermond, waaronder de A73 en A2-snelwegen, die een snelle verbinding bieden naar andere grote steden in de regio, zoals Maastricht, Eindhoven en Düsseldorf (Duitsland). Het stadscentrum van Roermond is op slechts enkele minuten afstand, wat de locatie bijzonder aantrekkelijk maakt voor klanten en zakelijke relaties.
Openbaar Vervoer: Het pand is goed bereikbaar via openbaar vervoer. Het station van Roermond ligt op korte afstand, met directe verbindingen naar andere grote steden in Nederland en België.
Parkeren: Er zijn voldoende parkeerfaciliteiten in de directe omgeving.
INDELING
Entree, ruime wacht-/kantoorkamer, drie afzonderlijke spreek-/kantoorkamers (waarvan twee met toegang tot de patio), repro-ruimte, sanitaire voorzieningen en een pantry.
De wanden van de kantoorkamers zijn flexibel en kunnen eventueel verwijderd worden.
REGELS OP DE KAART
De voor 'Centrum - 2' aangewezen gronden zijn bestemd voor:
• dienstverlening;
• kantoren;
• dienstverlening,
Voor meer gedetailleerde informatie met betrekking tot de mogelijkheden binnen het bestemmingsplan verwijzen wij u door naar de gemeente Roermond of de website "regels op de kaart".
OPPERVLAKTE CONFORM NEN 2580
80 m² vvo.
OPLEVERINGSNIVEAU
De kantoor-/praktijkruimte wordt onder andere opgeleverd met de volgende voorzieningen:
– systeemplafond inclusief verlichtingsarmaturen;
– alarminstallatie;
– toilet met fonteintje en keukenblok met de benodigde apparatuur;
– verwarming middels radiatoren;
– kabelgoten voorzien van wandcontactdozen en data-/internetaansluiting;
– kamerindeling 3x;
– wachtkamer;
– gedeelde entree;
– patio.
PARKEREN
In de directe omgeving zijn voldoende parkeerplaatsen aanwezig.
ENERGIELABEL
A
HUURPRIJS
€ 1.275,-- per maand, zonder BTW.
SERVICEKOSTEN
€ 200,-- per maand, exclusief BTW
Bestaande uit de levering van gas en elektriciteit.
Jaarlijks zal er een verrekening plaatsvinden door middel van de aanwezige tussenmeter.
Voor water is een vast bedrag van € 125,-- per jaar, exclusief BTW, gereserveerd.
AANVAARDING
Per direct.
BETALING
Huur en verschuldigde BTW per maand vooruit.
ZEKERHEIDSTELLING
Een waarborgsom ter grootte van 3 (drie) maanden huur, vermeerderd met BTW.
BTW
Indien de huurder niet aan het “90%-criterium” voldoet, zal er van rechtswege sprake zijn van omzetbelasting-vrijgestelde verhuur. In dat geval wordt de overeengekomen kale huurprijs, exclusief omzetbelasting, zodanig verhoogd dat het voor de verhuurder ontstane financiële nadeel wordt gecompenseerd.
INDEXERING
Jaarlijks, voor het eerst één jaar na de huuringangsdatum, op basis van de wijziging van het maandprijsindexcijfer volgens de consumentenprijsindex (CPI), reeks CPI voor alle huishoudens (2015=100), gepubliceerd door het Centraal Bureau voor de Statistiek (CBS). De huurprijs zal nimmer minder bedragen dan de huurprijs van het voorafgaande jaar.
HUUROVEREENKOMST
Huurovereenkomst op basis van het standaardmodel van de Raad voor Onroerende Zaken (ROZ) BW 7:230a 2015.
ZEKERHEIDSTELLING
De waarborgsom/bankgarantie is 10% van de koopsom.
BEZICHTIGING
Uitsluitend na afspraak met ons kantoor.
INFORMATIE
Voor eventuele vragen en/of bezichtigingen kunt u contact opnemen met ons kantoor.
Alle opgegeven maten en oppervlakten zijn indicatief. Indien de exacte maat voor u van belang is, kunt u deze laten opmeten.
De vermelde informatie is van algemene aard en niet meer dan een uitnodiging om in onderhandeling te treden. De verhuur geschiedt onder voorbehoud van goedkeuring door de verhuurder.
Ten aanzien van eventuele onjuistheden kunnen geen rechten worden ontleend.
VOOR VERDERE INFORMATIE
Bereikbaarheid
- Godsweerdersingel 4 min. lopen
- Zwartbroekplein 4 min. lopen
- Roermond 5 min. lopen
- Busstation, Stationsplein halte I 6 min. lopen
- Minderbroederssingel 6 min. lopen