Antwerpseweg 9 590 m2 winkelruimte te huur in Gouda
Kenmerken
| Huurprijs | € 32.450 /jaar |
| Functie | Winkelruimte |
| Onderhoud buiten | Goed |
| Onderhoud binnen | Goed |
| Wijk / Buurt | De Goudse Poort |
| Bedrijventerrein | Goudse Poort |
1 eenheid beschikbaar
1 eenheid beschikbaar
- Eenheid
- Oppervlakte
- Huurprijs
- Gebruik
Eenheid omschrijving
Deze multifunctionele ruimte is gelegen op de eerste verdieping boven de wijngroothandel Wijngro van Welie.
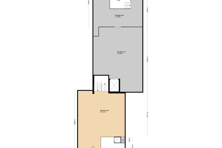
Voor de verhuur is circa 590 m² beschikbaar geheel gelegen op de eerste verdieping. In het pand zijn diverse andere ondernemers gevestigd zoals Volero en Budotop.
Het complex is gelegen op een uitstekende locatie op bedrijventerrein “Goudse Poort” () waar diverse gerenommeerde bedrijven zijn gevestigd zoals Dekbed-Discounter, Brokken & zo XXL, Centric en Rabobank Gouwestreek.
Bij het object behoren op eigen terrein in totaal circa 20 parkeerplaatsen.
Bereikbaarheid:
De bereikbaarheid met de auto is uitstekend. Afslag A12/A20 ( Den Haag - Utrecht/ Rotterdam ) ligt direct aan de Goudse Poort. Er rijden diverse streekbussen door de Goudse Poort en er is een constante verbinding met het centraal station Gouda. Parkeren is mogelijk op eigen terrein.
Gebruiksmogelijkheden:
Het object is geschikt voor diverse (perifere)winkel-/ showroom-/ bedrijfs- en kantoordoeleinden.
Oppervlakte:
De totale voor de verhuur beschikbare vloeroppervlakte bedraagt circa 590 m² (perifere)winkel-/ showroom-/ en kantoorruimte gelegen op de eerste verdieping.
Oplevering:
In overleg.
Opleveringsniveau:
Het opleveringsniveau is onder andere voorzien van:
Showroom/winkel/kantoor:
- frontbreedte van in totaal circa 50 meter;
- zichtlocatie;
- representatieve entree;
- vide;
- receptie/ontvangst gedeelte;
- personenlift;
- toiletgroep;
- panrty;
- natuurlijke daglicht toetreding;
- te openen ramen;
- systeemplafond voorzien van ingebouwde verlichtingsarmaturen;
- centrale verwarming.
Huurprijs:
€ 32.450,- per jaar, te vermeerderen met de wettelijk verschuldigde omzetbelasting.
Servicekosten:
€ 25,- per m² per jaar, te vermeerderen met de wettelijk verschuldigde omzetbelasting en ten behoeve van het voorschot gas, water en elektra.
Jaarlijkse keuringen van de reeds aanwezige installaties zijn voor rekening huurder.
Indexering:
Jaarlijks, voor het eerst één jaar na ingangsdatum van de huurovereenkomst, op basis van de wijziging van het maandindexcijfer volgens de consumentenprijsindex (CPI) reeks “alle huishoudens” (2000=100), gepubliceerd door het Centraal Bureau voor de Statistiek (CBS).
Zekerheidsstelling:
Een bankgarantie ter grootte van een betalingsverplichting van 3 maanden huur te vermeerderen met de wettelijke omzetbelasting en servicekosten.
Huurcontract:
Huurovereenkomst conform het standaardmodel van de Raad voor Onroerende Zaken (ROZ 2008), zoals gehanteerd door de Nederlandse Vereniging voor Makelaars (NVM).
BTW:
Huurder garandeert aan verhuurder dat hij het huurobject per datum van ingang van de huurovereenkomst voor tenminste het bij de wet vastgestelde minimumpercentage blijvend zal gebruiken voor doeleinden die recht geven op aftrek van BTW. Huurder zal op eerste verzoek van verhuurder per ommegaande een onherroepelijke volmacht aan verhuurder en zijn eventuele rechtsopvolger(s) verlenen om mede namens hem een optieverzoek tot belaste verhuur in te dienen. Indien huurder echter niet (meer) voldoet aan de wettelijke criteria voor belaste verhuur of een optieverzoek tot belaste verhuur niet (meer) door de inspecteur der belastingen wordt gehonoreerd, dan zal huurder het gehele daardoor financieel te lijden nadeel voor verhuurder aan verhuurder vergoeden, overeenkomstig de ter zake op te nemen bijzondere bepalingen van de huurovereenkomst.
Huurtermijn:
5 jaar met aansluitend een optietermijn van 5 jaar.
Huurbetaling:
Per kwartaal vooruit.
Bijzonderheden:
Elke transactie behoeft de nadrukkelijke goedkeuring van eigenaar.
Disclaimer:
Er kunnen op geen enkele wijze rechten worden ontleend aan, noch aanspraak gemaakt worden op de inhoud van deze website. De verstrekte informatie is van algemene aard en uitsluitend bedoeld ter indicatie. Hoewel deze informatie met de grootst mogelijke zorgvuldigheid is samengesteld, aanvaarden wij geen aansprakelijkheid voor mogelijke onjuistheden of onvolledigheden. Alle informatie op deze website is onder voorbehoud en kan zonder nadere aankondiging worden gewijzigd. Wij raden geïnteresseerden aan om bij concrete interesse de juistheid van de informatie zelf te verifiëren en adviseren om juridisch advies in te winnen alvorens over te gaan tot een huurovereenkomst.
| OPPERVLAKTE | 590 m2 |
| GEBRUIK | Winkelruimte |
Omschrijving
Omschrijving
Deze multifunctionele ruimte is gelegen op de eerste verdieping boven de wijngroothandel Wijngro van Welie.
Voor de verhuur is circa 590 m² beschikbaar geheel gelegen op de eerste verdieping. In het pand zijn diverse andere ondernemers gevestigd zoals Volero en Budotop.
Het complex is gelegen op een uitstekende locatie op bedrijventerrein “Goudse Poort” () waar diverse gerenommeerde bedrijven zijn gevestigd zoals Dekbed-Discounter, Brokken & zo XXL, Centric en Rabobank Gouwestreek.
Bij het object behoren op eigen terrein in totaal circa 20 parkeerplaatsen.
Bereikbaarheid:
De bereikbaarheid met de auto is uitstekend. Afslag A12/A20 ( Den Haag - Utrecht/ Rotterdam ) ligt direct aan de Goudse Poort. Er rijden diverse streekbussen door de Goudse Poort en er is een constante verbinding met het centraal station Gouda. Parkeren is mogelijk op eigen terrein.
Gebruiksmogelijkheden:
Het object is geschikt voor diverse (perifere)winkel-/ showroom-/ bedrijfs- en kantoordoeleinden.
Oppervlakte:
De totale voor de verhuur beschikbare vloeroppervlakte bedraagt circa 590 m² (perifere)winkel-/ showroom-/ en kantoorruimte gelegen op de eerste verdieping.
Oplevering:
In overleg.
Opleveringsniveau:
Het opleveringsniveau is onder andere voorzien van:
Showroom/winkel/kantoor:
- frontbreedte van in totaal circa 50 meter;
- zichtlocatie;
- representatieve entree;
- vide;
- receptie/ontvangst gedeelte;
- personenlift;
- toiletgroep;
- panrty;
- natuurlijke daglicht toetreding;
- te openen ramen;
- systeemplafond voorzien van ingebouwde verlichtingsarmaturen;
- centrale verwarming.
Huurprijs:
€ 32.450,- per jaar, te vermeerderen met de wettelijk verschuldigde omzetbelasting.
Servicekosten:
€ 25,- per m² per jaar, te vermeerderen met de wettelijk verschuldigde omzetbelasting en ten behoeve van het voorschot gas, water en elektra.
Jaarlijkse keuringen van de reeds aanwezige installaties zijn voor rekening huurder.
Indexering:
Jaarlijks, voor het eerst één jaar na ingangsdatum van de huurovereenkomst, op basis van de wijziging van het maandindexcijfer volgens de consumentenprijsindex (CPI) reeks “alle huishoudens” (2000=100), gepubliceerd door het Centraal Bureau voor de Statistiek (CBS).
Zekerheidsstelling:
Een bankgarantie ter grootte van een betalingsverplichting van 3 maanden huur te vermeerderen met de wettelijke omzetbelasting en servicekosten.
Huurcontract:
Huurovereenkomst conform het standaardmodel van de Raad voor Onroerende Zaken (ROZ 2008), zoals gehanteerd door de Nederlandse Vereniging voor Makelaars (NVM).
BTW:
Huurder garandeert aan verhuurder dat hij het huurobject per datum van ingang van de huurovereenkomst voor tenminste het bij de wet vastgestelde minimumpercentage blijvend zal gebruiken voor doeleinden die recht geven op aftrek van BTW. Huurder zal op eerste verzoek van verhuurder per ommegaande een onherroepelijke volmacht aan verhuurder en zijn eventuele rechtsopvolger(s) verlenen om mede namens hem een optieverzoek tot belaste verhuur in te dienen. Indien huurder echter niet (meer) voldoet aan de wettelijke criteria voor belaste verhuur of een optieverzoek tot belaste verhuur niet (meer) door de inspecteur der belastingen wordt gehonoreerd, dan zal huurder het gehele daardoor financieel te lijden nadeel voor verhuurder aan verhuurder vergoeden, overeenkomstig de ter zake op te nemen bijzondere bepalingen van de huurovereenkomst.
Huurtermijn:
5 jaar met aansluitend een optietermijn van 5 jaar.
Huurbetaling:
Per kwartaal vooruit.
Bijzonderheden:
Elke transactie behoeft de nadrukkelijke goedkeuring van eigenaar.
Disclaimer:
Er kunnen op geen enkele wijze rechten worden ontleend aan, noch aanspraak gemaakt worden op de inhoud van deze website. De verstrekte informatie is van algemene aard en uitsluitend bedoeld ter indicatie. Hoewel deze informatie met de grootst mogelijke zorgvuldigheid is samengesteld, aanvaarden wij geen aansprakelijkheid voor mogelijke onjuistheden of onvolledigheden. Alle informatie op deze website is onder voorbehoud en kan zonder nadere aankondiging worden gewijzigd. Wij raden geïnteresseerden aan om bij concrete interesse de juistheid van de informatie zelf te verifiëren en adviseren om juridisch advies in te winnen alvorens over te gaan tot een huurovereenkomst.
Bereikbaarheid
- Harderwijkweg 3 min. lopen
- Meridiaan 6 min. lopen
- Gentseweg 6 min. lopen
- Tielweg 7 min. lopen
- Plataanstraat 10 min. lopen